




Vente Local d'activité 3 009 m²
34970 Lattes
3 009 m²
Divisible dès 240 m²
à partir de 379 489 €
HT/HD
Disponibilité : 12 mois après accord

Rodolphe CHEVALLIER
Description
MONTPELLIER SUD - LATTES - LOCAUX D'ACTIVITE À VENDRE
MONTPELLIER SUD - À VENDRE - WAVY
Découvrez WAVY, un programme immobilier neuf à usage d'activité situé au sud de Montpellier, au coeur d'un environnement dynamique et stratégique. Ce site de 4 750 m² environ se compose de 11 lots indépendants, de 240 à 293 m², offrant une modularité idéale pour les entreprises en quête d'espaces fonctionnels, modernes et adaptables.
Parfaitement conçu pour répondre aux besoins des activités industrielles, artisanales ou logistiques, WAVY propose des locaux performants et bien équipés, alliant confort d'usage et exigences techniques.
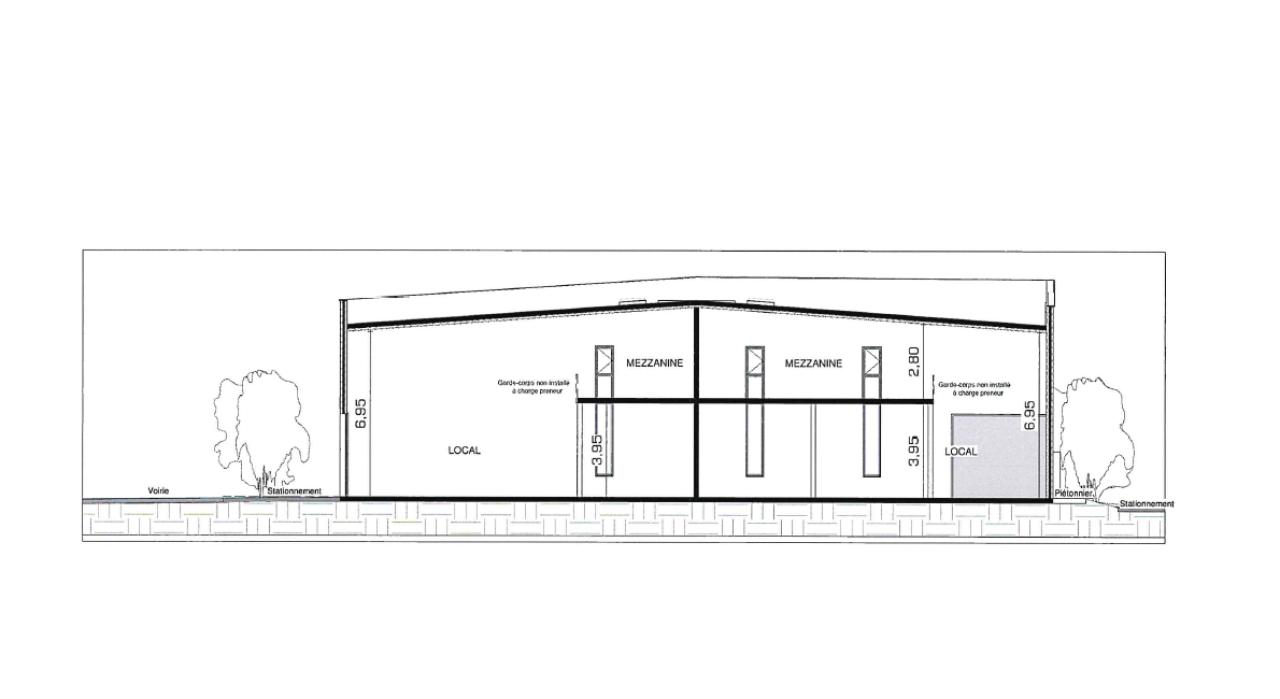
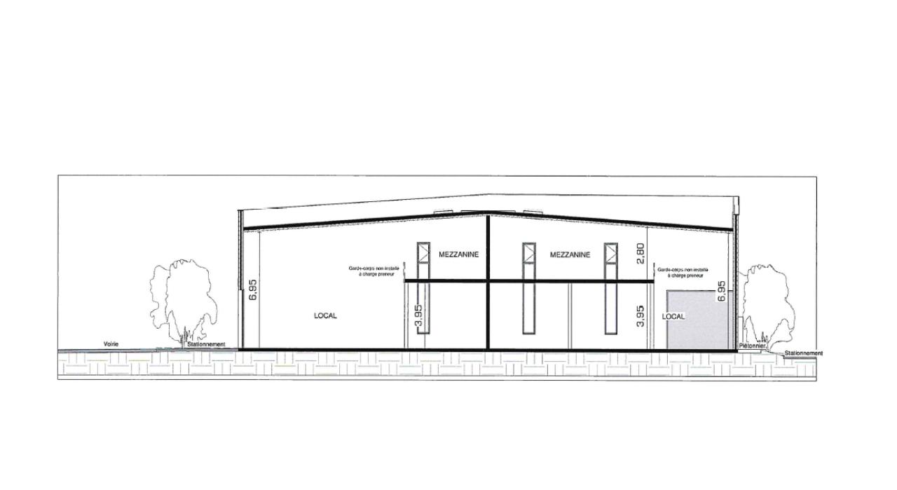
Caractéristiques techniques des locaux :
- Quai de déchargement mutualisé, simplifiant la logistique quotidienne.
- Accès RDC avec une résistance au sol de 2T/m² pour le stockage lourd.
- Mezzanine incluse, capable de supporter jusqu'à 450 Kg/m².
- Hauteur sous poutre de 7 mètres, idéale pour le stockage en hauteur.
- Accès direct poids lourds / semi-remorques au RDC
Disponibilité : 2e trimestre 2026
ACCESSIBILITÉS :
- Dessertes routières : A9/A709 à 5 minutes
- Aéroport : Montpellier Méditerranée à 12 minutes
- Gare : Montpellier Saint Roch à 15 minutes
- Gare : Montpellier Sud de France à 10 minutes
Contactez-nous dès maintenant pour plus d'informations ou pour organiser une visite.
Services & prestations
Hauteurs
-
Hauteur sous porte plain-pied : 4,00 mètre(s)
-
Hauteur sous poutre : 7,00 mètre(s)
Accès véhicules
-
Accessibilité type véhicules : Tous porteurs Accès poids lourd
Equipements
-
Charge au sol Etage : 450,00 kg/m²
-
Charge au sol Rdc : 2,00 tonne(s)/m²
-
Porte d'accès plain-pied : 0.93 m x 2.04 m
-
Porte d'accès à quai : 4 m x 3.5 m sur les accès livraison
Informations complémentaires
-
Panneaux photovoltaïques prévus sur toiture, conformément au PC
-
Forage eau, Quai de déchargement mutualisé










