




Vente Local d'activité 1 785 m²
37170 Chambray-lès-Tours
1 785 m²
Divisible dès 218 m²
à partir de 309 301 €
HT/HD
Disponibilité : 18 mois après accord

Bertrand BEGAT
Description
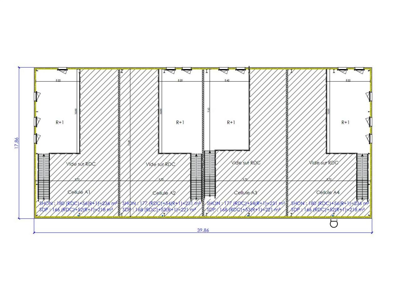
Locaux d'activités neufs
- Chambray les Tours - A vendre
Dans la zone de la Vrillonnerie Sud à Chambray les Tours - A vendre, dans un programme neuf, cellules d'activités livrées brut de béton, fluides en attente - divisibles à partir de 218 m².
Mezzanine pour aménager une partie bureau en étage, porte sectionnelle, hauteur sous poutres de min 5,60 m.
Possibilité d'avoir un bâtiment indépendant à partir de 878 m².
Egalement à la location
A proximité immédiate des grands axes (1 km du périphérique et à 2 km de l'A10) !
Services & prestations
Hauteurs
-
Hauteur sous poutre : : minutes 5,60
Accès véhicules
-
Accessibilité type véhicules : Tous porteurs
Equipements
-
Eclairage naturel : Translucide
-
Porte d'accès plain-pied : : 1/cellule
-
Sols du bâtiment : : dalle quartzé
Type / Etat du bâtiment
-
Etat de l'immeuble : Neuf
-
Etat du terrain : Goudronné
Structure du bâtiment
-
Charpente : Métallique
-
Couverture : Bac acier isolé
-
Murs : Bardage double peau
Informations complémentaires
-
Brut de béton, fluides en attente, Porte piétonne
-
Porte accès bureaux










