




Vente Local d'activité 1 866 m²
95460 Ézanville
1 866 m²
3 265 500 €
HT/HD
Disponibilité : 01/05/2027

Maxime LANDAIS
Description
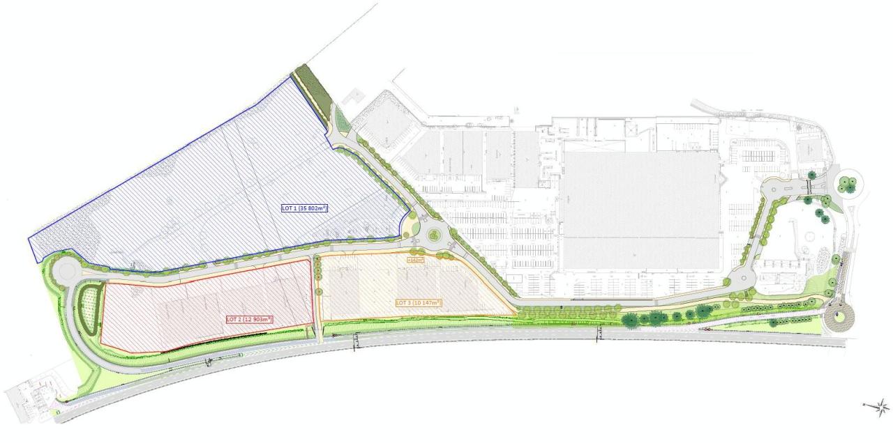
EZANVILLE
Bâtiment D
BNP Paribas Real Estate vous propose à la vente un bâtiment indépendant à usage de locaux d'activité et bureaux.
Bâtiment clé en main situé en façade de la RD 301 et à 5 min de la Francilienne, ce programme bénéficie d’un accès direct vers les pôles économiques :
•Roissy (17 minutes)
•Cergy-Pontoise (19 minutes)
•Beauvais (35 minutes)
•Paris (30 minutes)
Livraison prévue T2 2027.
Profitant d'une excellente répartition des surfaces d'activités et bureaux, ces cellules d'activité fonctionnelles bénéficient des dernières normes environnementales pour réduire le poste énergétique des sociétés récentes à la recherche de performance et rentabilité.
En sus d'un accès de premier ordre desservant rapidement la région Nord Ouest, les prestations attendues sont au rdv :
Multiples portes d'accès au site facilitant les entrées et sorties,
Bonne capacité d'accueil des poids lourds grâce à une large voirie,
Hauteur sous plafond importante pour optimiser le stockage,
Architecture contemporaine,
Larges portes sectionnelles,
Surface bureaux <25% surface totale de chaque cellule.
L'actif se situe au coeur de la zone industrielle de Ennery où l'offre de parc d'activités neuf est faible.
Il bénéficie d'une excellente desserte des grandes axes autoroutiers du Nord Ouest de l'Île de France.
Le compromis idéal de ces belles surfaces d'activité, sera votre atout pour faire croître durablement votre société au cours des prochaines années.
Pour visiter ou connaître nos autres offres à proximité,
Contactez votre consultant BNPPARIBAS REAL ESTATE
Services & prestations
Hauteurs
-
Hauteur libre : 7,50 mètre(s) et 4m sous mezzanine
Accès véhicules
-
Accessibilité type véhicules : Tous porteurs
Equipements
-
Charge au sol Etage : 250,00 kg/m²
-
Charge au sol Rdc : 3,00 tonne(s)/m²
-
Eclairage Bureaux : Luminaires encastrés led
-
Faux plafond
-
Porte d'accès plain-pied : 4,50m x 4m
-
Porte d'accès à quai : Niveleur de 2,80m x 3m
-
Puissance électrique : Tarif Jaune
-
Sol bureaux : Moquette
-
Sols du bâtiment : Béton quartzé
Prestations de service
-
Sécurité : Système d’interphone et commande du portail actionnable par téléphone GSM depuis chaque lot
Aménagements
-
Locaux sociaux : Sanitaires PMR carrelés
Extérieurs
-
Aire de manoeuvre
Informations complémentaires
-
Desservie par escalier métallique, Éclairage industriel de 250 lux moyen
-
Contre bardage intérieur blanc, Distribution courant fort : 1 prise de courant pour 3 m² environ
-
Réservation d’un compartiment dans les plinthes pour le courant faible










