




Vente Local d'activité 1 850 m²
95590 Presles
1 850 m²
1 400 000 €
HT/HD
Disponibilité : Immédiate

Francois FOURNIER
Description
Presles
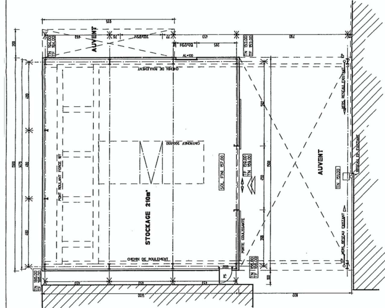
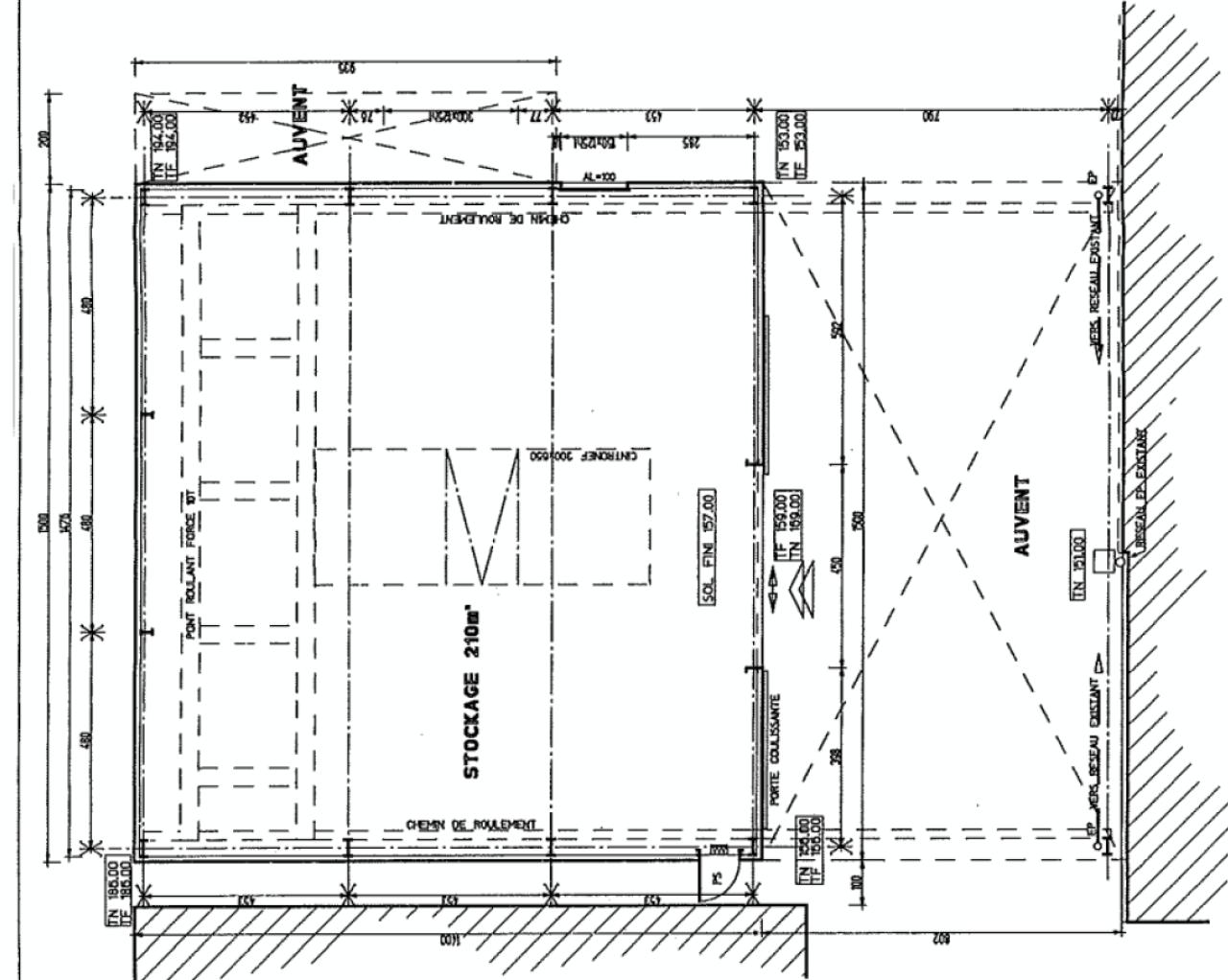
Bâtiment indépendant divisible
BNP PARIBAS Real Estate vous propose à l'acquisition un bâtiment indépendant, sur une parcelle de 4 300 m² environ. Des bâtiments d'activité avec bureaux d'accompagnement, 7 mètre(s) de hauteur libre sur la partie stockage, du parking extérieur et 2 accès plain-pied. Situé à Presles, proche de l'axe A16.
BNP PARIBAS REAL ESTATE vous propose, à la vente, un bâtiment indépendant d'une surface totale de 1 850 m². Le bâtiment est situé à Presles (95), à proximité des axes routiers D78 / A16 / N184 / N1.
Caractéristiques techniques
Surface activité : 1610 m²
Surface bureaux : 130 m²
Hauteur libre : 3 mètres (atelier) à 7 mètres (stockage)
Aire de stockage extérieure
Porte de plain-pied : 2
Aire de manoeuvre
Hall d'accueil
Pont roulant : 10 tonnes
Accessibilité types véhicules : Tous porteurs
Parking
Accessibilité
Accès routiers : D78 / A16 / N184 / N1
Gare de Presles-Courcelles
Bus disponibles
Pour toute information complémentaire, contactez-nous.
François FOURNIER 06 82 65 23 86
Services & prestations
Hauteurs
-
Hauteur libre : 3,00 mètre(s) dans l'atelier, 7,00 mètre(s) dans la partie stockage
Accès véhicules
-
Accessibilité type véhicules : Tous porteurs
Equipements
-
Climatisation : Dans les bureaux
-
Eclairage Bureaux : Luminaires encastrés
-
Faux plafond
-
Fenêtres
-
Pont roulant : 1 de 10T
-
Porte d'accès plain-pied : 2
-
Sol bureaux : Carrelage
-
Sols du bâtiment : Béton
-
Source chauffage : Electrique
Structure du bâtiment
-
Charpente : Métallique
-
Couverture : Bac(s) acier
-
Murs : Bardage simple peau
Prestations de service
-
Parking
Aménagements
-
Aménagement des bureaux : Cloisonnés
-
Hall d'accueil
-
Locaux sociaux : Sanitaires, Vestiaires
-
Salle informatique
Extérieurs
-
Aire de manoeuvre
-
Aire de stockage extérieure
Informations complémentaires
-
Cuisine










