




Vente Local d'activité 1 934 m²
95130 Plessis-Bouchard
1 934 m²
Prix sur demande
Disponibilité : Immédiate

Nathalie DELOEUVRE
Description
LE PLESSIS BOUCHARD
Bâtiment indépendant à la vente (location possible)
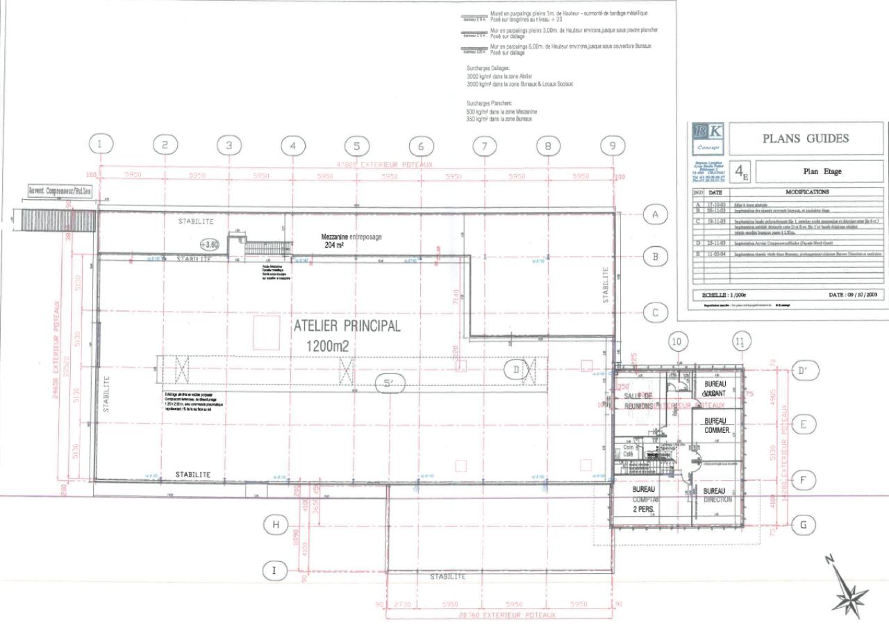
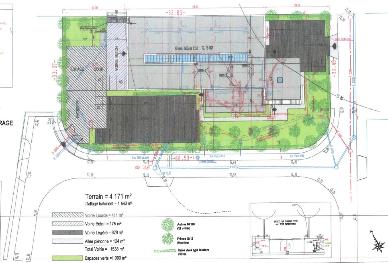
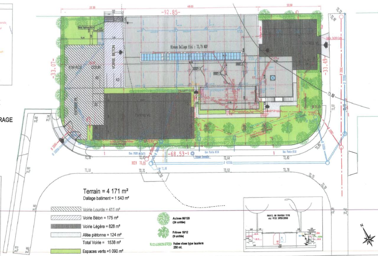
BNP Paribas Real Estate vous propose à l'acquisition ou à la location un bâtiment indépendant à usage d'activité et bureaux sur un terrain de 4 171 m² environ. Disponibilité immédiate ou 3 mois après accord pour une vente.
Ce bâtiment en très bon état, accessible aux gros porteurs, bénéficie d'une belle aire de manoeuvre pour les camions et d'un espace pour le stationnement de véhicules légers.
Doté de bureaux administratifs, de locaux sociaux et d'un bel espace dédié au stockage et atelier, il a toutes les caractérisques pour accueillir votre activité industrielle.
N'hesitez pas à contacter votre conseiller BNPPARIBAS REAL ESTATE pour toutes informations complémentaires.
Services & prestations
Hauteurs
-
Hauteur sous porte plain-pied : H 380 x L420
-
Hauteur sous poutre : 6,50 mètre(s)
Equipements
-
Charge au sol Rdc : 3,00 tonne(s)/m²
-
Pont roulant : 5T
-
Sol bureaux : Carrelage
Structure du bâtiment
-
Charpente : Métallique
Aménagements
-
Aménagement des bureaux : Cloisonnés
-
Mezzanine : Charge au sol : 500kg/m²
-
Sanitaires : Au RDC
Extérieurs
-
Aire de manoeuvre
Informations complémentaires
-
Bureaux au RDC et R+1
-
Locaux sociaux RDC : réfectoire, vestiaire et douches
-
Kitchenette à l’étage










