




Vente Local d'activité 1 573 m²
83480 Puget-sur-Argens
1 573 m²
Divisible dès 158 m²
à partir de 474 000 €
HT/HD
Disponibilité : 01/04/2027

Jerome BLANCHE
Description
A VENDRE - LOCAUX D'ACTIVITE NEUF - PUGET SUR ARGENS
2639162
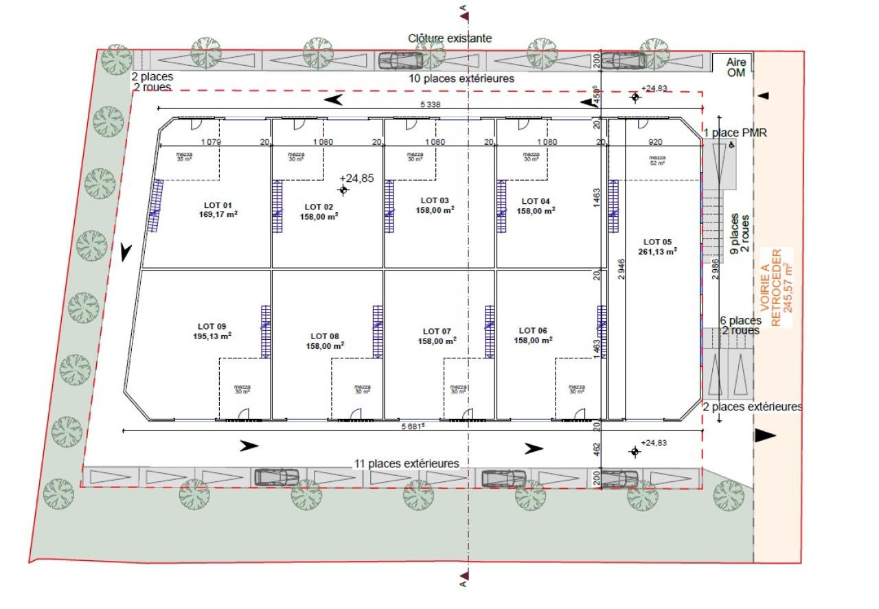
Nous vous proposons à la vente, ce programme neuf de locaux d'activité de 1 573 m², divisibles à partir de 158 m². Il est situé au coeur de la zone industrielle et commerciale du Jas Neuf, reconnue sur la commune de Puget-sur-Argens. Livrés brut de béton, hors d'air, hors d'eau et fluides en attente. Tous les lots disposeront de leur porte sectionnelle, d'une belle hauteur sous poutre et d'une dalle béton de type industriel. Proximité directe de l'accès à l'autoroute A8 et du boulevard du commerce reliant Puget-sur-Argens à Fréjus.
Bâtiment d'activité de 1 573 m²
- Divisible à partir de 158 m²
- Livré brut de béton
- Livré hors d'air, hors d'eau et fluides en attente
Hauteur sous poutre de 5,8 mètres
Porte sectionnelle
Dalle béton industrielle
Accessible pour tout type de porteur
- Entrée A8 à 3 minutes
Aéroport Nice Côte d'Azur à 40 mn
Fréjus à 9 mn
Transports en commun à proximité
Services & prestations
Hauteurs
-
Hauteur libre : 8,62 mètre(s)
-
Hauteur sous poutre : 8,00 mètre(s)
Accès véhicules
-
Accessibilité type véhicules : Tous porteurs
Equipements
-
Charge au sol Rdc : 1,50 tonne(s)/m²
-
Porte d'accès plain-pied : 9
-
Sols du bâtiment : Béton
Structure du bâtiment
-
Charpente : Béton
-
Couverture : Bac acier isolé
-
Murs : Béton
Extérieurs
-
Eclairage extérieur : LED








