




Location Bureau 9 093 m²
06560 Sophia Antipolis
9 093 m²
Divisible dès 175 m²
230 €
HT/HC/m²/an
Disponibilité : bâtiment A : T4 2024 et bâtiment B : immédiate

Jeanne-Marie FAUVET
Description
SYMPHONIA
ESPACE DE BUREAUX DERNIÈRE GÉNÉRATION
L'ensemble immobilier « SymphonIA » bénéficie de sa propre entrée donnant sur la rue Ludvig Van Beethoven à Valbonne.
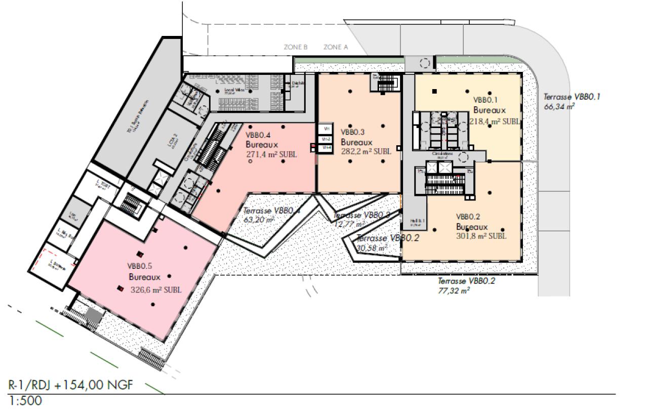
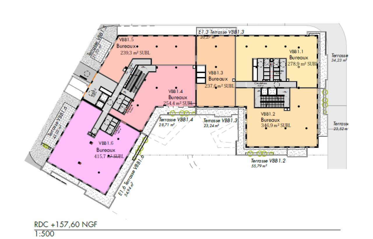
Le bâtiment A dispose d’une surface d’environ 5.047,22 m² et le bâtiment B d’environ 5.377,63 m².
Ce site bénéficie de nombreux parkings.
Loyer moyen par étage ( ratio - en €/m²/ y/c pkg)
Espace de stockage supplémentaires possible : Bât A => R+1 - 139m² à 100 €/m² et Bât B =>RDJ - 14,50m² à 100€/m²
À LOUER - BUREAUX - SOPHIA ANTIPOLIS - SYMPHONIA
Découvrez ce nouveau projet en cours de construction. L'immeuble SYMPHONIA disposera de plus de 10.000 m² disponible à la location.
Cet ensemble immobilier bénéficie d'un grand nombre de services maximisant le bien-être au travail de vos collaborateurs.
- Immeuble indépendant
- Architecte : Fevrier Carre
- Climatisation : air rafraîchi
- Panneau photovoltaïques en autoconsommation
- Terrasses à chaque étage
- Faux plancher sur le bâtiment A uniquement
- Luminaires encastrés lead
- Fibre optique
- Sol moquette en dalle à partir de filets de pêche recyclés
- labellisation R+C-
Symphonia est parfaitement situé, au coeur du parc technologique de Sophia Antipolis et directement accessible par toutes les principales lignes de bus, dont l'Express 230 Nice-Sophia.
Ce prestigieux parc, héberge des centaines d'entreprises telles que des multinationales, des PME, des start-up innovantes, dans les secteurs d'activités des technologies de l'information et de la communication, des multimédias, des sciences de la vie, de l'énergie, de la gestion de l'eau, des risques ainsi que du développement durable. Ce parc regroupe également un campus universitaire avec environ 5 500 étudiants. Symphonia se situe dans un environnement unique qui offre un cadre de travail de qualité, au milieu des larges espaces verts du parc.
À proximité :
- Desserte routière A8 Antibes à 5 mn
- Aéroport International Nice Côte d'Azur à 20 mn
Services & prestations
Aménagements
-
Accès Pers. Mobilité Réduite
-
Effectif théorique : 1 pers/7m² SUBL sur le bâtiment A
-
Espaces Co-working : Sur l'immeuble voisin
-
Sanitaires : Parties communes
Equipements
-
Ascenseurs : 8
-
Climatisation : Air rafraîchi
-
Câblage informatique : Fibre optique et précâblage jusqu'aux lots privatifs
-
Distribution chauffage : Réversible
-
Distribution climatisation : Ventilo convecteur en plafonnier
-
Eclairage Bureaux : Luminaires encastrés
-
Faux plafond : Dal. fibres minéral.
-
Faux plancher : Sur le bâtiment A
-
Fenêtres
-
Production climatisation : Autonome
-
Sol bureaux : Moquette à partir de fibres recyclées (filets de pêche)
Hauteurs
-
Hauteur sous-plafond : 2,70 mètre(s)
Prestations de service
-
Parking : 1/25 m² (392 places)
Extérieurs
-
Terrasses - jardins : A chaque étage
-
Trame de façade : 1,35 mètre(s)
Normes, Certifications et Labels
-
Certification : HQE
-
Label actuel : Label BREEAM VeryGood et E+C- Niveau E3C1
Type / Etat du bâtiment
-
Etat de l'immeuble : Neuf
-
Etat des locaux : Neuf
-
Immeuble indépendant
Informations complémentaires
-
Architecte : FEVRIERCARRE, Béton bas carbone (-30% d'émission CO2 qu'un béton classique)
-
Panneaux photovoltaïques en autoconsommation, Profondeur des plateaux entre 16 m et 18 m
-
Ceinture d’espaces verts en Espaces Boisés Classés, Hauteur de dalle à dalle prévue 3,60 m










