




20 Rue Jean-Jacques Rousseau
67000 Strasbourg
522 m²
172 €
HT/HC/m²/an
Disponibilité : Immédiate

Nalan KOLAT
Description
STRASBOURG
QUARTIER TIVOLI - IMMEUBLE INDEPENDANT - REF. OLBUR2110872
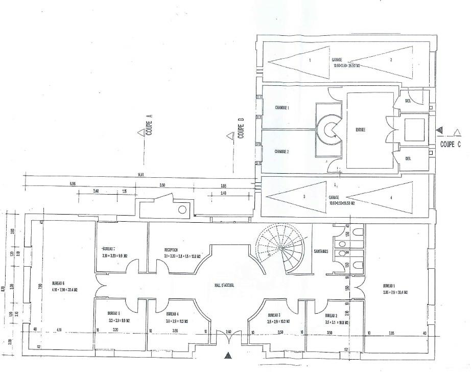
A LOUER: Au sein du quartier du Tivoli à Strasbourg, à deux pas du centre-ville et du Quartier d'Affaires Internationales - ARCHIPEL WACKEN Europe, nous vous proposons à la location un immeuble indépendant de bureaux d'une surface de plus de 500 m² environ. Ils disposent d'un hall d'entrée et un accueil lumineux, de nombreux bureaux cloisonnés, une salle de bain, des sanitaires à chaque niveau, cuisine équipée, des archives au sous-sol. Ils disposent de grandes baies vitrées, placards, volets électriques, climatisation et fibre optique. Prestations de qualités. Disponibilité immédiate.
BNP PARIBAS REAL ESTATE vous propose à STRASBOURG, à quelques pas du QUARTIER D'AFFAIRE INTERNATIONAL ARCHIPEL, de BUREAUX totalisant une surface un peu plus de 500 m², situés dans un immeuble indépendant, rare sur le marché STRASBOURGEOIS.
L'immeuble à usage de BUREAUX est situés dans une rue calme, totalise une surface LOI CARREZ d' environ 532 m² sur 3 niveaux plus son sous-sol à usage d'ARCHIVES.
Un hall d'entrée MODERNE et LUMINEUX vous permet d'accueillir clients, prospects et futures recrues. Une CUISINE ésuipée, de salles des réunions, une salle de bain et nombreux sanitaires complètent cette offre, idéale pour promouvoir un esprit d'entreprise et une bonne cohésion d'équipe.
Proche DES INSTITUTIONS EUROPEENNES, et le CENTRE-VILLE de STRASBOURG.
Ces BUREAUX sont accessibles
- à VELO,
- en voiture, l'accès AUTOROUTE A4/A35 se trouve à 2 minutes
- en BUS avec la ligne H qui vous rélie directement à la GARE TGV de STRASBOURG
- et TRAM, l'arrêt Wacken, desservi par les lignes B et E, situé à 300 m.
De nombreux services couvrent cette zone comme les CRECHES, RESTAURANTS, HOTELS, ECOLES....
Ces BUREAUX sont disponibles immédiatement à la LOCATION comme à la VENTE.
Les informations sur les risques auxquels ce bien est exposé sont disponibles sur le site Géorisques : www. georisques. gouv. fr
Nous restons a votre disposition pour toute information complémentaire et une VISITE.
Services & prestations
Aménagements
-
Accueil : Espace d'attente
-
Aménagement des bureaux : Cloisonnés/Ouverts
-
Bureaux cloisonnés : 14
-
Sanitaires : Privatif(s)
Equipements
-
Climatisation : Réversible
-
Distribution chauffage : Au sol
-
Distribution climatisation : Ventilo convecteur en plafonnier
-
Eclairage Bureaux : Luminaires encastrés et luminaires suspendus
-
Faux plafond : Staff.
-
Fenêtres : Double vitrage
-
Plinthes techniques périphériques
-
Production climatisation : Autonome
-
Sol bureaux : Parquet
-
Source chauffage : Electrique
-
Type de chauffage : Individuel
Prestations de service
-
Cafétéria : Cuisine équipée
-
Parking : En enfilades
Type / Etat du bâtiment
-
Etat de l'immeuble : Etat d'usage
-
Etat des locaux : Etat d'usage
-
Immeuble indépendant
Informations complémentaires
-
Théatre, Rhénus sport, Volets roulants électriques
-
Hôtels et restaurants à proximité










