




Location Bureau 7 724 m²
33700 Mérignac
7 724 m²
Divisible dès 193 m²
à partir de 180 €
HT/HC/m²/an
Disponibilité : 18 mois après accord

Ludovic MICHELON
Description
Location de bureaux à Mérignac – Programme neuf LE SPI avec terrasses et visibilité directe sur le tramway
Opération prime et vertueuse de bureaux labélisée BREEAM Very Good, LE SPI bénéficie d’un emplacement stratégique à Mérignac depuis l’avenue JF Kennedy au pied du tramway et à quelques minutes de l’aéroport de Bordeaux Mérignac et offre à ses utilisateurs toutes les commodités à proximité immédiate : Mérignac Soleil, restaurants & services. Les bureaux bénéficient également de vues dégagées sur le lac Innolin offrant un cadre de travail privilégié . LE SPI propose de nombreuses terrasses, des espaces verts et des prestations techniques abouties.
Vous recherchez des bureaux neufs à louer à Mérignac dans un environnement professionnel stratégique ? BNP Paribas Real Estate vous propose LE SPI, un programme tertiaire haut de gamme, situé sur l'avenue John Fitzgerald Kennedy, au sein du parc d'affaires Cadera, l'un des pôles économiques majeurs de la rive ouest bordelaise.
Cette opération en développement vous offre une excellente visibilité depuis l'avenue, un accès direct au tramway A, ainsi qu'un environnement riche en services, propice à l'épanouissement des entreprises et de leurs collaborateurs.
Un programme tertiaire neuf et durable, conçu pour les entreprises innovantes
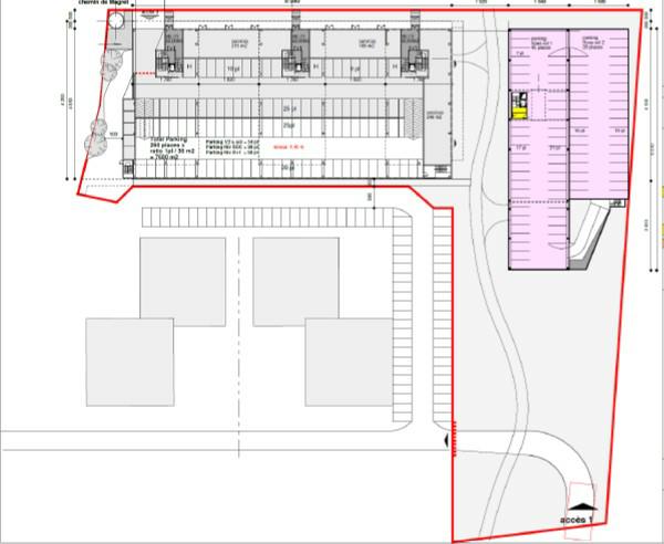
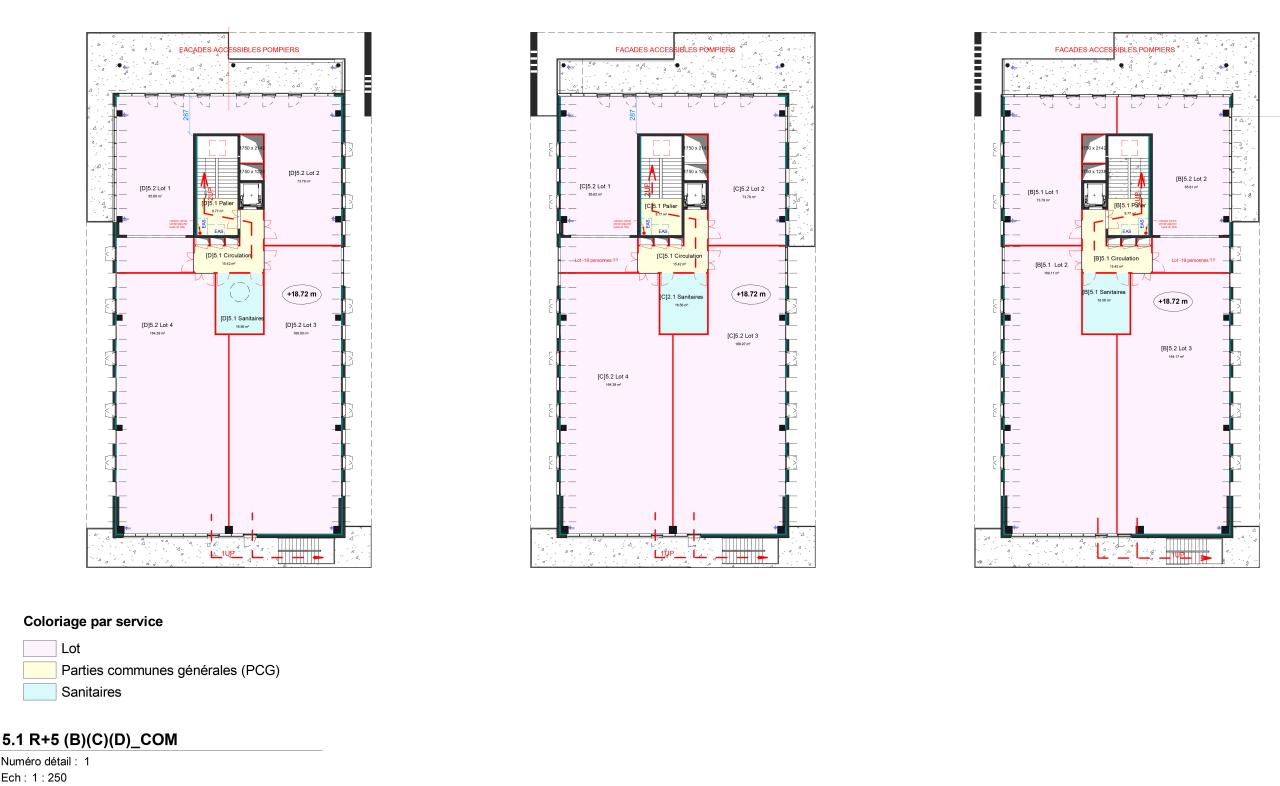
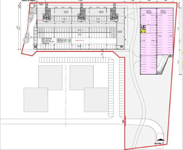
Composé de 4 immeubles totalisant environ 11 370 m², le programme LE SPI accueille déjà un acteur majeur de la tech dans son premier bâtiment de 3 700 m². Les bâtiments B, C et D seront disponibles à la location au 1er semestre 2027, offrant au total 7 670 m² de bureaux neufs à louer à Mérignac, avec des prestations techniques élevées.
Les atouts du programme :
Label BREEAM Very Good
Nombreuses terrasses aménagées pour les utilisateurs
Parc paysager de 3 800 m², propice au bien-être et à la détente
239 places de stationnement privatifs
Plateaux de bureaux flexibles, adaptés aux nouvelles organisations de travail
Ces espaces de bureaux haut de gamme à Mérignac sont conçus pour répondre aux attentes des entreprises en quête de performance, de confort et de durabilité.
Accessibilité optimale et cadre de travail dynamique
Le programme LE SPI bénéficie d'une accessibilité exceptionnelle, tant en transports en commun qu'en voiture, ce qui en fait une adresse stratégique pour implanter ses bureaux à Mérignac.
Accès et mobilité :
Ligne A du tramway station Cadera Issartier au pied du programme
Aéroport de Bordeaux-Mérignac à 2 stations de tramway
Accès direct à la rocade via la sortie 11a
Stationnement privatif et parkings extérieurs
Services de proximité :
Nombreux restaurants, services et commerces
Parc tertiaire établi avec une forte concentration d'entreprises
Offre de crèches, hôtels, restauration rapide ou traditionnelle à moins de 5 minutes
Les points forts à retenir
Location bureaux Mérignac au sein du parc Cadera, dans un programme neuf en développement
Visibilité maximale sur l'avenue Kennedy, au pied du tramway A
Bureaux avec terrasses et espaces verts privatifs
Prestations techniques élevées et label BREEAM Very Good
Disponibilité à partir du 1er semestre 2027
À découvrir également :
Ne manquez pas cette opportunité unique d'installer votre entreprise à Mérignac dans un immeuble neuf et durable.
Contactez BNP Paribas Real Estate au 05 56 44 09 12 pour plus d'informations sur les bureaux disponibles dans le programme LE SPI.
Services & prestations
Aménagements
-
Aménagement des bureaux : Espaces Ouverts
-
Hall d'accueil
Equipements
-
Ascenseurs
-
Climatisation : Réversible
-
Eclairage Bureaux : LED
-
Faux plancher
Prestations de service
-
Parking : 348 Places
Extérieurs
-
Terrasses - jardins
Type / Etat du bâtiment
-
Etat de l'immeuble : Neuf
-
Etat des locaux : Neuf
Informations complémentaires
-
Parc végétalisé de 3 882 m²










