




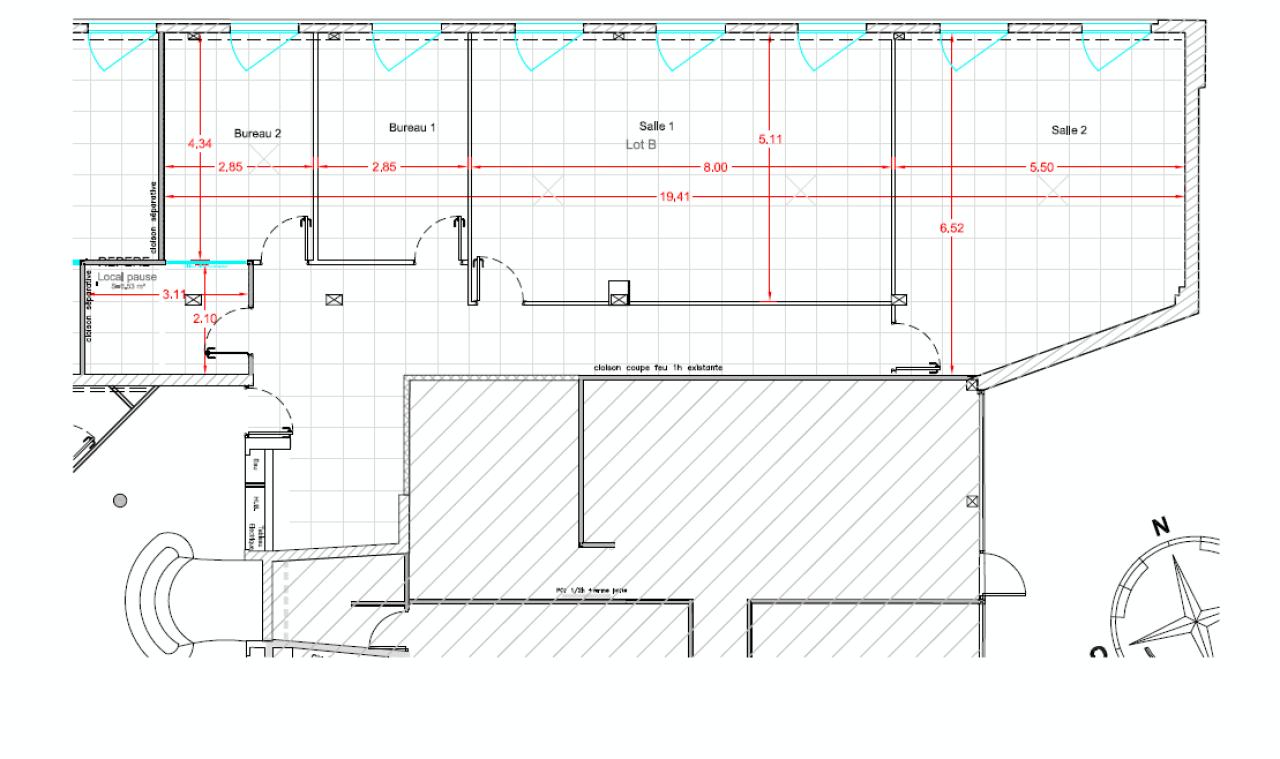
Location Bureau 144 m²
31100 Toulouse
144 m²
135 €
HT/HC/m²/an
Disponibilité : Immédiate

Louise BOURRIERES
Description
SECTEUR BASSO CAMBO,
Au RDC d'un immeuble situé à 300 m du métro et à 3 mn de la rocade et de l'Arc en Ciel, BNP Paribas Real Estate vous propose une surface à usage de bureaux, disponible à la location.
L'intégralité de nos offres sur : https://www.bnppre.fr/toulouse
*** TOULOUSE SUD-OUEST - BUREAUX A LOUER ***
BNP PARIBAS REAL ESTATE Transaction vous invite à découvrir ce bel immeuble à 300 mètres du métro ligne A et à 3 minutes du périphérique Ouest et de la rocade Arc en Ciel.
La surface est située au RDC et est disponible à la location.
Disponibilité : immédiate.
Desserte & transports :
- Métro ligne A station Basso Cambo : 300 mètres
- Bus : arrêt à 100 mètres
- Desserte routière : 2 kilomètres
- Aéroport de Toulouse-Blagnac : 8 kilomètres.
Services :
- Hall d'accueil
- Accès PMR (Personne à Mobilité Réduite)
- Espaces verts
- Parkings extérieurs
Prestations techniques :
- Climatisation : Réversible
- Distribution climatisation : Ventilo convecteur en plafonnier
- Source chauffage : électrique
- Sécurité : Contrôle d'accès
- Eclairage Bureaux : Luminaires encastrés
- Sol bureaux : PVC
- Sanitaire(s) : Parties communes
- Distribution chauffage : Réversible
Pour visiter, contactez-nous au 05 61 23 56 56.
L'intégralité de nos offres sur : https://www.bnppre.fr/toulouse
Zoom sur le secteur de Toulouse Basso Cambo :
Le parc d’activités de Basso Cambo est le plus grand parc d’activités de TOULOUSE. Il est situé au Sud-Ouest de l’agglomération, à proximité immédiate des rocades toulousaines.
Il s’agit d’une ZAC lancée dans les années 1980 qui a déjà connu deux extensions (Z.A.C de Basso Cambo II et III), dont la vocation première était d’accueillir des entreprises de haute technologie.
Cette zone, aujourd’hui presque entièrement commercialisée, est construite de bâtiments tertiaires de bon standing et de bâtiments mixtes. Des implantations significatives telles que : EDF, METEO FRANCE, CONTINENTAL, THALES, SFR, CAPGEMINI se trouvent à proximité immédiate. Notons également que Basso Cambo abrite le terminus Ouest de la ligne A du métro accessible grâce à de nombreuses lignes de bus.
Le secteur sud-ouest de TOULOUSE (Basso Cambo, Bordelongue) représente aujourd’hui un parc immobilier tertiaire d’environ 780000 m².
Services & prestations
Aménagements
-
Accès Pers. Mobilité Réduite
-
Aménagement des bureaux : Espaces Ouverts
Equipements
-
Climatisation : Réversible
-
Distribution chauffage : Réversible
-
Distribution climatisation : Ventilo convecteur en plafonnier
-
Eclairage Bureaux : Luminaires encastrés
-
Plinthes techniques périphériques
-
Production climatisation : Autonome
-
Source chauffage : Electrique
Prestations de service
-
Sécurité : Contrôle d'accès
Type / Etat du bâtiment
-
Etat de l'immeuble : Etat d'usage
-
Etat des locaux : Rénové
-
IGH / Code du travail : Code du travail
Informations complémentaires
-
Cuisine










