




31 Rue Roquelaine
31000 Toulouse
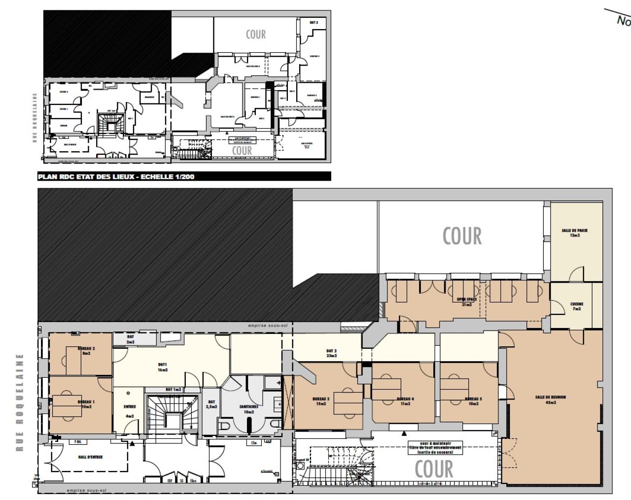
188 m²
170 €
HT/HC/m²/an
Disponibilité : Immédiate

Louise BOURRIERES
Description
*** A LOUER : SECTEUR JEANNE D'ARC BUREAUX A RENOVER ***
A proximité du métro Jeanne d'Arc et de la gare Toulouse Matabiau, BNP Paribas Real Estate vous propose une surface à usage de bureaux, disponible à la location.
Les bureaux de 188 m² doivent être rénovés en collaboration avec le bailleur.
Prestations :
Climatisation : Réversible
Distribution climatisation : Splits muraux
Sécurité : Contrôle d'accès
Distribution chauffage : Réversible
Production climatisation : Autonome
Sol PVC
Cuisine
Petites terrasses
Desserte & transports :
Métro ligne B "Jeanne d'Arc" à 400 mètres
Bus arrêt "Place Roquelaine à 240 mètres
Vélos partagés à proximité
Gare Toulouse Matabiau à 900 mètres
Desserte routière : accès rocade à 3,4 kilomètres sortie n°31 "Ponts Jumeaux"
Aéroport de Toulouse-Blagnac à 9 kilomètres.
Bail commercial 3/6/9 ans
ZOOM SUR TOULOUSE CENTRE :
Le centre-ville de Toulouse est un pôle économique majeur, offrant un large choix d'opportunités en immobilier d'entreprise. Il séduit autant les grandes entreprises que les startups. Son accessibilité, son dynamisme et la diversité de son offre en font un emplacement privilégié pour y implanter son entreprise.
Le quartier Matabiau, en pleine transformation avec le projet Grand Matabiau Quais d'Oc, est destiné à devenir le nouveau quartier d'Affaires de la Métropole. Grâce à la modernisation de la Gare Toulouse-Matabiau, l'arrivée de la 3ème ligne de métro et des aménagements urbains ambitieux, ce nouveau quartier offrira une offre tertiaire moderne et connectée aux entreprises en quête de centralité et d'accessibilité.
Le quartier Guillaumet, situé à l'est du centre-ville, actuellement en pleine reconversion propose une offre diversifiée de logements, commerces et bureaux. Il est conçu pour favoriser l'innovation et le bien-être au travail et attire déjà de nombreuses entreprises.
Situé à deux pas du centre-ville et du Capitole, la ZAC de Compans Caffarelli est le 1er quartier d'affaire de TOULOUSE regroupant un parc immobilier vieillissant qui nécessitera une remise à niveau et une production d'offres neuves.
Services & prestations
Aménagements
-
Aménagement des bureaux : Cloisonnés
-
Sanitaires : Privatif(s)
Equipements
-
Climatisation : Réversible
-
Distribution chauffage : Réversible
-
Distribution climatisation : Splits muraux
-
Eclairage Bureaux : Luminaires encastrés
-
Faux plafond : Dal. fibres minéral.
-
Production climatisation : Autonome
-
Sol bureaux : PVC
Prestations de service
-
Sécurité : Contrôle d'accès
Extérieurs
-
Terrasses - jardins
Type / Etat du bâtiment
-
IGH / Code du travail : Code du travail
Informations complémentaires
-
Cuisine










