




Location Bureau 383 m²
31000 Toulouse
383 m²
196 €
HT/HC/m²/an
Disponibilité : Immédiate

Louise BOURRIERES
Description
SECTEUR CENTRE-VILLE,
A proximité immédiate des transports et de la gare, BNP Paribas Real Estate vous propose une surface avec vitrine à usage de bureaux, disponible à la location.
L'intégralité de nos offres sur : https://www.bnppre.fr/toulouse
*** TOULOUSE CENTRE / GARE TOULOUSE-MATABIAU : BUREAUX A LOUER ***
BNP Paribas Real Estate vous propose des bureaux disponibles à la location à proximité immédiate de la gare de Toulouse-Matabiau et à 10 min de l'hyper-centre de la ville rose, notamment du Capitole.
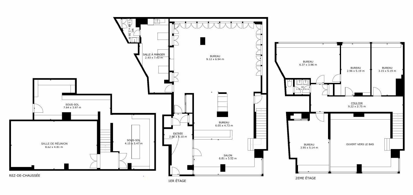
Les bureaux sont disponibles immédiatement. Ils sont situés sur 3 niveau : 127,67 m² en RDC et deux plateaux de 127,67 m² chacun au R+1. Ils disposent d'une surface de vitrine à l'étage.
Le site bénéficie de tous les services et commerces du centre-ville.
La desserte est idéale : bus, station Vélô Toulouse, métro ligne A station Matabiau à moins de 350 m, métro station Jean-Jaurès lignes A & B à 10 min à pied.
L'accès rocade est à 3 km et l'aéroport de Toulouse-Blagnac à 10 km.
Conditions financières :
Bail commercial 3/6/9
Loyer Bureaux : 195,82 /m²/an HT HC
Provision sur charges/an : 41,77 /m²/an
Taxe foncière : 17,53 /m²/an.
Vous souhaitez visiter ? Contactez-nous au 05 61 23 56 56.
L'intégralité de nos offres sur : https://www.bnppre.fr/toulouse
Zoom sur l'hyper-centre de Toulouse :
Le centre-ville de Toulouse est un pôle économique majeur, offrant un large choix d'opportunités en immobilier d'entreprise. Il séduit autant les grandes entreprises que les startups. Son accessibilité, son dynamisme et la diversité de son offre en font un emplacement privilégié pour y implanter son entreprise.
Le quartier Matabiau, en pleine transformation avec le projet Grand Matabiau Quais d'Oc, est destiné à devenir le nouveau quartier d'Affaires de la Métropole. Grâce à la modernisation de la Gare Toulouse-Matabiau, l'arrivée de la 3ème ligne de métro et des aménagements urbains ambitieux, ce nouveau quartier offrira une offre tertiaire moderne et connectée aux entreprises en quête de centralité et d'accessibilité.
Le quartier Guillaumet, situé à l'est du centre-ville, actuellement en pleine reconversion propose une offre diversifiée de logements, commerces et bureaux. Il est conçu pour favoriser l'innovation et le bien-être au travail et attire déjà de nombreuses entreprises.
Situé à deux pas du centre-ville et du Capitole, la ZAC de Compans Caffarelli est le 1er quartier d'affaire de TOULOUSE regroupant un parc immobilier vieillissant qui nécessitera une remise à niveau et une production d'offres neuves.
Services & prestations
Type / Etat du bâtiment
-
Etat des locaux : Etat d'usage










