




14 Rue des Cosmonautes
31400 Toulouse
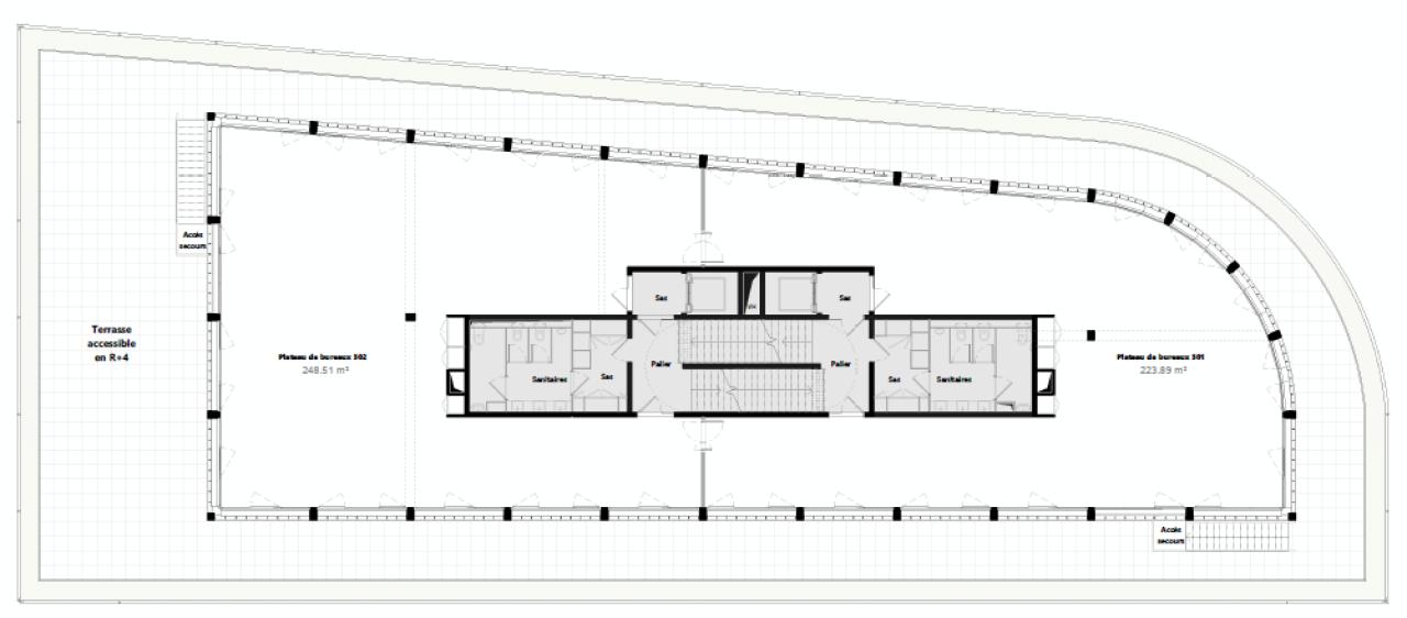
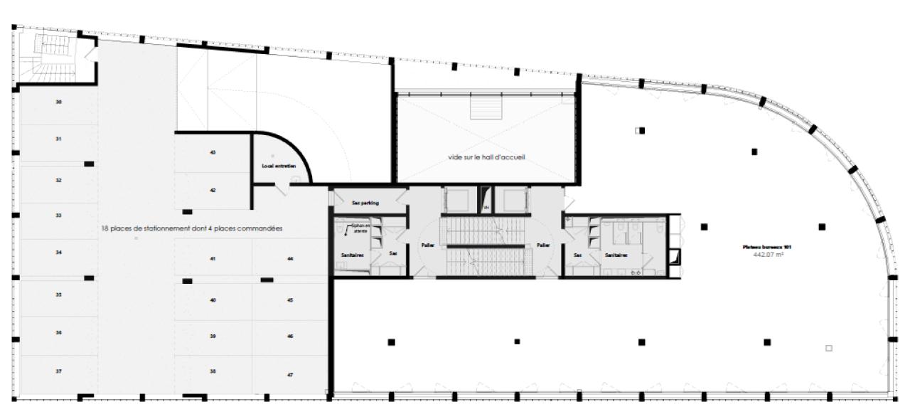
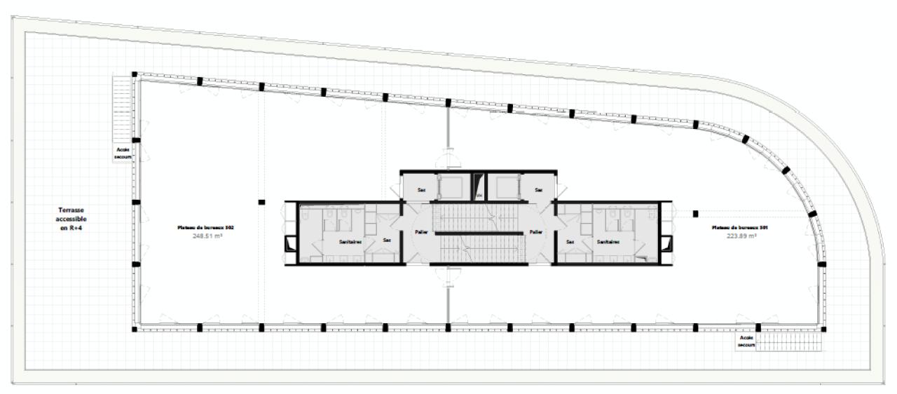
4 102 m²
Divisible dès 530 m²
210 €
HT/HC/m²/an
Disponibilité : 18 mois après accord

Aymeric DE SAINT AULAIRE
Description
TOULOUSE MONTAUDRAN : BUREAUX NEUFS A LOUER OU A VENDRE
A proximité immédiate de la future ligne de métro et de Airbus Defense and Space, BNP Paribas Real Estate vous propose un immeuble de bureaux à construire, disponible à la location ou à la vente.
Découvrez COSMOPOLIS, 4 000 m² de bureaux modernes et fonctionnels à louer ou à vendre, idéalement situés au coeur du secteur dynamique de Toulouse Sud-Est.
Cet immeuble de bureaux répond parfaitement aux besoins des entreprises en quête d'un environnement de travail performant, flexible et facilement accessible.
Un emplacement stratégique à Toulouse
Situé à proximité immédiate de l'autoroute A61, COSMOPOLIS bénéficie d'une excellente accessibilité, que ce soit en voiture, en transports en commun ou à vélo. La présence de lignes de bus et la proximité du métro ligne B (station Rangueil) facilitent les déplacements quotidiens de vos collaborateurs. Vous profiterez également d'un environnement dynamique, à quelques minutes du centre-ville de Toulouse et des pôles d'activités majeurs.
Avec une certification BREEAM Very Good et un label R2S 4 GRIDS, le bâtiment fait écho à son environnement. Sur sa périphérie, des arbres assureront la protection solaire du bâtiment au Sud et à l'Ouest, tandis que des plantes tapissantes agrémenteront les pieds des façades Nord et Est, pour accompagner les cheminements piétons.
Des espaces de bureaux flexibles et modernes
COSMOPOLIS propose des plateaux de bureaux lumineux, modulables selon vos besoins. Conçus pour favoriser la productivité et le bien-être, ces espaces bénéficient de :
Plateaux facilement aménageables pour des configurations en open-space ou bureaux cloisonnés
Terrasses et rooftop
Local 2 roues
Climatisation réversible pour un confort optimal toute l'année
Forte luminosité naturelle grâce à de larges baies vitrées
Espaces communs modernes et accueillants pour vos équipes et vos visiteurs
Un éco-quartier à la pointe de la technologie au service de l'immobilier
Toulouse Aerospace est bien plus qu'un quartier : c'est un symbole de l'héritage aéronautique toulousain et un laboratoire d'innovations tourné vers l'avenir. Implanté sur l'ancienne piste mythique de Montaudran, berceau des pionniers de l'Aéropostale, il incarne le lien entre passé glorieux et technologies de demain. Ce pôle dynamique accueille des acteurs majeurs de l'aéronautique, du spatial et des industries de pointe, autour de sites emblématiques tels que Airbus Defense and Space, le B612, véritable hub de recherche et d'innovation, ou la Piste des Géants, hommage vivant à l'épopée aérienne.
Sur le plan de l'immobilier d'entreprise, Toulouse Aerospace se distingue par son offre variée et haut de gamme. Bureaux modernes, espaces de coworking flexibles, incubateurs et laboratoires de recherche s'intègrent dans un environnement pensé pour stimuler la créativité et la collaboration. La qualité des infrastructures, la proximité des grands axes, ainsi que l'arrivée prochaine de la ligne C du métro renforcent l'attractivité de ce quartier stratégique.
Toulouse Aerospace est ainsi un véritable catalyseur économique, où se rencontrent talents, technologies et opportunités, au coeur d'un cadre qui allie histoire, innovation et qualité de vie.
Vous souhaitez visiter ? Contactez-nous dès aujourd'hui.
Toutes nos offres sur : https://www.bnppre.fr/toulouse/
Services & prestations
Aménagements
-
Sanitaires : Parties communes
Equipements
-
Ascenseurs
-
Climatisation : Réversible
-
Distribution chauffage : Réversible
-
Distribution climatisation : Ventilo convecteur en plafonnier
-
Eclairage Bureaux : Luminaires encastrés
-
Faux plafond : Dal. fibres minéral.
-
Plinthes techniques périphériques
-
Production climatisation : Autonome
-
Sol bureaux : Moquette
Prestations de service
-
Sécurité : Contrôle d'accès
Extérieurs
-
Terrasses - jardins : Et rooftop
Normes, Certifications et Labels
-
Certification : BREEAM
Type / Etat du bâtiment
-
Etat des locaux : Neuf
-
IGH / Code du travail : Code du travail
Informations complémentaires
-
Local 2 roues
-
225 m² de réserves en R-1










