




22 Boulevard de la Marquette
31000 Toulouse
5 215 m²
Divisible dès 800 m²
265 €
HT/HC/m²/an
Disponibilité : 15 mois après accord

Olivier CALVET
Description
TOULOUSE CENTRE-VILLE – BUREAUX À LOUER / À VENDRE
Offrez à votre entreprise une adresse prestigieuse au cœur de la ZAC Compans Caffarelli !
Au coeur du quartier d'affaires de Toulouse et face au Canal du Midi, BNP Paribas Real Estate vous propose un bâtiment indépendant, entièrement restructuré de 5 200 m² à usage de bureaux.
Le prix de vente et/ou le loyer sont actualisables selon l'ILAT du T2 2024.
Ce projet haut de gamme sera certifié HQE Rénovation, garantissant des performances environnementales et énergétiques optimales.
Livraison : 15 mois après accord
DES BUREAUX MODERNES ET FONCTIONNELS :
Aménagement : Open-space (non cloisonné), idéal pour une flexibilité maximale.
Équipements :
Moquette au sol pour un confort acoustique.
Luminaires LED
Climatisation réversible avec ventilo-convecteurs en plafonnier.
Stores électriques pour un confort visuel optimal.
Accessibilité : Accès sécurisé par contrôle d'accès.
Stationnement :
88 places en sous-sol.
UNE LOCALISATION STRATÉGIQUE :
Métro ligne B : station Compans Caffarelli ou "Canal du Midi" à seulement 5 mn.
Bus : arrêts à 200 m.
Accès routier : à 1 km de la rocade Ouest (sortie n°30 « Ponts Jumeaux »).
Aéroport Toulouse-Blagnac : à seulement 7,6 km.
CONDITIONS FINANCIÈRES (HT/HC) :
Loyer bureaux : 265 /m²/an.
Parking sous-sol : 1 500 /u/an.
Parking extérieur : 750 /u/an.
Type de bail : BEFA (Bail en l'État Futur d'Achèvement).
Dépôt de garantie : 3 mois de loyer HT.
POURQUOI CHOISIR COMPANS CAFFARELLI ?
Situé dans un quartier d'affaires emblématique de Toulouse, Compans Caffarelli est un lieu prisé par les entreprises, les écoles supérieures (Toulouse Business School, Université Toulouse 1 Capitole), et les institutions régionales. Avec ses bureaux modernes, ses hôtels, restaurants, et son magnifique parc de 10 hectares (dont le célèbre jardin japonais), ce quartier offre un cadre de travail et de vie unique.
Pour toute information complémentaire ou pour organiser une visite, contactez l'équipe BNP PARIBAS REAL ESTATE TOULOUSE !
Découvrez toutes nos offres sur : https://www.bnppre.fr/toulouse
INFORMATIONS COMPLEMENTAIRES
Une localisation stratégique au centre de la ville rose
Au sein du quartier d'affaires Campans Caffarelli.
A 200m du métro Canal du Midi.
En bordure du Canal du Midi et à proximité immédiate du Jardin de Compans.
Identité tertiaire du quartier, rareté de l'offre tertiaire en centre-ville.
De nombreux services à proximité.
Revalorisation urbaine à venir du quartier.
Au sein du quartier Compans Caffarelli
Des équipements structurants et des services :
Le jardin public de Compans Caffarelli fait le lien entre deux zones :
Des équipements structurants tels que le Palais des Sports, le Palais de Congrès Pierre Baudis, des hôtels et un centre commercial.
Des écoles privées et les sièges de grandes sociétés.
Face au boulevard, des restaurants et services de proximité complètent l'offre.
Un secteur plébiscité par les utilisateurs :
Plus de 1450 entreprises, administrations et plusieurs écoles telles que TBS et YNOV ont fait le choix de s'installer sur le quartier Compans Caffarelli et profitent d'un environnement agréable.
Un immeuble connecté bénéficiant d'une excellente desserte et accessibilité :
ROUTE
Rocade et autoroute A620
Accès à 5 minutes
METRO
Ligne B CANAL DU MIDI 3 min à pied
TRAIN
GARE TOULOUSE MATABIAU 5 minutes en voiture / 8 min en transport en commun
AEROPORT
TOULOUSE BLAGNAC 20 minutes en voiture / 32 min en transport en commun
BUS
Lignes 15, 70
Navette Aéroport à Compans Caffarelli
Face à l'arrêt « Passerelle Haedens »
Toutes les 15 min, 7j/7
Une identité renouvelée :
La façade sera restaurée et des cadres menuisés en aluminium anodisé seront appliqués pour donner une nouvelle image au bâtiment.
La nouvelle entrée du site sera aménagée au Nord-Ouest, avoisinant le jardin de Compans.
Le socle en mur rideau offrira une ouverture du bâtiment à la lumière et à son environnement.
Tout en préservant le patrimoine :
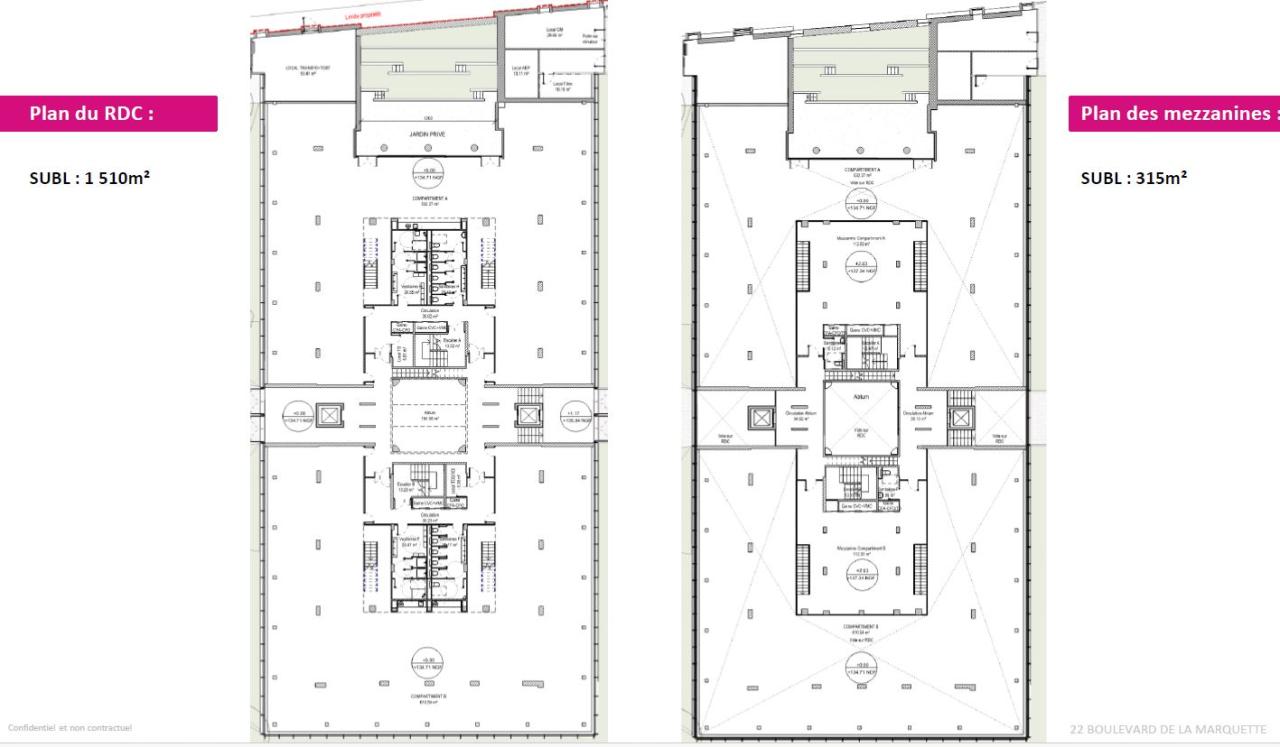
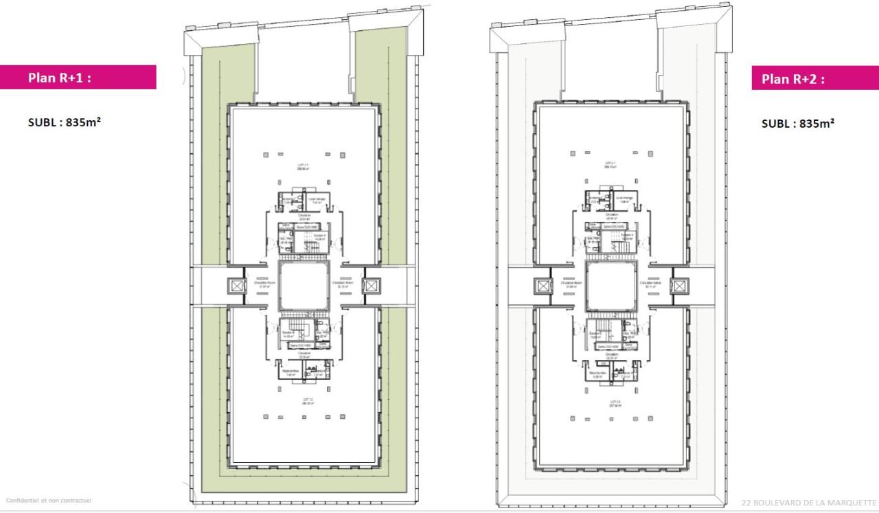
Un atrium unique de 17 mètres dessert l'intégralité des étages et favorise l'entrée de lumière naturelle à l'intérieur du bâtiment en raison de sa toiture en verre.
Ce type d'espace commun contribue à la coopération, l'échange d'idées et le renforcement des liens sociaux, permettant une atmosphère de travail plus collaborative et dynamique. Conservation des 3 matériaux identitaires du bâtiment : le béton brut, les parements en terre cuite et les grilles métalliques tressées.
Les points forts du projet :
L'entrée sera relocalisée et ornée d'une ample végétation.
Jusqu'à 5m de hauteur entièrement vitrée en rez-de-chaussée pour maximiser l'apport de lumière en premier jour.
Création d'espaces de travail : mezzanines surplombant un vaste open space.
Vestiaires et douches en RDC.
Incorporation des dernières technologies développées par GA :
Système de CVC leaf hydro panorama, module de traitement d'air en façade, en tablette cf. p14 permettant de s'affranchir de passage de réseaux en plafond.
Système de GTB Galaxy : pilotage et supervision du bâtiment.
Plateaux lumineux grâce à nombreux et grands châssis isolés.
L'espace extérieur :
Le projet prévoit l'implantation d'un nouveau cadre paysagé vivant de plus de 1000m², entièrement connecté au bâtiment.
Ce jardin, véritable écrin de verdure offre un environnement privilégié en plein coeur de la ville.
Il sera traversé par un cheminement doux, avec des espaces de pauses aménageables et vous guidera naturellement jusqu'à l'entrée, pour aboutir à une zone de stationnement pour vélos sécurisée d'une capacité de 52 places.
Un esprit dedans-dehors s'exprime à travers la façade vitrée du socle, établissant un lien direct entre les espaces de bureau et le paysage végétal tout en assurant une continuité avec le jardin public de Compans.
Leaf Hydro Panorama : Les atouts
Optimisation de la conso énergétique par rapport à un système centralisé de traitement de l'air (jusqu'à 50%),
Installation simplifiée : très peu de réseaux de gaines
Système décentralisé : un appareil en panne n'altère pas le fonctionnement de l'immeuble
Réglage personnalisé du confort
Systèmes réactifs et réponse en température rapide
Vitesse d'air ressentie faible et acoustique intérieure niveau HQE très performant
Double filtrage de l'air neuf pour une hygiène garantie et taux de brassage d'air intérieur élevé
Intégration discrète de l'appareil et usages variés de la tablette
Appareils reliés à la GTB pour un suivi en temps réel et à distance
Chauffage d'appoint par résistances électriques en cas de panne
Entretien simple via une ouverture partielle de l'habillage de l'appareil : filtre à air à remplacer tous les ans et à nettoyer 2 fois par an, bac de récupération des condensats à nettoyerRégulation de la ventilation en fonction du taux de CO2 et de l'occupation des espaces
Régulation de la ventilation en fonction du taux de CO2 et de l'occupation des espaces
Caractéristiques techniques de l'immeuble :
Menuiseries extérieures :
Cadre en aluminium type VEC ouvrant à la française
Stores intérieurs motorisés
Socle vitré :
Mur rideau avec imposte opaque en aluminium anodisé satiné
Entre chaque vitrage : Epines verticales 25cm de profondeur servant de brise soleil
GTB Galaxy :
Supervision de la CVC, éclairage, stores, contrôle d'accès
Analyse et visualisation de données énergétiques d'un bâtiment
Pilotage des consommations énergétiques
Leaf hydro Panorama : Module de traitement d'air
Hauteurs libres :
5m au RDC
2,70m de dalle à dalle dans les étages, traités en technique apparente
Atrium ouvert sur toute la hauteur du bâtiment éclairé par une grande verrière
Certification :
HQE Bâtiment v1.1 niveau Très Performant
Conforme Taxonomie et décret BACS
Capacitaire de l'immeuble de 499 personnes pour 5 200 m²
Surfaces annexes :
Espace vélo sécurisé de 133m² pouvant accueillir jusqu'à 52 deux-roues
88 places de parking situées sous le bâtiment du 21 Marquette
Services & prestations
Aménagements
-
Accès Pers. Mobilité Réduite : Ascenseur
-
Aménagement des bureaux : Espaces Ouverts
-
Sanitaires : Parties communes
Equipements
-
Climatisation : Réversible
-
Câblage informatique
-
Distribution chauffage : Réversible
-
Distribution climatisation : Ventilo convecteur en plafonnier
-
Eclairage Bureaux : Luminaires encastrés
-
Plinthes techniques périphériques
-
Production climatisation : Autonome
-
Sol bureaux : Moquette
Prestations de service
-
Sécurité : Contrôle d'accès
Normes, Certifications et Labels
-
Certification : HQE Rénovation
Type / Etat du bâtiment
-
IGH / Code du travail : Code du travail
Informations complémentaires
-
Stores électriques
-
Locaux vélos : 50€/m² HT HC
-
Local 2 roues : 52 places










