




221 Chemin de Ramelet Moundi
31170 Tournefeuille
9 268 m²
Divisible dès 1 742 m²
160 €
HT/HC/m²/an
Disponibilité : 18 Mois après Accord

Sophie MIZRAHI
Description
TOULOUSE OUEST / TOURNEFEUILLE : BUREAUX NEUFS A CONSTRUIRE
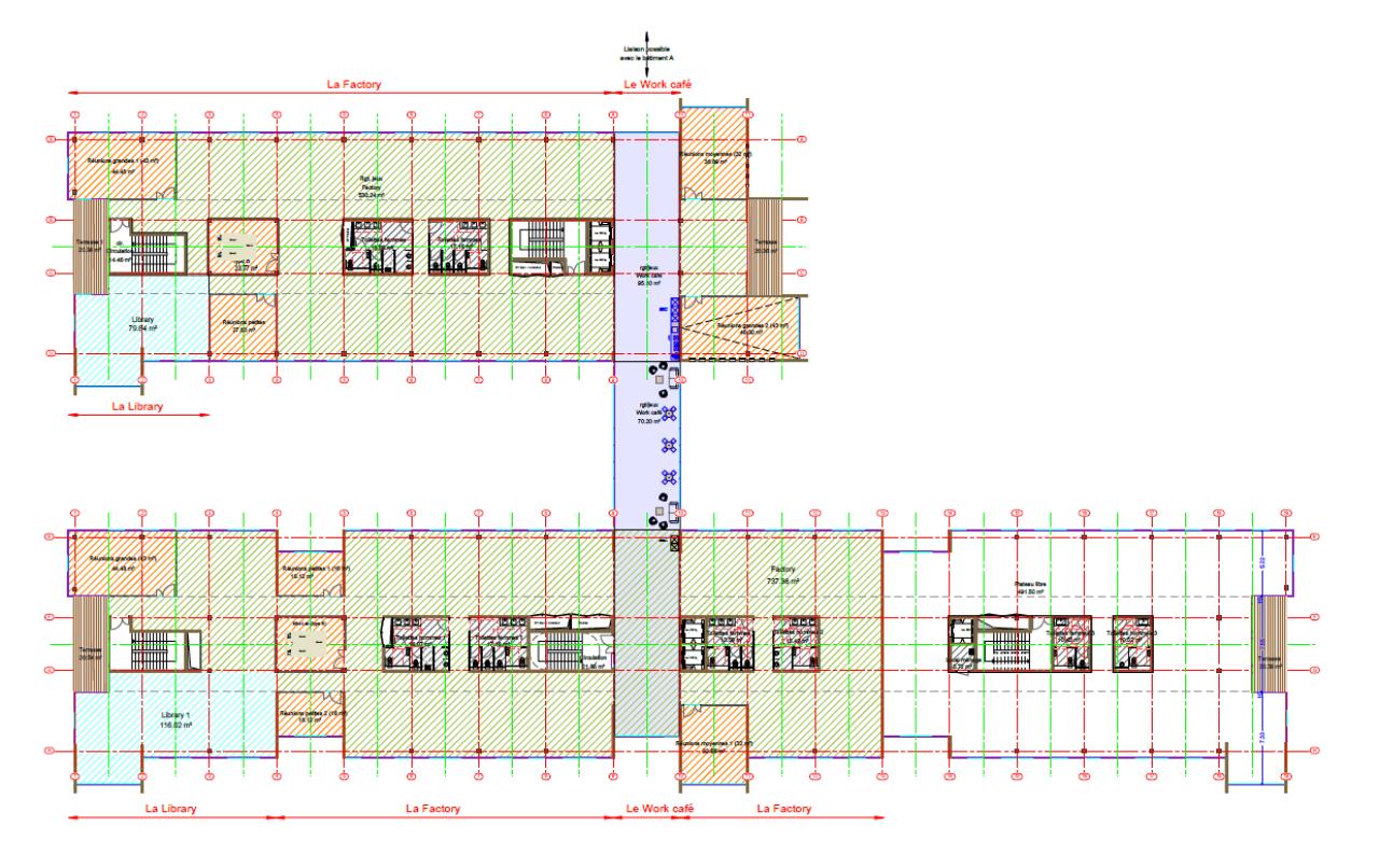
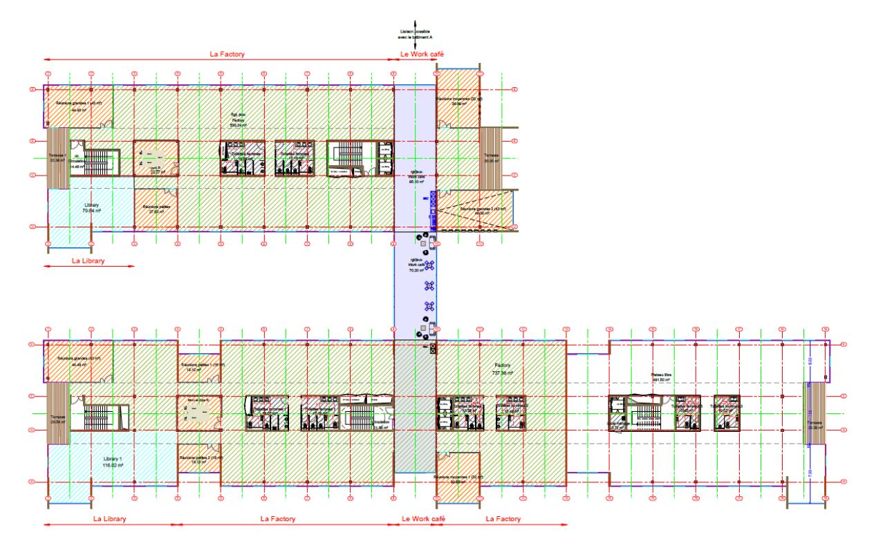
BNP Paribas Real Estate vous propose une opération de bureaux d'une superficie de 9 300 m² SUBL, disponible à la location ou à la vente. L'ensemble est réparti sur 3 bâtiments de deux à trois niveaux chacun, reliés entre eux au RDC par deux larges coursives vitrées. Les locaux seront livrés aménagés mais non cloisonnés.
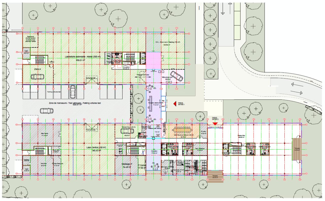
Le foncier se situe au lieu-dit Le Pirac sur la commune de Tournefeuille (31170) chemin de Ramelet Moundi, limite séparative avec la Ville de Toulouse.
Le projet est intégré au coeur du pôle économique de l'Ouest Toulousain, à proximité immédiate de la base de loisirs de La Ramée et au pied de la rocade Arc-en-Ciel.
Un parking silo au nord du terrain abritera 361 places de stationnement automobiles et un parking extérieur offrira 6 places de stationnement. Le tout sera complété par un local vélos de 200 m².
Le projet prévoit :
Des trames de circulation secondaires « apaisées » -véhicules légers
Une extension de la trame pour bouclage - global
Un parking silo avec un accès identifié an lien avec le parvis
Des trames constructives affinées dans une démarche de réversibilité avec un aménagement urbain mutualisé
Des cheminements piétons doux fondus dans un espace urbain mutualisé
Des aménagements urbains mixtes
Prestations techniques :
Climatisation : Réversible
Distribution climatisation : Ventilo convecteur en plafonnier
Sécurité : Contrôle d'accès
Aménagement des bureaux : Espaces Ouverts
Faux plafond : Dalles en fibre minérale
Eclairage Bureaux : Luminaires encastrés
Sol bureaux : Moquette
Sanitaire(s) : Parties communes
Distribution chauffage : Réversible
Production climatisation : Autonome
Accès Pers. Mobilité Réduite
Terrasses - jardins
Parkings ext : 6 unités
Parkings silo : 361 unités
Dessertes & transports :
Métro Ligne A Basso-Cambo à 3 km
Bus à 100 m
Aéroport Toulouse Blagnac à 10 km
Services & prestations
Aménagements
-
Accès Pers. Mobilité Réduite
-
Aménagement des bureaux : Espaces Ouverts
-
Sanitaires : Parties communes
Equipements
-
Climatisation : Réversible
-
Distribution chauffage : Réversible
-
Distribution climatisation : Ventilo convecteur en plafonnier
-
Eclairage Bureaux : Luminaires encastrés
-
Faux plafond : Dal. fibres minéral.
-
Production climatisation : Autonome
-
Sol bureaux : Moquette
Prestations de service
-
Sécurité : Contrôle d'accès
Extérieurs
-
Terrasses - jardins
Normes, Certifications et Labels
-
Certification : BREEAM
Type / Etat du bâtiment
-
Etat de l'immeuble : Neuf
-
Etat des locaux : Neuf
-
IGH / Code du travail : Code du travail










