




5 Avenue Saint-Granier
31300 Toulouse
6 695 m²
Divisible dès 3 348 m²
165 €
HT/HC/m²/an
Disponibilité : 18 mois après accord

Olivier CALVET
Description
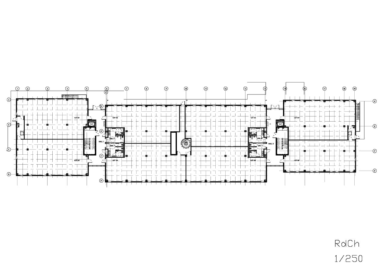
EQUINOX III
5 Avenue Saint-Granier 31300 Toulouse
SECTEUR SAINT-MARTIN / RAMASSIERS,
Au sein d'un programme tertiaire en cours de développement, BNP Paribas Real Estate vous propose un dernier immeuble de 6 695 m² situé au pied de la rocade Arc-en-ciel et à proximité du TER.
L'intégralité de nos offres sur : https://www.bnppre.fr/toulouse
Au sein de la ZAC des Ramassiers et au pied de la rocade Arc en Ciel, découvrez EQUINOX, un ensemble tertiaire d'envergure idéalement situé au coeur du secteur aéronautique de l'Ouest toulousain.
BNP Paribas Real Estate vous propose ce nouveau programme qui sera composé à terme de 3 bâtiments et qui développera au total 14 860 m².
Livraison : 18 mois après accord
Accessibilité :
Rocade Arc en Ciel (D980) au pied de l'immeuble
TER ligne C station « Ramassiers » à 500 m
Lignes de bus 8, 32 et 63
Prestations :
Contrôle d'accès par code et interphone
Sanitaires en parties communes
Ascenseurs
Fibre optique
Climatisation double flux VRV 3 tubes
Bureaux livrés terminés, prêts à cloisonner
Moquette au sol pour l'insonorisation
Faux plafond constitué de dalles en fibre minérale
Plinthes techniques en périphérie
Accès PMR (Personne à Mobilité Réduite).
L'opération est idéalement située au pied de la rocade Arc-en-Ciel, à 500 m de commerces et services de proximité et à 3 min de la ligne TER C station « Ramassiers ». Le site est également desservi par les lignes de bus n°8, 32 et 63.
La ZAC des Ramassiers, qui se situe sur la commune de Colomiers, bénéficie d'un positionnement idéal, entre Toulouse et Tournefeuille, à l'ouest de la métropole. Elle est très bien connectée à Toulouse via la ligne C du TER et la rocade Arc en Ciel.
A noter également que la ZAC des Ramassiers se trouve à 10 min à peine de l'aéroport international de Toulouse Blagnac. L'accès à la zone est aisée via la sortie n°29 « Purpan » de la rocade toulousaine direction AUCH via la N124/A624.
Basé à proximité des pôles économiques métropolitains majeurs, le quartier des Ramassiers est dynamisé par l'activité aéronautique de la zone et de celle limitrophe de la ZAC de Saint-Martin du Touch.
Services & prestations
Aménagements
-
Accès Pers. Mobilité Réduite
-
Aménagement des bureaux : Espaces Ouverts
-
Sanitaires : Parties communes
Equipements
-
Ascenseurs
-
Climatisation : Réversible
-
Distribution chauffage : Réversible
-
Distribution climatisation : Ventilo convecteur en plafonnier
-
Eclairage Bureaux : Luminaires encastrés
-
Faux plafond : Dal. fibres minéral.
-
Plinthes techniques périphériques
-
Production climatisation : Autonome
-
Sol bureaux : Moquette
Hauteurs
-
Hauteur sous-plafond : 2,60 mètre(s)
Prestations de service
-
Sécurité : Contrôle d'accès
Extérieurs
-
Terrasses - jardins
Type / Etat du bâtiment
-
Etat de l'immeuble : Neuf
-
Etat des locaux : Neuf
-
IGH / Code du travail : Code du travail
-
Type d'immeuble : Grand Plateau










