




Location Bureau 900 m²
92700 Colombes
900 m²
Loyer sur demande
Disponibilité : Nous consulter

Damien BRIGANT
Description
Nous vous proposons en exclusivité un bâtiment indépendant mix bureaux et activité/logistique.
Profitez d'un bien en excellent état rénové récemment qui mix activités de bureaux et d'entrepôt.
Ce bien vous ai proposé à usage de bureaux et de stockage sur une parcelle de 1310m².
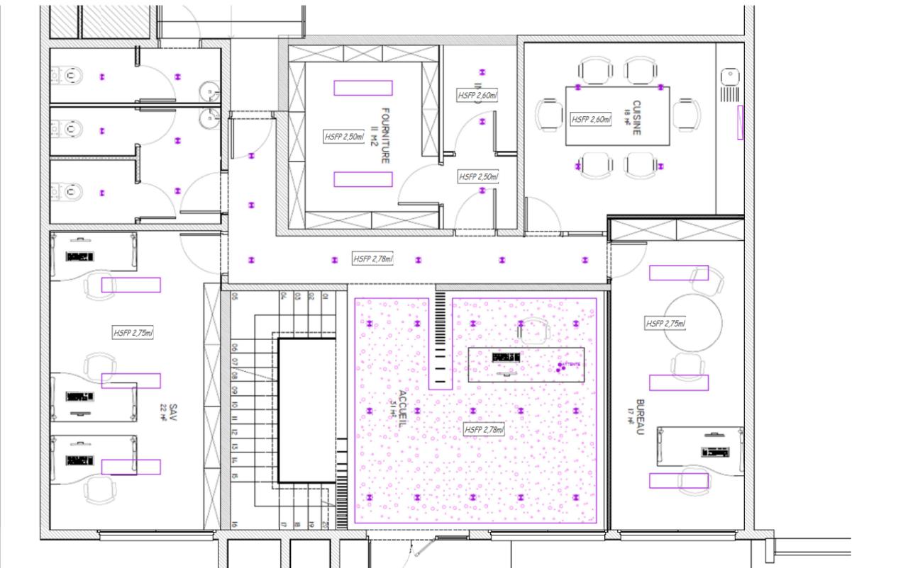
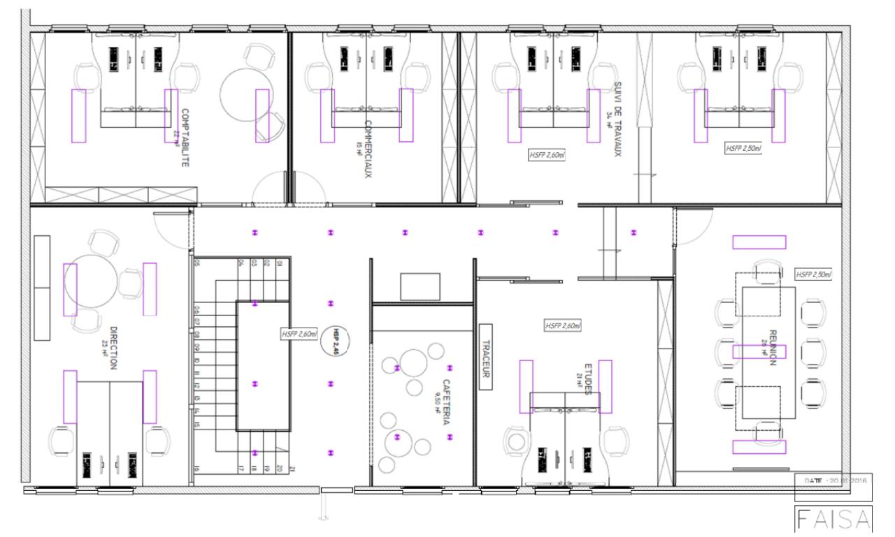
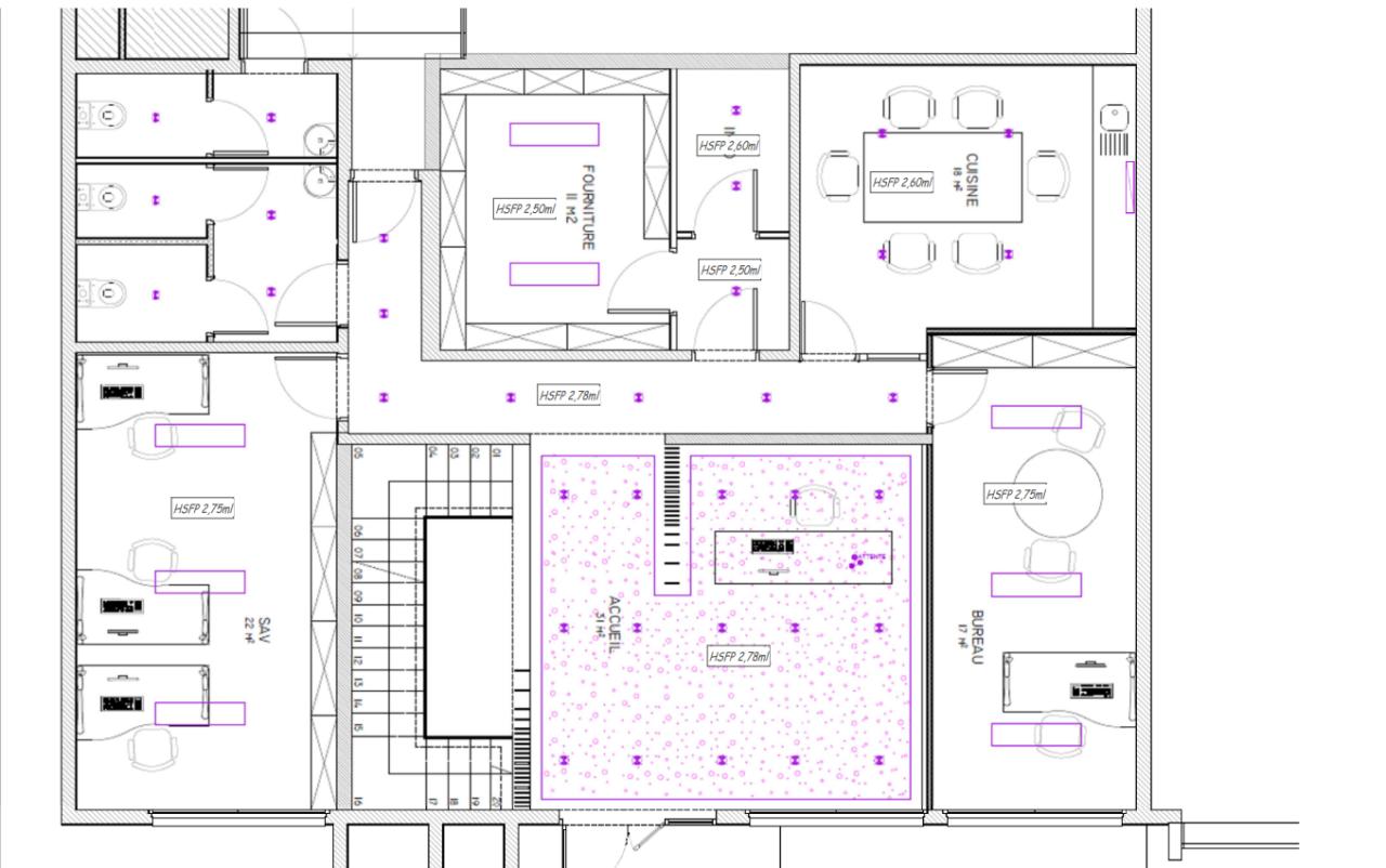
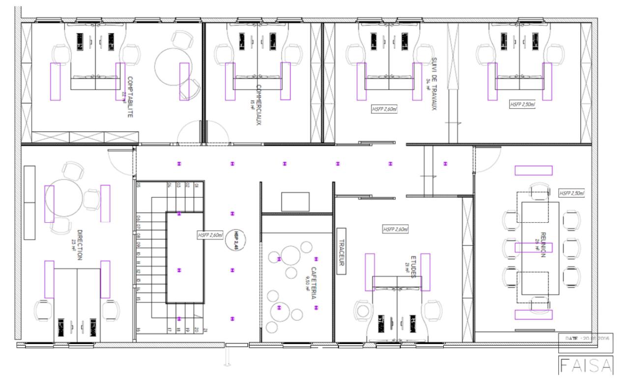
L'ensemble immobilier est composé d'un rez-de-chaussée et un étage pour un total approximatif de 900m² se décomposant comme suit:
- des locaux industriels à usage d'atelier de montage et de zone de stockage (environ 550m²)
- des locaux à usage e bureaux d'une surface approximative de 350m²
- un passage couvert d'une superficie approximative de 100m²
- une cour intérieur pour la circulation de véhicule et le stockage de matériaux et fournitures.
La rénovation de la partie bureaux a été réalisée avec goût, en utilisant des matériaux de qualité, offrant un cadre de travail moderne et soigné.










