




16 Rue Antonin Raynaud
92300 Levallois-Perret
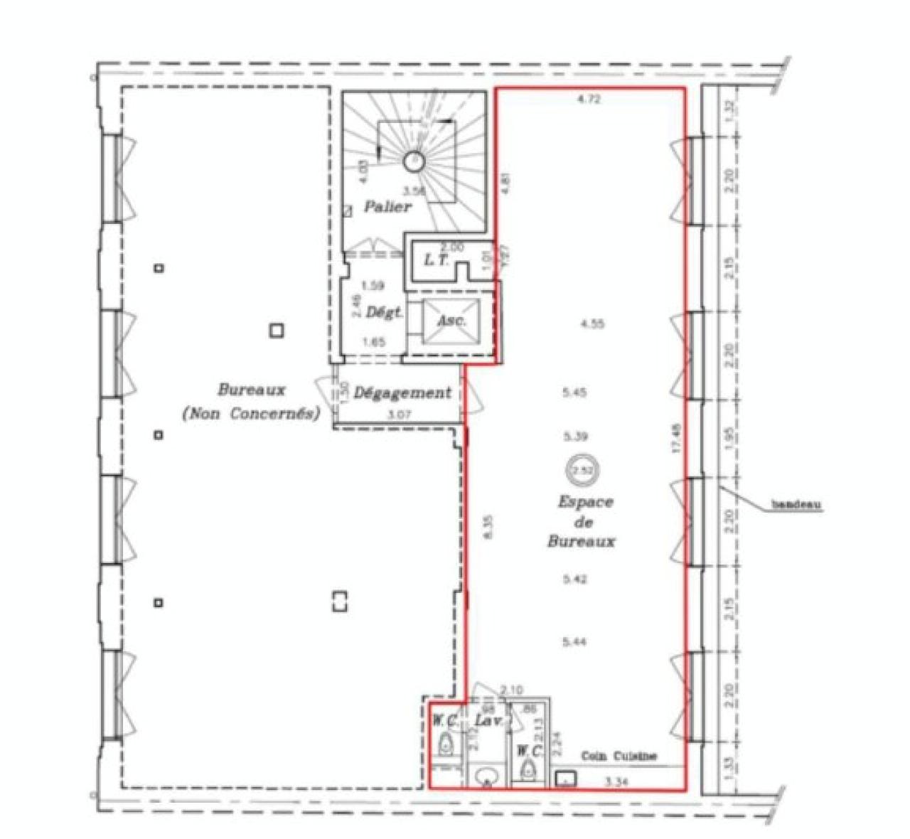
131 m²
350 €
HT/HC/m²/an
Disponibilité : Immédiate

Theo DI GREGORIO
Description
BNP Paribas Real Estate vous propose à la location ce plateau de 130m² idéalement situé.
N'hésitez pas à me contacter pour une visite ou si vous avez des questions sur le bien.
Services & prestations
Aménagements
-
Accueil
-
Aménagement des bureaux : Espaces ouverts
-
Sanitaires : Double
Equipements
-
Ascenseurs : 1
-
Climatisation : Réversible
-
Eclairage Bureaux : Pavé LED au plafond
-
Faux plafond
-
Fenêtres : Ouvrantes
-
Sol bureaux : Moquette
-
Type de chauffage : Individuel
Prestations de service
-
Sécurité : Contrôle d'accès Interphone
Extérieurs
-
Terrasses - jardins : 5eme étage
Type / Etat du bâtiment
-
Etat de l'immeuble : Etat d'usage
-
Etat des locaux : Rénové
-
Type d'immeuble










