




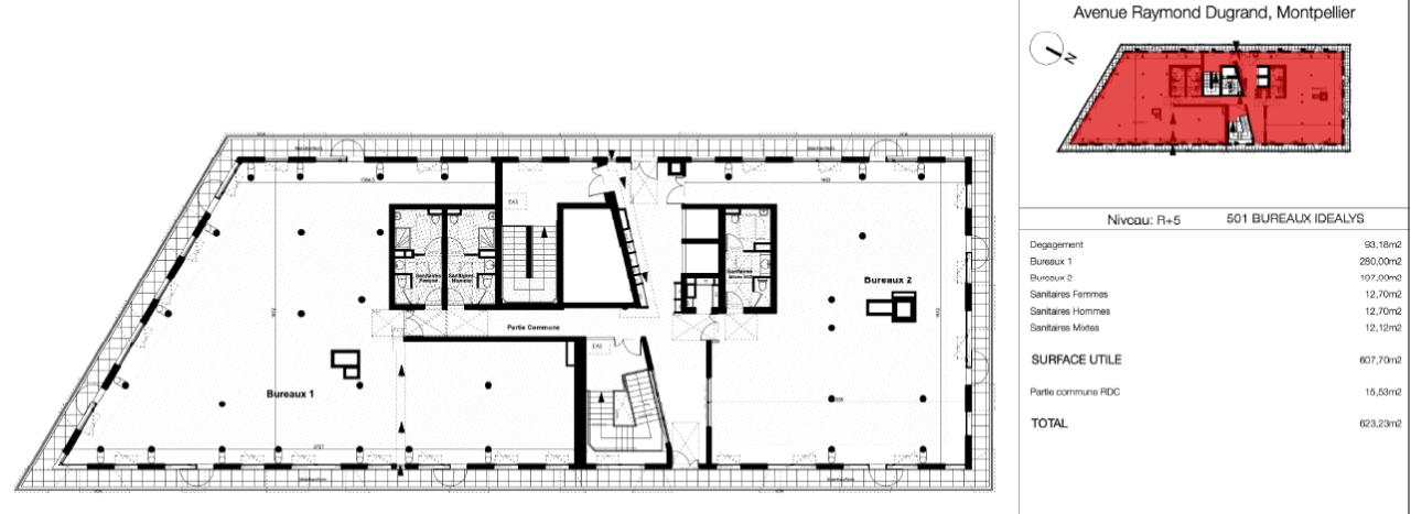
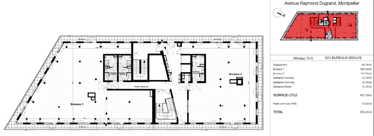
Location Bureau 623 m²
34000 Montpellier
623 m²
200 €
HT/HC/m²/an
Disponibilité : Immédiate

Helene DEHORS
Description
MONTPELLIER CENTRE - PORT MARIANNE - QUARTIER RIVE GAUCHE - SKYLAB - BUREAUX A LOUER
Bureaux neufs à louer au cœur de port Marianne à Montpellier, au sein de l'immeuble SKYLAB.
A louer, dans l'immeuble SKYLAB, au sein du quartier Port Marianne, sur la Zac Rive Gauche, lot de bureaux au R+5 d'une surface de 623 m².
7 parkings en sous sol dont 2 en sous-sol complètent cette offre.
La particularité de SKYLAB : la mixité des usages proposés (bureaux, commerces et habitation) qui réinventent l'espace de travail au coeur même de l'espace résidentiel.
Grâce à l'aménagement d'un coeur d'ilot végétalisé, SKYLAB valorise la biodiversité tout en aménageant un lieu de travail de qualité pour les utilisateurs.
Cet immeuble bénéficie d'une belle visibilité sur l'avenue de la Mer-Raymond Dugrand et d'une desserte immédiate par la ligne 3 de tramway (arrêt Pablo Picasso).
Le quartier Port-Marianne, nouveau centre urbain est apprécié pour sa qualité de vie et avec de nombreux commerces et services, offres de restaurations, et habitation à proximité tout en étant très bien desservi par les transport en commun avec la ligne 1 et 3 et les arrêts Port Marianne et Pablo Picasso.
Port-Marianne, nouveau centre urbain est situé à proximité du centre-ville.
Véritable poumon vert, Port-Marianne surprend par sa capacité à associer ville et nature, qualité de vie et centralité.
Un quartier animé, intégrant la mixité des usages : habitation, bureaux et commerces (magasins de proximité, restaurants, boulangeries, écoles, coworking)
Port-Marianne s'impose comme une zone dynamique économiquement et architecturalement, notamment avec son avenue « signature » (Jean Nouvel, Philippe Starck, Jean-Michel Wilmotte ou Jean-Baptiste Miralles). Les starts-up veulent s'y installer pour la qualité des immeubles et la proximité du centre-ville.
ACCESSIBILITÉS :
Gare TGV Sud de France à 6 minutes
Aéroport Montpellier Méditerranée à 10 minutes
Tramway 3 arrêt « Pablo Picasso » à 3 minutes
Bus n°28
Autoroute A9 à 5 minutes
Circulations douces raccordés aux transports en commun
Services & prestations
Aménagements
-
Accès Pers. Mobilité Réduite
-
Aménagement des bureaux : Espaces Ouverts
-
Complexe Salle de réunion
-
Espace bien-être : Salle de sport sur l'immeuble LE NUAGE à 100 m
-
Sanitaires : En fonction des lots : privatifs ou communs
Equipements
-
Ascenseurs : 2
-
Climatisation : Réseau urbain
-
Eclairage Bureaux : Luminaires suspendus
Hauteurs
-
Hauteur sous poutre : 7,75 mètre(s)
-
Hauteur sous-plafond : 3,35 mètre(s)
Prestations de service
-
Parking : En sous-sol, Parking Public La Mantilla à 300 m
-
Sécurité : Contrôle d'accès, Contrôle d'accès
Extérieurs
-
Terrasses - jardins : Terrasses en R+1 et Balcons en R+2/R+3/R+4
Type / Etat du bâtiment
-
Etat de l'immeuble : Neuf
Informations complémentaires
-
Double hauteur sur une partie de chaque lots, Rooftop
-
Cœur d'îlot végétalisé, Locaux commerciaux livrés brut de béton, fluides en attente et avec façade posée
-
Local Vélo, Pare soleil










