




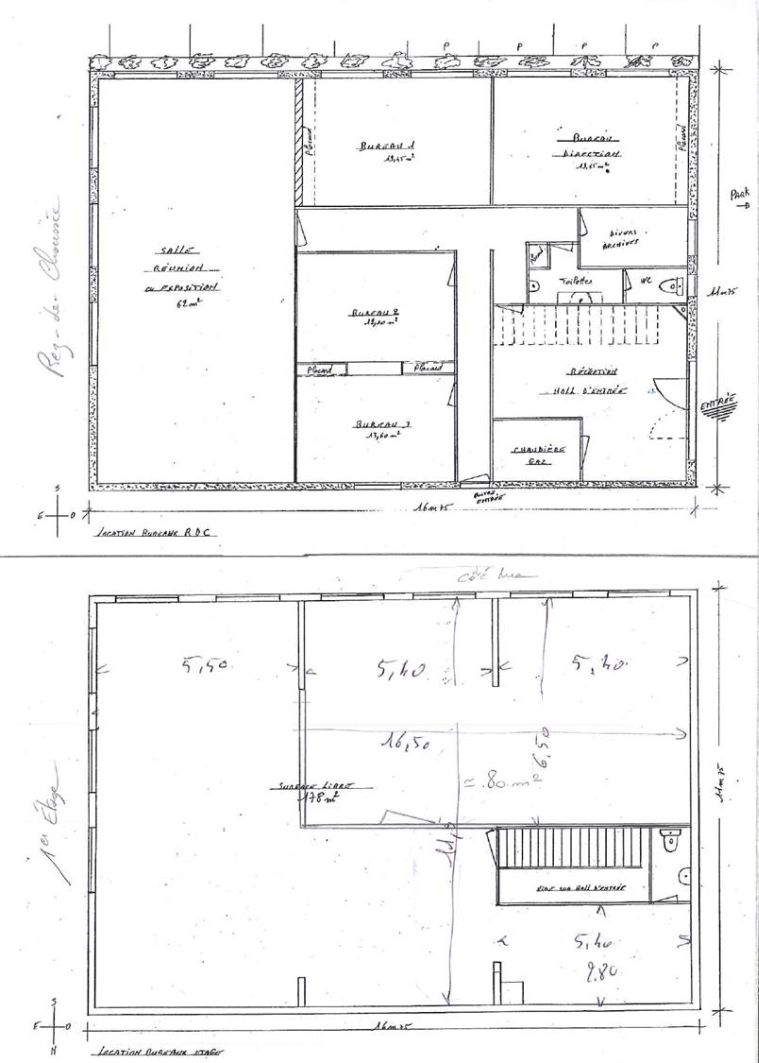
Location Bureau 178 m²
35650 Le Rheu
178 m²
Divisible dès 38 m²
95 €
HT/HC/m²/an
Disponibilité : Immédiate

Geoffrey BELFORT
Description
LOCATION DE BUREAUX – LE RHEU – ZONE D’ACTIVITÉ DU CHÊNE VERT
Découvrez la location de bureaux à Le Rheu, au sein de la zone d'activité du Chêne Vert, un secteur attractif de Rennes Métropole. Ces espaces de bureaux divisibles sont parfaitement adaptés aux entreprises à la recherche de bureaux à louer à Rennes Ouest, dans un environnement verdoyant et accessible depuis la RN24.
Ces locaux lumineux, récemment rénovés, offrent des espaces ouverts modulables grâce à des cloisons vitrées.
Les grandes fenêtres, changées récemment, assurent un confort thermique optimal et une excellente luminosité.
Atouts du site :
Stationnement libre sur place
Environnement paysager et calme
Proximité immédiate des grands axes RennesLorient
Le Rheu, commune dynamique et bien connectée, séduit par sa qualité de vie et son tissu économique local diversifié.
Services & prestations
Aménagements
-
Aménagement des bureaux : Cloisonnés 2 grands bureaux
-
Sanitaires : Parties communes
Equipements
-
Câblage informatique
-
Fenêtres : Double vitrage neuf
-
Sol bureaux : Dls.thermoplastiques
Prestations de service
-
Parking : Libres dans la cour
Type / Etat du bâtiment
-
Immeuble indépendant










