




Location Bureau 2 482 m²
35000 Rennes
2 482 m²
Divisible dès 826 m²
187 €
HT/HC/m²/an
Disponibilité : 01/05/2026

Geoffroy JOSSEAUME
Description
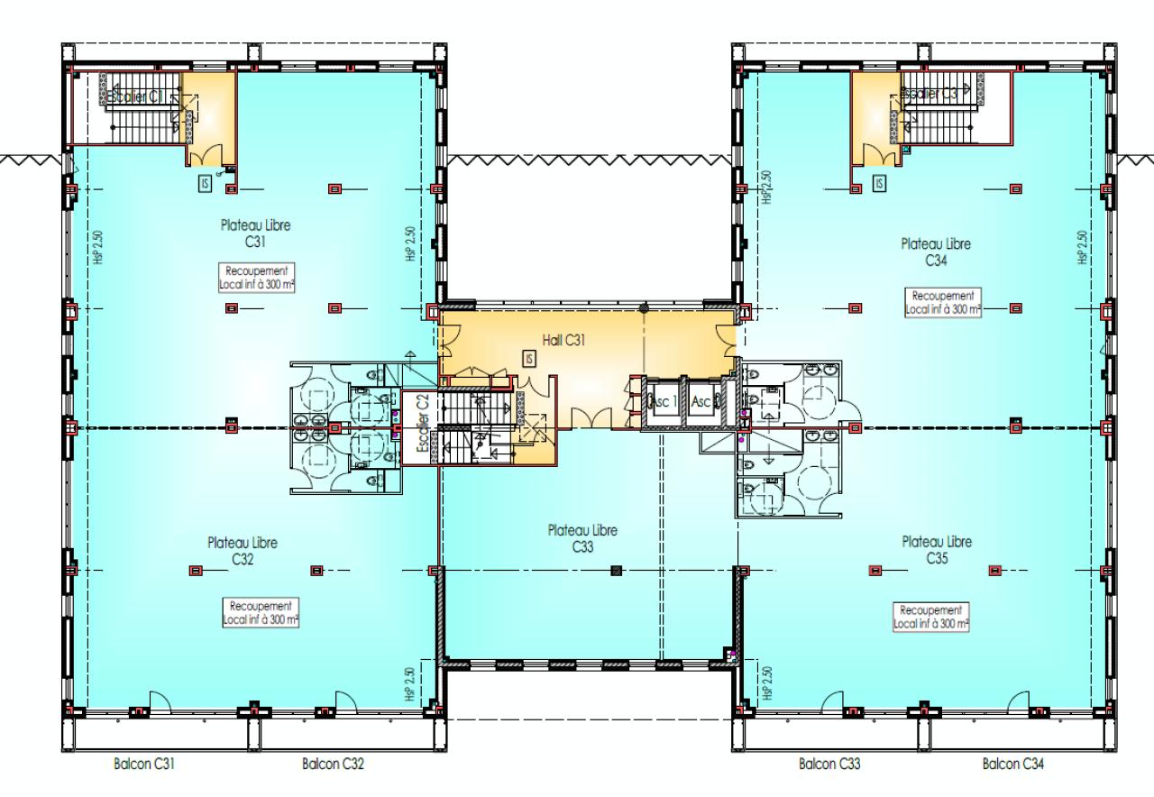
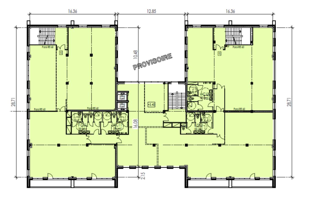
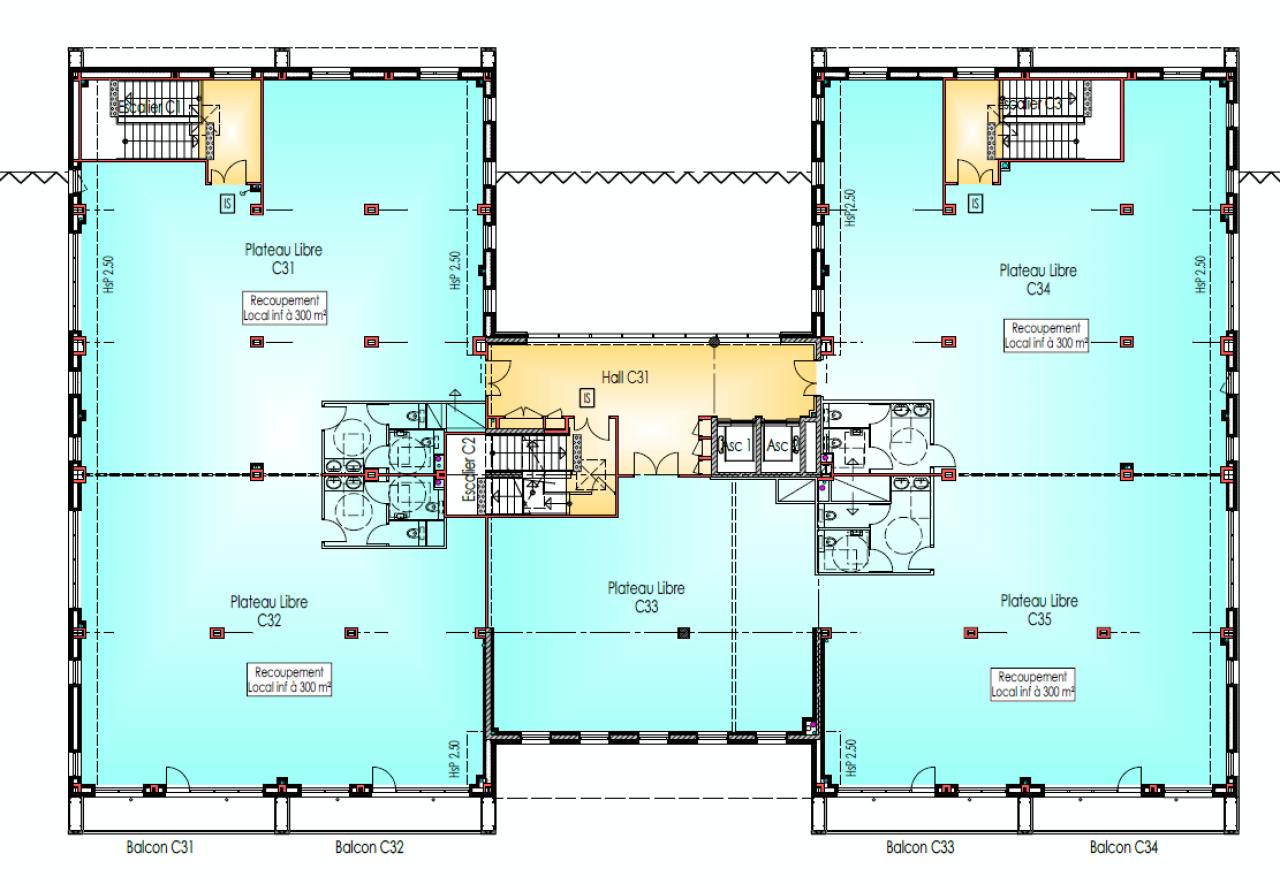
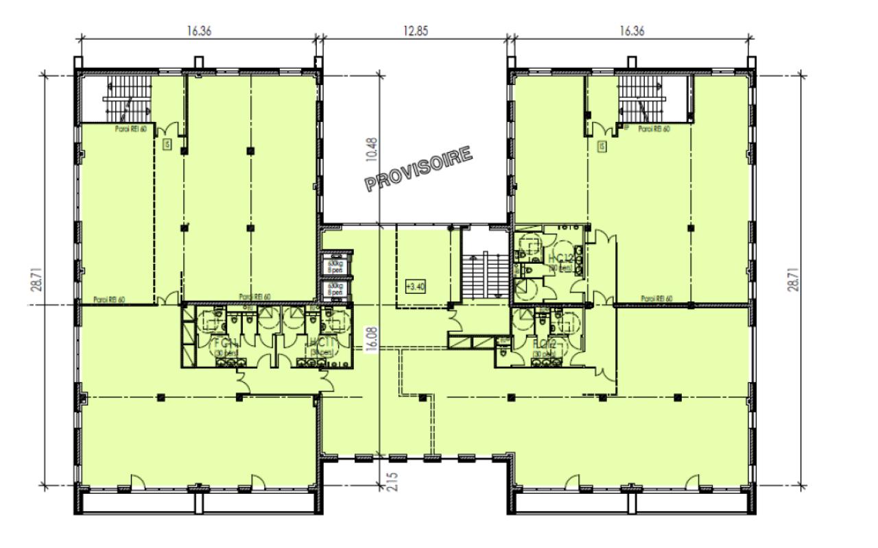
BUREAUX À LOUER - RENNES OUEST
BNP Paribas Real Estate vous propose à la location un ensemble immobilier neuf composé de deux bâtiments de bureaux totalisant 3085 m² divisibles à partir de 734m².
La localisation géographique du site est idéale car les bureaux se situent sur l'axe Rennes - Lorient et à toute proximité de la rocade.
Les bureaux seront spacieux, lumineux avec une belle hauteur sous plafond.
154 places de parkings en extérieur et en sous-sol complètent ce bien.
Idéalement située en bordure de l'axe Rennes-Lorient (RN24), la ZI Ouest est un secteur mixte regroupant bureaux de tous standings et locaux d'activités. La proximité immédiate de la rocade, de la route de Lorient et du centre-ville sont des atouts importants de la ZI Ouest : de nombreux restaurants, hôtels et services sont présents dans la zone.
Services & prestations
Aménagements
-
Accès Pers. Mobilité Réduite
-
Aménagement des bureaux : Aménagés non cloisonnés
-
Hall d'accueil
Equipements
-
Ascenseurs
-
Câblage informatique
-
Distribution chauffage : Réversible
-
Douche
-
Eclairage Bureaux : Luminaires encastrés LED
-
Faux plafond : Dal. fibres minéral. 60x60
-
Plinthes techniques périphériques : 3 PC par poste de travail
-
Sol bureaux : Carrelage , dalles PVC
-
Source chauffage : Electrique et rafraichissement 3 tubes de type Thermodynamique
-
Type de chauffage : Ventilation mécanique
Prestations de service
-
Capacité de restauration : Plusieurs restaurants à proximité immédiate
-
Sécurité : Contrôle d'accès alarme et détection incendie
Normes, Certifications et Labels
-
Catégorie ERP : 5 catégorie W ; <200 personnes au RDC ; <100personnes au 1er étage
-
Certification : Autre certification
Type / Etat du bâtiment
-
Etat de l'immeuble : Neuf
-
Etat du terrain : Goudronné
-
Immeuble indépendant
Informations complémentaires
-
Panneau photovoltaïque sur toit
-
Pôle commerciale à proximité










