




Location Bureau 399 m²
35000 Rennes
399 m²
137 €
HT/HC/m²/an
Disponibilité : Immédiate

Geoffroy JOSSEAUME
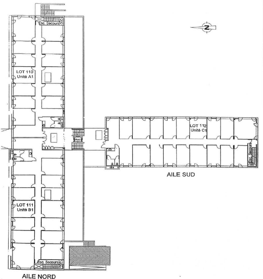
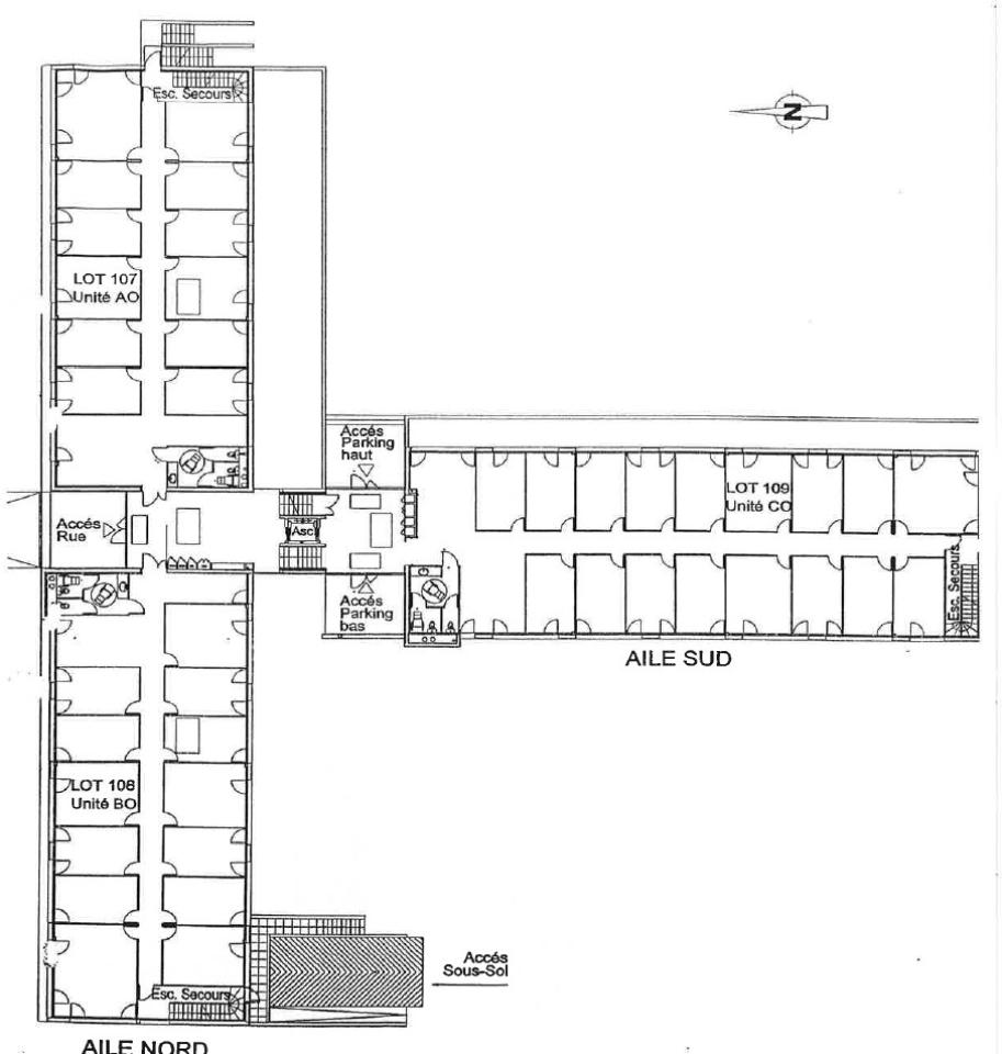
Description
Bureaux opérationnels en RDC à louer – Rennes Pôle tertiaire
Situés dans un important pôle tertiaire rennais, ces bureaux à louer se trouvent en RDC, avec un accès PMR possible via les parkings. Les locaux sont cloisonnés, climatisés et lumineux.
Le plateau comprend :
Une Salle De Réunion
Une Kitchenette
Des Sanitaires Privatifs.
Des parkings extérieurs et en sous-sol sont inclus dans le loyer.
Le secteur bénéficie d'une bonne desserte en transports et d'un environnement tertiaire structuré. Une surface immédiatement opérationnelle, idéale pour une entreprise recherchant des bureaux fonctionnels à Rennes.
Contactez nous pour organiser une visite et découvrir rapidement ce bien disponible.
Services & prestations
Equipements
-
Climatisation : Réversible










