




Location Bureau 5 445 m²
35000 Rennes
5 445 m²
Divisible dès 301 m²
à partir de 186 €
HT/HC/m²/an
Disponibilité : Immédiate

Kevin LEVAIRE
Description
SAINT JACQUES DE LA LANDE - LA COURROUZE
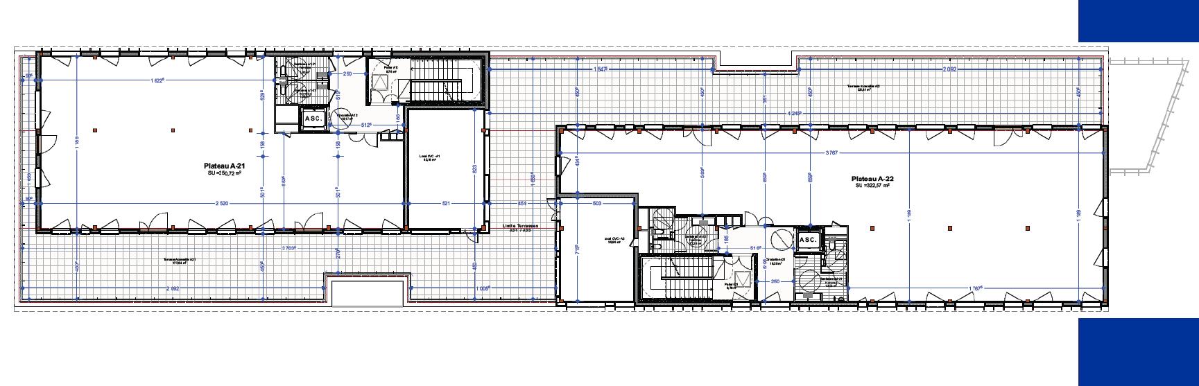
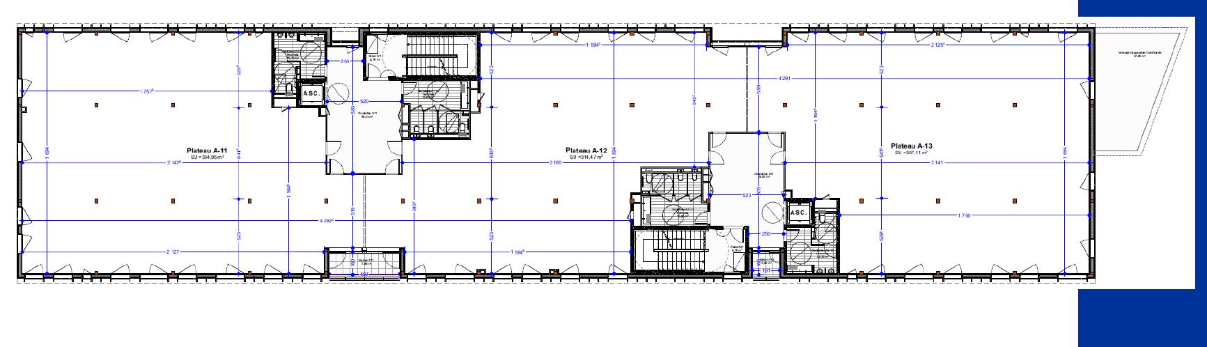
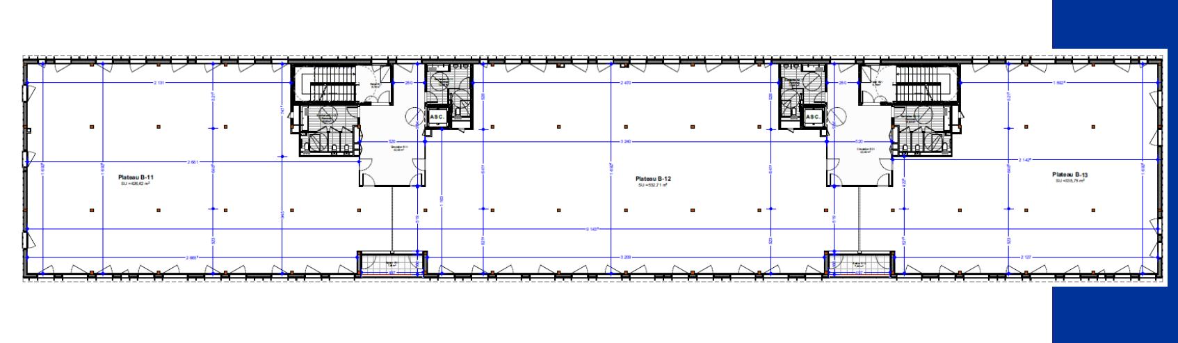
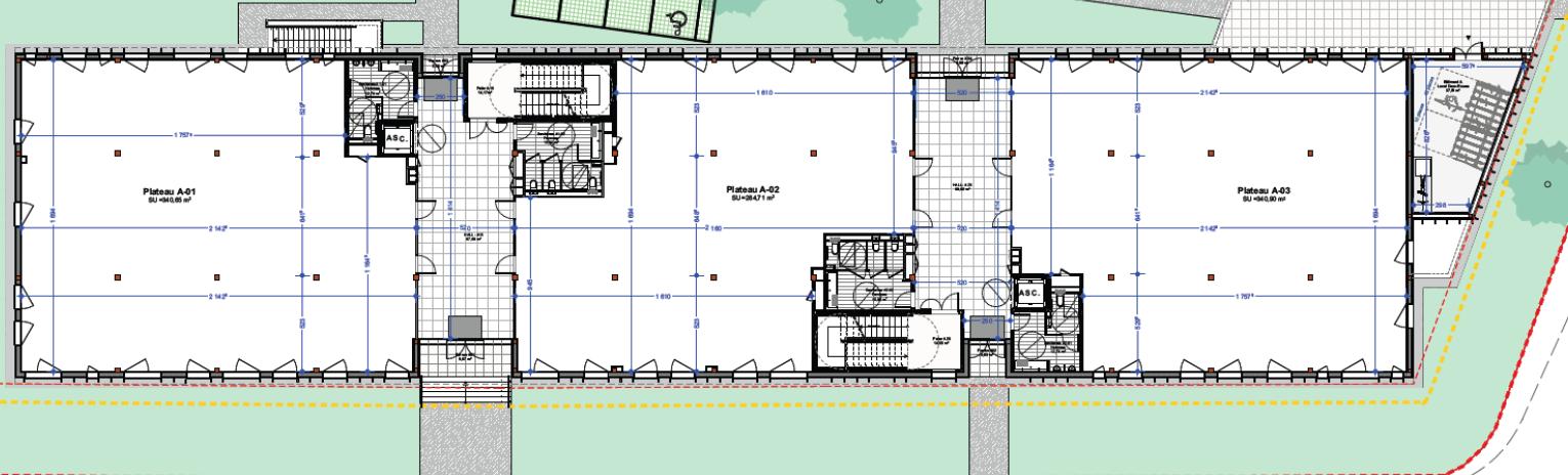
Découvrez l'immeuble "Bois Harel", ensemble immobilier de deux immeubles de bureaux disponibles à la location, sur le secteur, La Courrouze, à Saint Jacques de La Lande, divisibles à partir 187m².
La qualité architecturale de l'immeuble offre des façades bois, et propose de grandes terrasses et balcon, offrant un cadre agréable aux collaborateurs.
Les plateaux sont livrés aménagées non cloisonnées, avec plancher technique.
Le site dispose d'un bon ratio de parking, avec des stationnements extérieurs et en sous-sol.
Saint Jacques de la Lande est située au sud-ouest de Rennes, à moins de 5 km de la rocade Sud.
L'aéroport, de nombreuses lignes de bus et la future ligne de métro (ligne B) au Nord de la commune, sur le site de la Courrouze, en font une ville parfaitement desservie et recherchée.
Services & prestations
Aménagements
-
Accueil
-
Accès Pers. Mobilité Réduite
-
Aménagement des bureaux : Espaces Ouverts Aménagés non cloisonnés
-
Hall d'accueil
-
Sanitaires : Parties communes
Equipements
-
Ascenseurs
-
Charge au sol Etage : 350,00 kg/m²
-
Eclairage Bureaux : Luminaires encastrés
-
Faux plafond : Dal. fibres minéral.
-
Faux plancher
-
Sol bureaux : Moquette
-
Source chauffage : Pompe à chaleur
-
Type de chauffage : Individuel
Hauteurs
-
Hauteur sous-plafond : 2,70 mètre(s)
Prestations de service
-
Parking : 170 places
-
Sécurité : Contrôle d'accès
Extérieurs
-
Terrasses - jardins
Normes, Certifications et Labels
-
Catégorie ERP : 5 TYPE W
Type / Etat du bâtiment
-
Etat de l'immeuble : Neuf
-
Etat des locaux : Neuf
-
Immeuble indépendant
Informations complémentaires
-
Plancher technique, Rafraichissement par pompe à chaleur










