




Location Bureau 801 m²
35000 Rennes
801 m²
Divisible dès 264 m²
à partir de 130 €
HT/HC/m²/an
Disponibilité : Immédiate

Geoffroy JOSSEAUME
Description
RENNES - PARC BEAUREGARD
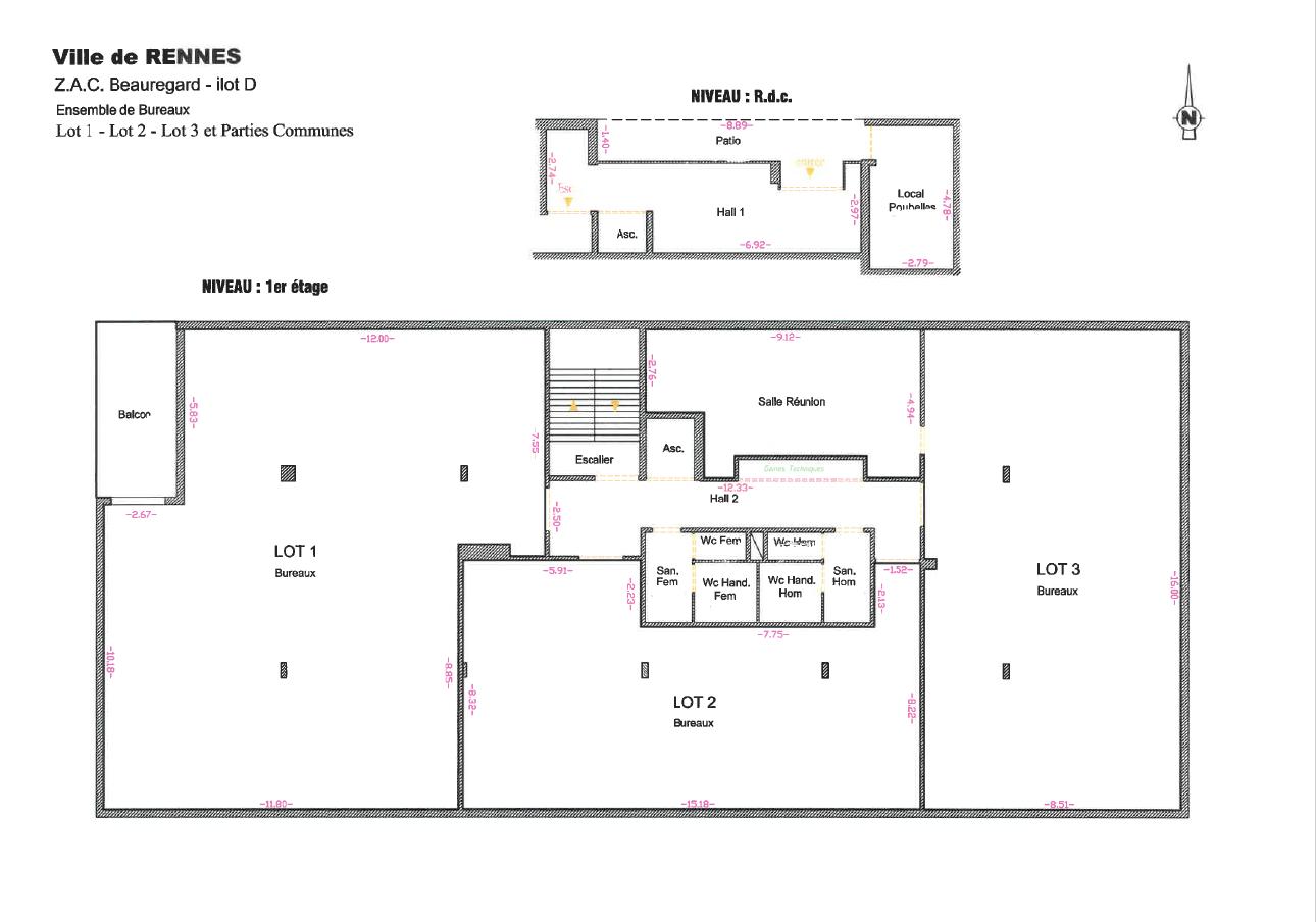
BNP PARIBAS REAL ESTATE vous propose plusieurs lots de bureaux à la vente et à la location dans un immeuble récent, au 1er et 2e étage, situé au Nord de Rennes et à proximité de la rocade.
Les plateaux offrent des espaces lumineux et modulables :
- Au R+1, une configuration plus cloisonnée, composée de grandes salles prêtes à l'emploi
- Au R+2, un grand open space facilement cloisonnable, occupant l'intégralité du niveau
Les bureaux sont câblés, fibrés, en bon état général.
14 emplacements de stationnement viennent compléter cette offre.
Un emplacement stratégique :
À proximité de la Préfecture et de la rocade nord, des centres commerciaux grand Quartier et LECLERC St Grégoire, crèche, hôtels et restaurations.
Ce quartier dynamique offre par ailleurs d'être très bien desservi des lignes de bus, et de la proximité du métro à VILLEJEAN.
Environnement mixte (tertiaire, commerces et habitations)
Services & prestations
Aménagements
-
Aménagement des bureaux : Cloisonnés/Ouverts selon cellules
-
Complexe Salle de réunion : CCI à proximité
-
Sanitaires : Privatif(s)
Equipements
-
Câblage informatique
-
Eclairage Bureaux : Luminaires encastrés
-
Plinthes techniques périphériques : RJ45
-
Sol bureaux : Moquette
-
Type de chauffage : Collectif au gaz
Hauteurs
-
Hauteur sous-plafond : 3,00 mètre(s)
Prestations de service
-
Fitness : A proximité
-
Restauration : Sur la place
Extérieurs
-
Aire de livraison
-
Trame de façade : Diff selon les cellules
Informations complémentaires
-
4 bureaux fermés
-
Salle de réunion










