




Location Bureau 326 m²
35760 Saint-Grégoire
326 m²
123 €
HT/HC/m²/an
Disponibilité : Immédiate

Geoffrey BELFORT
Description
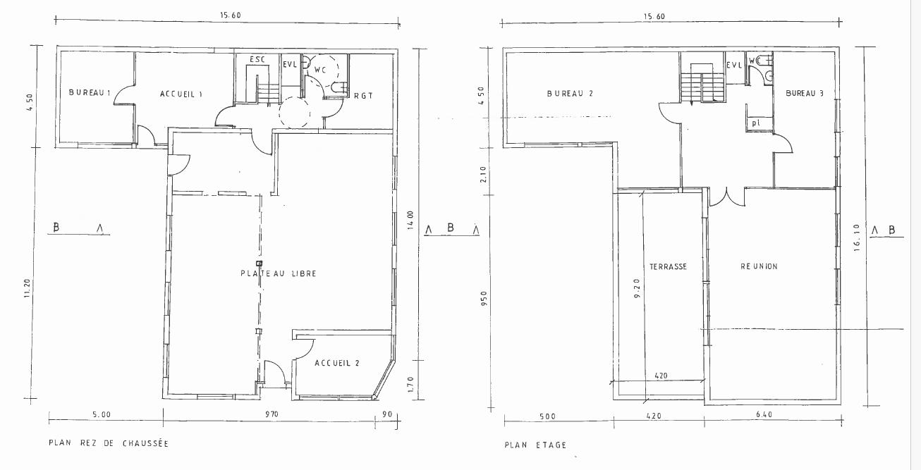
BUREAUX A LOUER - Le Montrachet - SAINT GREGOIRE
Le Ponthay - ZI Brocéliande
Au nord de Rennes, au coeur de la commune de Saint Grégoire, à 15 minutes du centre-ville, a louer bâtiment de bureaux indépendant sein d'un secteur tertiaire et d'activité dynamique et reconnu.
En R+1 avec une belle terrasse de 39 m², belles prestations et services à proximité immédiate.
Parkings privatifs. Rocade nord à 1km.
Au nord de Rennes, au coeur de la commune de Saint Grégoire, à 15 minutes du centre-ville, a vendre bâtiment de bureaux indépendant sein d'un secteur tertiaire et d'activité dynamique et reconnu.
En R+1 avec une belle terrasse, belles prestations et services à proximité immédiate.
Parkings privatifs. Rocade nord à 1km.
Services & prestations
Aménagements
-
Accès Pers. Mobilité Réduite
-
Aménagement des bureaux : Cloisonnés/Ouverts
-
Sanitaires : Privatif(s)
Equipements
-
Câblage informatique
-
Eclairage Bureaux : Luminaires encastrés
Prestations de service
-
Restauration : A proximité
Extérieurs
-
Terrasses - jardins
Type / Etat du bâtiment
-
Etat de l'immeuble : Seconde main
-
Immeuble indépendant
-
Type d'immeuble : Centre d'Affaires










