




Location Bureau 554 m²
44200 Nantes
554 m²
220 €
HT/HC/m²/an
Disponibilité : 01/07/2026

Anne-Charlotte ZABEL
Description
ILE DE NANTES - BUREAUX A LOUER EN RDC
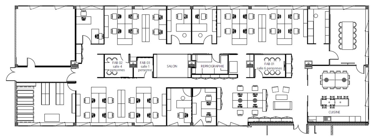
BNP PARIBAS REAL ESTATE vous propose à la location une surface de bureaux de 554 m² en très bon état, ayant fait l'objet d'un aménagement récent.
La surface est composée d'open-spaces, de salles de réunion, et de bureaux cloisonnés. Un bel espace Cuisine / détente est également mis à disposition des utilisateurs.
D'ici à fin 2027, l'immeuble fera l'objet d'une rénovation importante :
remplacement à neuf du système de climatisation
mise en place d'une GTB
rénovation des parties communes : hall d'entrée, sanitaires, zones de circulation, cages d'escaliers.
Très bien placé dans un quartier mixte habitation / tertiaire, dynamique et commerçant, l'immeuble INSULA est facilement accessible par les mobilités douces (nombreuses pistes / voies cyclables) et transports en commun haute fréquence : tramways 2 et 3, busway 4 et 5.
Des places de stationnement sont également proposées sur le Parking des Machines.
Services & prestations
Aménagements
-
Aménagement des bureaux
-
Hall d'accueil : Collectif avec Hôtesse
-
Sanitaires : Parties communes
Equipements
-
Ascenseurs
-
Climatisation
-
Câblage informatique
-
Eclairage Bureaux : Luminaires encastrés
-
Faux plafond : Dal. fibres minéral.
-
Sol bureaux : Moquette
Prestations de service
-
Parking : A 200 m
-
Sécurité : Contrôle d'accès
Extérieurs
-
Linéaire de façade
Type / Etat du bâtiment
-
Etat de l'immeuble : Etat d'usage
-
Etat des locaux : Très bon état
Informations complémentaires
-
Tous commerces et restauration
-
Cour intérieure
-
Café "INSULA CAFE"










