




Location Bureau 551 m²
44200 Nantes
551 m²
Divisible dès 190 m²
à partir de 235 €
HT/HC/m²/an
Disponibilité : Immédiate

Damien ROBERT
Description
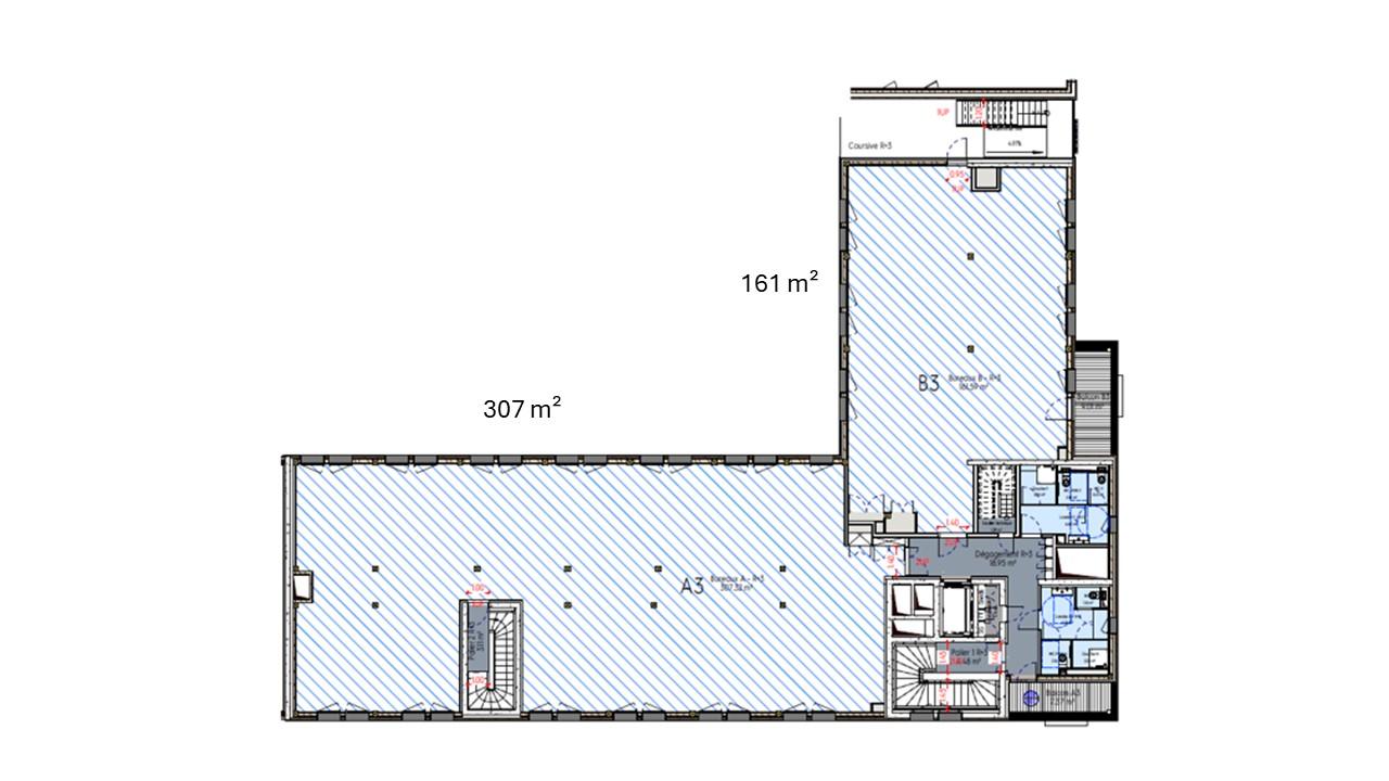
À LOUER - ILE DE NANTES : plateau de bureaux neuf de 551 m² divisibles à partir de 190 m²
BNP PARIBAS REAL ESTATE vous propose à la location dans un immeuble neuf un plateau de bureaux de 551 m² au 3ème étage, divisible à partir de 190 m².
10 places de parking privatives en sous sol.
L'immeuble en construction bois est labellisé BBCA performant / E2 C1.
Pour le confort des utilisateurs, des sanitaires avec douche et vestiaires sont mis à disposition en parties communes. Local vélos / 2 roues également à disposition.
Au coeur du nouveau Quartier République, BE GREEN bénéficie d'un emplacement idéal, proche du futur CHU et des transports en commun Chronobus C5, et des futures lignes de tram 5 et 6 + busway ligne 8.
Services & prestations
Aménagements
-
Accès Pers. Mobilité Réduite
-
Effectif théorique : 1p/11 m² SUB
-
Hall d'accueil : En RDC : dédié bureaux
Equipements
-
Ascenseurs
-
Climatisation : Air rafraîchi système eau glacée avec récupération d'énergie
-
Faux plafond
-
Sol bureaux : Moquette
-
Type de chauffage : Urbain
Hauteurs
-
Hauteur sous-plafond : 2,70 mètre(s)
Prestations de service
-
Sécurité : Contrôle d'accès badge - vidéophone
Normes, Certifications et Labels
-
Label cible : BBCA performant
Type / Etat du bâtiment
-
Etat des locaux : Neuf
Informations complémentaires
-
Immeuble construction bois, Profondeur : 12 m environ
-
BBCA performant / E2 C1, Balcons privatifs
-
Local vélo sécurisé, Stores extérieurs orientables










