




Location Bureau 400 m²
45770 Saran
400 m²
Loyer sur demande
Disponibilité : 12 mois après accord

Vincent MOREAU
Description
ORLEANS NORD - SARAN - BUREAU A LOUER
BNP PARIBAS REAL ESTATE ORLEANS vous propose des locaux à la location selon votre cahier des charges dans un nouveau programme neuf.
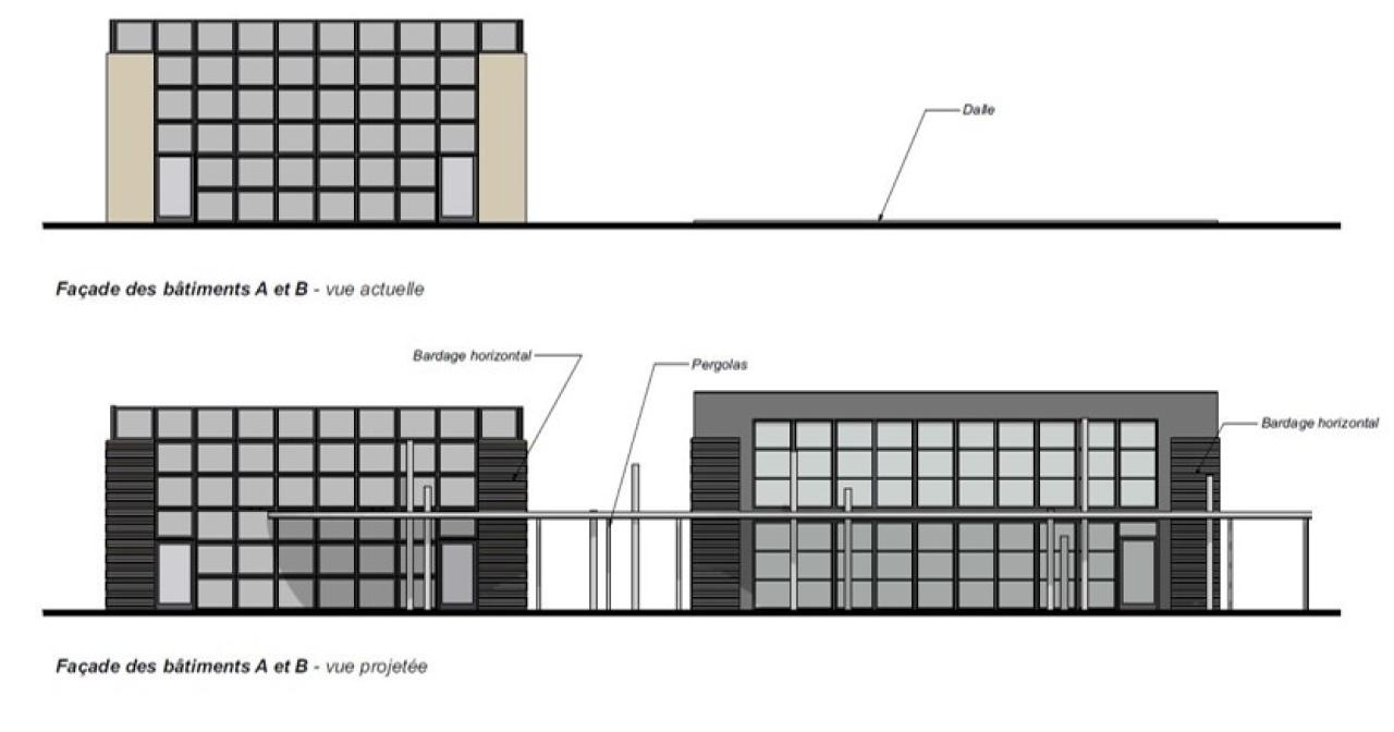
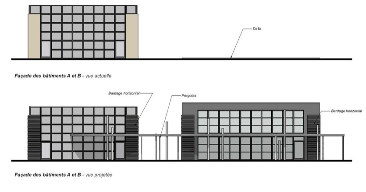
Immeuble de bureaux à construire selon le cahier des charges du preneur.
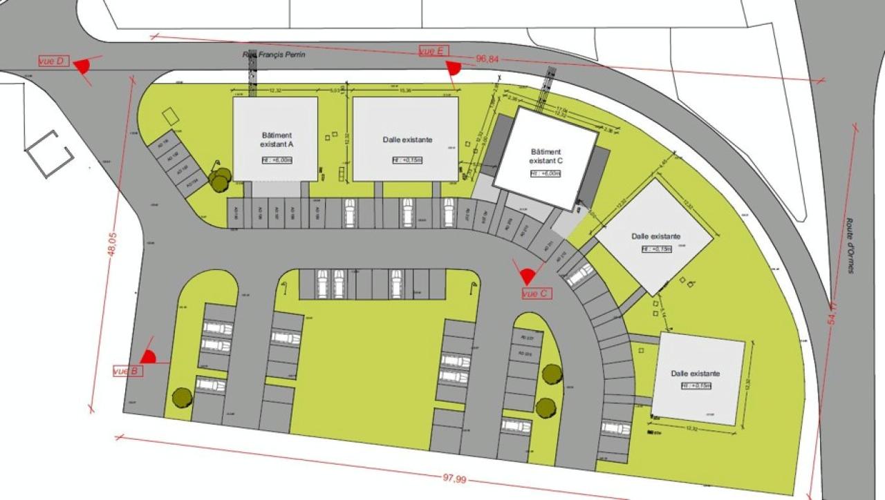
Ensemble de bureaux indépendants, en programme neuf sur une emprise foncière de 5 060 m². Le terrain dispose de 70 places de stationnement. Chaque immeuble sera construit sur deux niveaux et est aménageable selon votre cahier des charges. Il sera adapté aux activités ERP / accueil PMR et répondra aux dernières normes énergétiques et environnementales.
Les surfaces peuvent aller de 200 à 600 m².
N'hésitez pas à nous contacter. Nous pourrons étudier ensemble votre cahier des charges.
Cette solution immobilières représente une occasion unique pour les entreprises souhaitant allier localisation stratégique, confort moderne et bâtiment sur mesure.
Contactez-nous pour concevoir ensemble un projet immobilier qui répond à vos ambitions.
Livraison 12 mois après accord.
Les conditions financières seront définies selon le cahier des charges du preneur.
Services & prestations
Aménagements
-
Accueil
-
Accès Pers. Mobilité Réduite : De plain pied
-
Aménagement des bureaux : Espaces Ouverts
-
Bureaux cloisonnés : Selon cahier des charges
-
Hall d'accueil
-
Sanitaires : Privatif(s) deux doubles
Equipements
-
Climatisation
-
Câblage informatique
-
Eclairage Bureaux : Luminaires encastrés lead
-
Faux plafond
-
Plinthes techniques périphériques
-
Sol bureaux : Moquette/Carrelage
Prestations de service
-
Parking : Nombreux parkings extérieurs
Type / Etat du bâtiment
-
Etat de l'immeuble : Neuf
-
Immeuble indépendant










