




9 Rue des Tarbes
54270 Essey-lès-Nancy
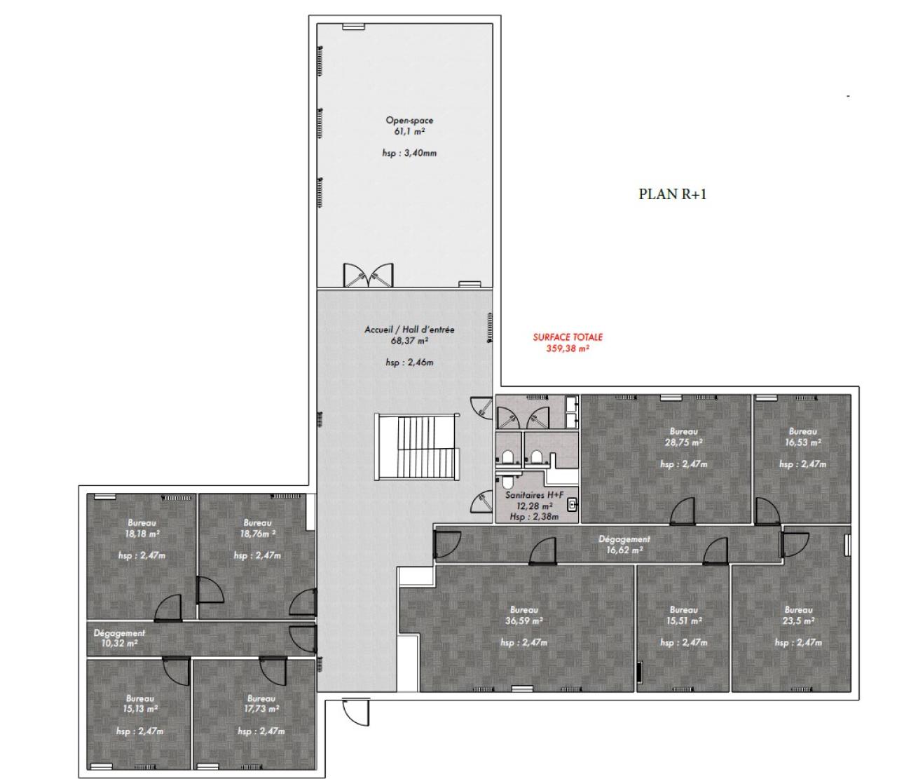
655 m²
90 €
HT/HC/m²/an
Disponibilité : Immédiate

Florine DEVEAUX
Description
A LOUER - BUREAUX - SITE TERTIAIRE INDEPENDANT
ESSEY LES NANCY - Réf OLBBUR2537110
NOUVEAU à NANCY EST, BNP PARIBAS REAL ESTATE vous propose 655 m² de bureaux édifiés sur un site clos et sécurisé, en plein cœur de la ZAC de la PORTE VERTE, à proximité de BRICO DEPOT et de CARREFOUR. Plusieurs espaces de stockage et un grand parking composent également cette offre. Disponible immédiatement à la location, les bureaux sont équipés d'éclairage LEDS, de cloisons modulaires vitrées, de prises RJ 45 et d'une baie de brassage, d'une alarme. Confort thermique assuré par une chaudière gaz et une climatisation.
LOCATION - 655 m² environ- BUREAUX - ZAC PORTE VERTE - ESSEY LES NANCY (54)
Nous vous proposons à la location, ces bureaux d'une surface totale de 655 m² environ
Caractéristiques de l'offre :
Bureaux
Site clos et sécurisé
Grand parking privatif
Garage
Equipements :
Eclairage LED
Cloisons modulables vitrées
Prises RJ 45
Baie de brassage
Alarme
Chaudière gaz
Climatisation
Localisation: Au coeur de la ZAC de la PORTE VERTE, à proximité de BRICO DEPOT et de CARREFOUR. Commodités et transports en commun à proximité immédiate.
Services & prestations
Aménagements
-
Aménagement des bureaux : Espaces Ouverts
-
Sanitaires : Privatif(s) 2 hommes / 1 PMR femme
Equipements
-
Climatisation : Réversible
-
Douche : Possible
-
Eclairage Bureaux : LED
-
Fenêtres : Coulissantes (récentes) / baie vitrée
-
Sol bureaux : Moquette
-
Source chauffage : Gaz
Prestations de service
-
Parking : & garages
-
Sécurité : Alarme
Informations complémentaires
-
Cloisons modulaires vitrées, Stores extérieurs
-
Baie de brassage, Prises RJ, Site clos avec portail automatique
-
Salle de réunion, Stockage










