




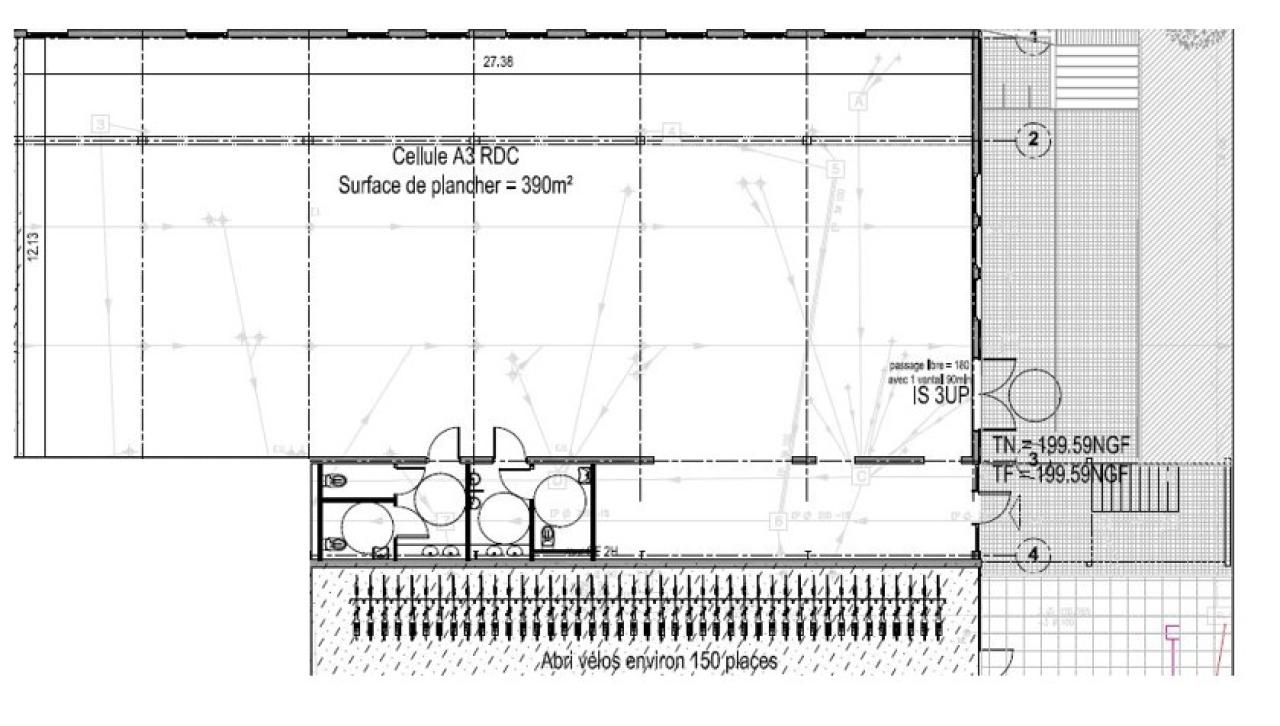
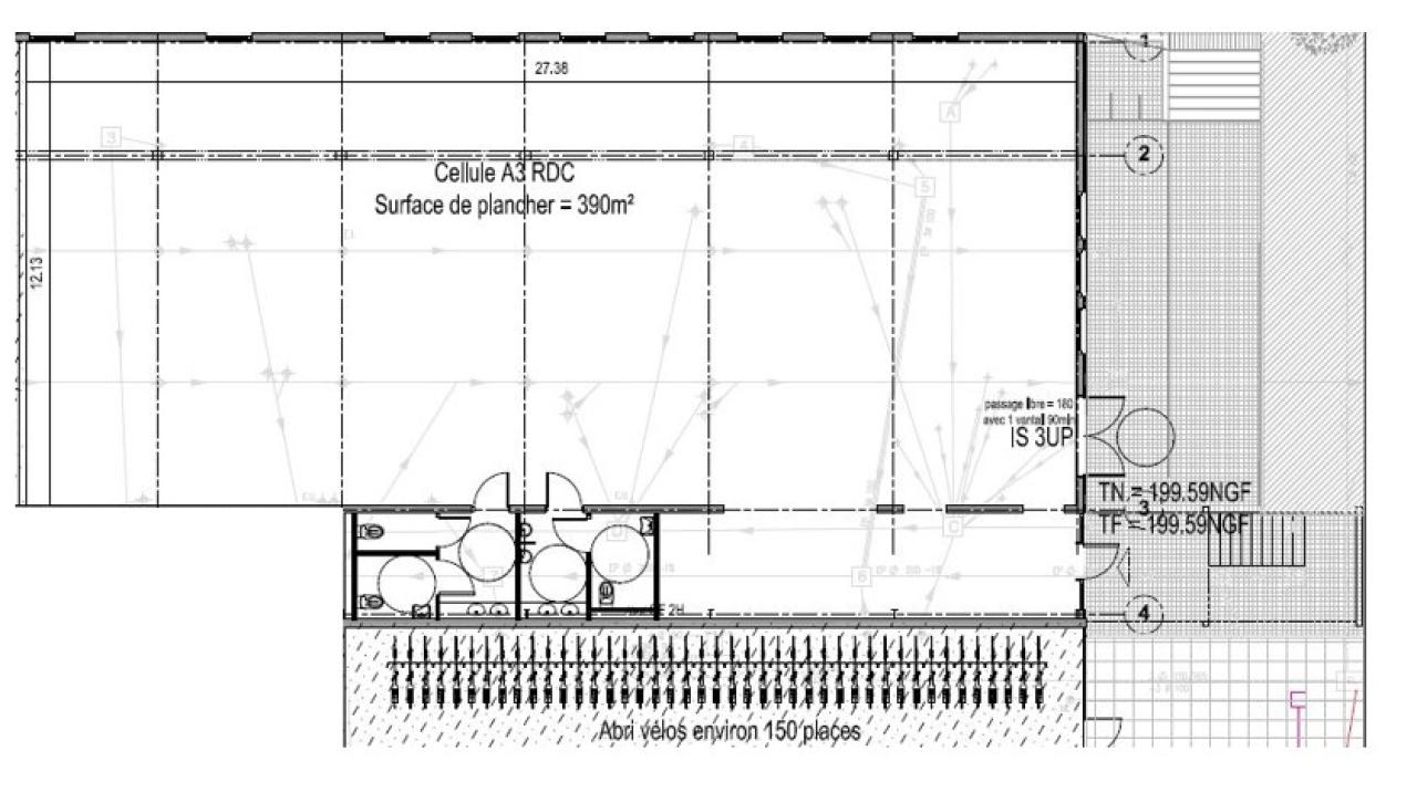
Location Bureau 390 m²
54000 Nancy
390 m²
Loyer sur demande
Disponibilité : Immédiate

Florine DEVEAUX
Description
A LOUER - BUREAUX
RIVES DE MEURTHE NANCY - ref OLBUR2537350
Bnppre vous propose à la location cet espace de bureaux de 390 m² environ aux abords des RIVES DE MEURTHE, avec toutes les commodités à proximité.
BUREAUX - LOCATION - 390 m² environ - RIVES DE MEURTHE - NANCY (54)
Atouts de l'offre :
- Espace de bureaux de 390 m² environ
- Loyer : 60 530,98 HT/HC (parkings inclus)
Localisation :
Les Rives de Meurthe sont emblématiques pour la ville de Nancy situées à l'Est du centre-ville, qui allie charme, modernité et qualité de vie. Ce quartier connaît depuis plusieurs années une transformation majeure, faisant de lui l'un des secteurs les plus sollicité pour l'implantation d'activités tertiaires dans la métropole nancéienne.
Il combine accessibilité, modernité et cadre de vie, attirant entreprises, institutions et porteurs de projets innovants.
Un emplacement stratégique
À moins de 10 min de la gare SNCF de Nancy, offrant des liaisons rapides (Paris, Strasbourg & Luxembourg)
Accès direct au centre-ville par le trolley bus (Ligne 1), bus, pistes cyclables aménagées
Connexion rapide aux grands axes routiers (A31 & A33), facilitant la mobilité régionale
Atouts du quartier
Présences d'établissements d'enseignement supérieur (écoles d'architecture, Université de Lorraine, Pigier, CCI)
Restaurants, espaces de coworking, salles de sport, lieux culturels (l'Autre Canal, cinéma Kinepolis) etc
Environnement verdoyant et apaisant, en bord de Meurthe
Conseiller en Immobilier d'Entreprise, BNP PARIBAS REAL ESTATE ADVISORY vous accompagne dans votre recherche de bureaux, locaux d'activité et entrepôts logistiques en Meurthe-et-Moselle, à la location et à la vente.










