




LE TERTIAL
Rue des Promenades
59110 La Madeleine
1 819 m²
Divisible dès 55 m²
à partir de 200 €
HT/HC/m²/an
Disponibilité : Immédiate

Etienne DARTOIS
Description
LE TERTIAL
LA MADELEINE
Bureaux disponibles à la location
Immeuble emblématique, jonction tertiaire entre La Madeleine et le Vieux Lille, LeTertial continue d'attirer les sociétés en recherche d'un excellent compromis "Positionnement - Loyer"
La Madeleine, commune voisine de Lille, offre une proximité immédiate avec la Métropole Européenne et ses commodités.
Dans ce quartier calme aux nombreux commerces et services de proximité, nous vous proposons des surfaces de bureaux disponibles à la location.
Accessibilités :
- Dessertes routières et autoroutières à proximité immédiate (VRU, A1, A22, A23, A25, A27)
- Accès rapide aux Gares de Lille, Métro et Tramway
- Stations V'Lille "Chaufferie" et "Pompidou" à moins de 300 m
- Arrêts de bus en pied d'immeuble (Lignes : CO3, 14 et 50)
Prestations :
- Immeuble entièrement rénové avec PC (permis de construire) répondant au décret tertiaire
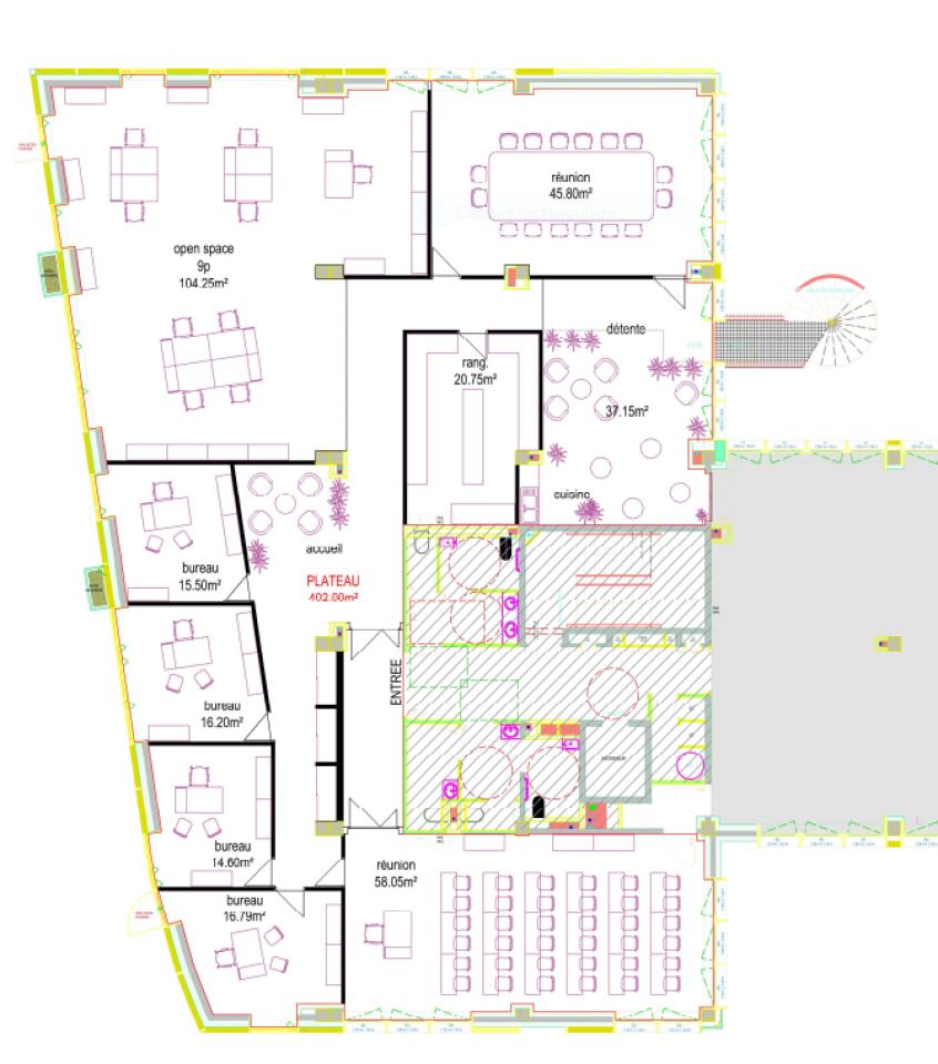
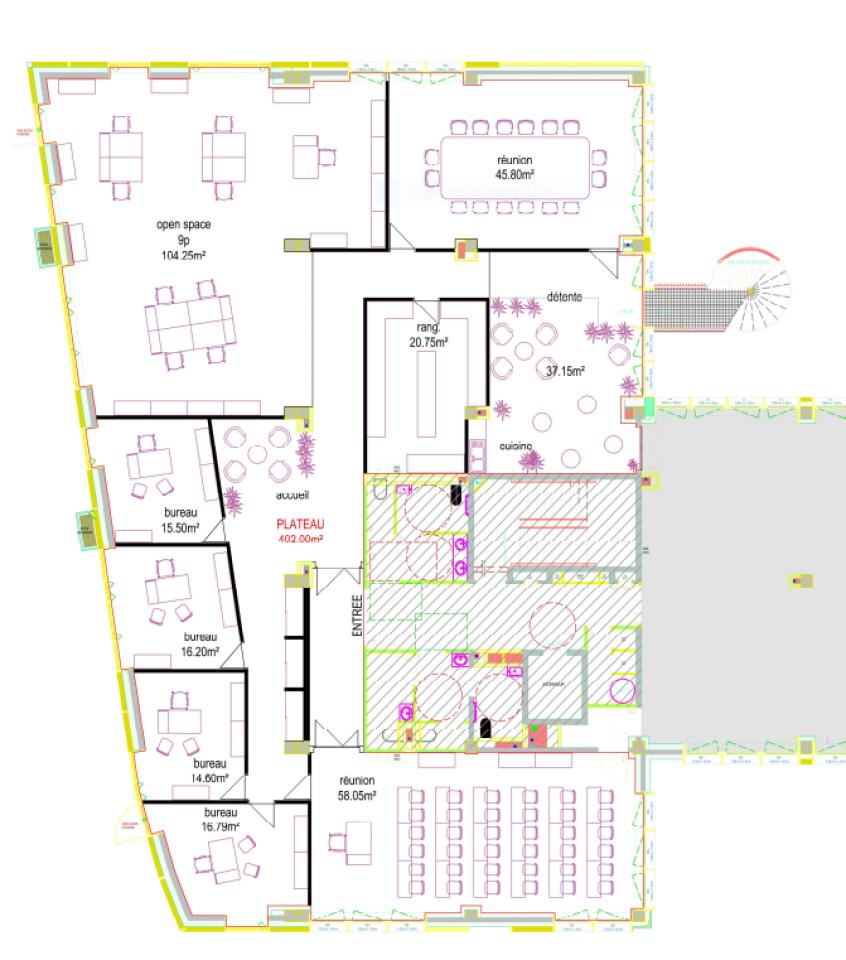
- Plateaux livrés en base paysagère
- Dale de moquette/faux plafond
- Plinthe technique en periphérie
- Luminaire LED
- Climatisation réversible
- Acces PMR
- Ascenseurs
- Surfaces de 560 m² au R+1 et R+2, divisibles en 3 plateaux maximum
- Parking : 1 place/50 m²
Disponibilité : Immédiate
Toutes nos offres sur https://www.bnppre.fr/bureau/nord-59/
Services & prestations
Aménagements
-
Hall d'accueil
Equipements
-
Ascenseurs
-
Type de chauffage : Collectif au gaz
Prestations de service
-
Parking : 122 Places 86 extérieures, 36 intérieures
-
Sécurité
Structure du bâtiment
-
Charpente
Type / Etat du bâtiment
-
Etat des locaux : Très bon état










