




QUAI 22
FLOW
59350 Saint-André-lez-Lille
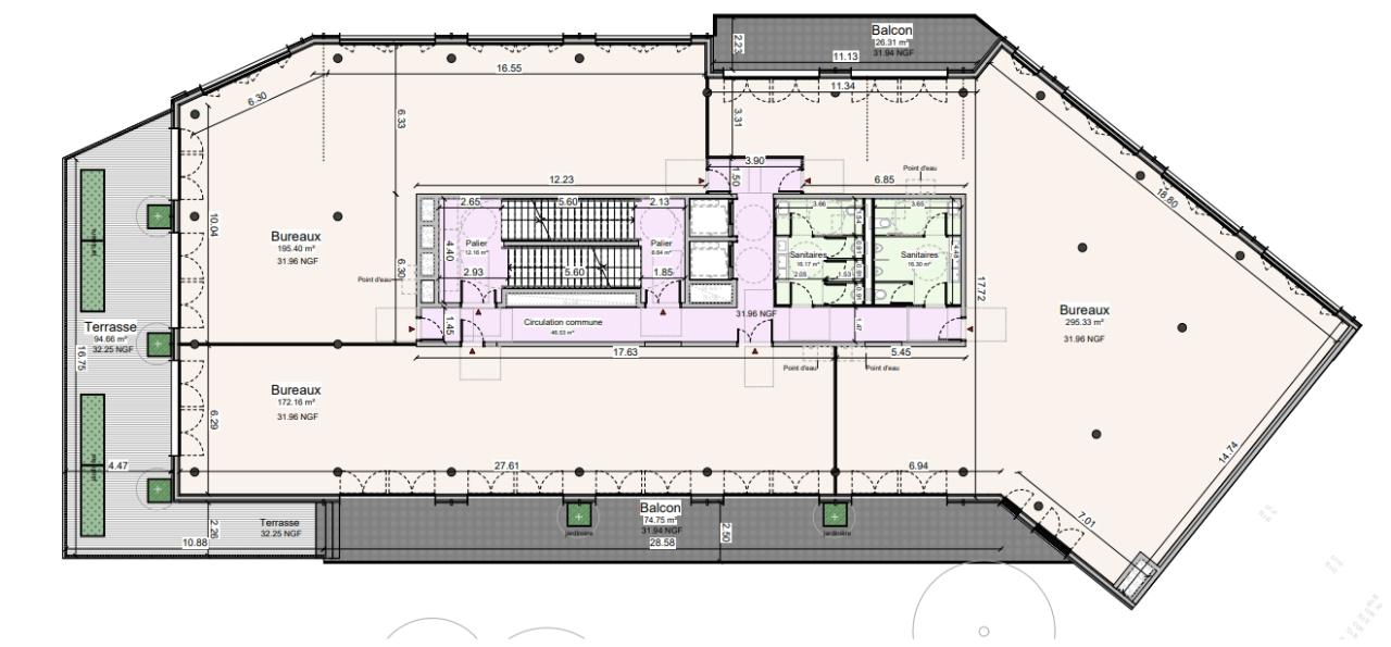
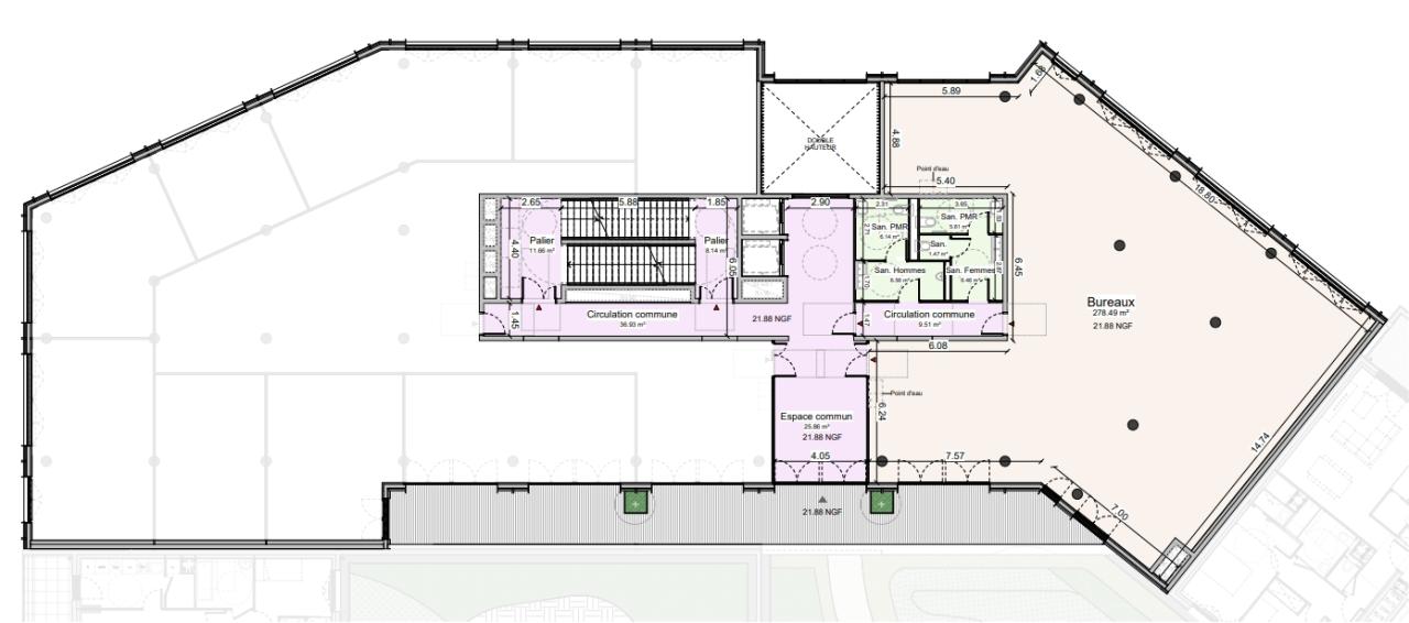
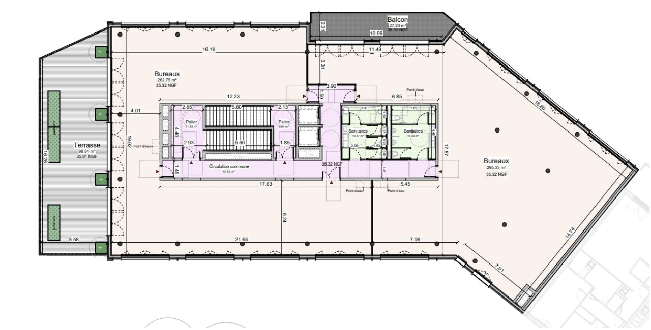
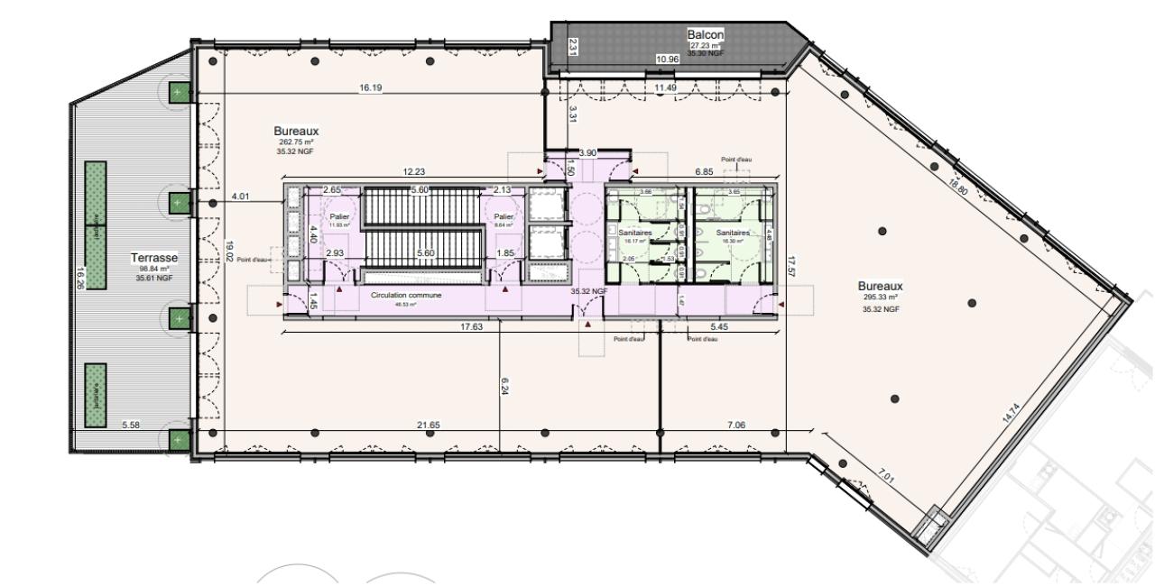
3 777 m²
Divisible dès 281 m²
à partir de 12 327 250 €
HT/HD
Disponibilité : 36 mois après accord

Benjamin GOUSSET
Description
Bureaux à vendre à Saint-André-lez-Lille
FLOW - QUAI 22
Un quartier vibrant aux bords de la Deûle et de ses berges réaménagées.
-700 logements
- 600 salariés
- 20 commerces de proximité et restaurants
- 1 ha de parc public
Quai 22 est un quartier palpitant au bord de la Deûle, entre ville et nature. Grace à une offre habitat - commerce mixte, urbaine et éco-pensée, il s'adresse aux familles, aux visiteurs et aux actifs.
Profitez d'un cadre de travail paisible aux portes de Lille, à seulement 15 minutes à vélo de ses principaux centres d'intérêt.
Labels & Certifications :
PACTE LILLE Bas Carbone
BREEAM
Label "Biodivercity"
HQE
Environnement :
Pièce maîtresse du projet, au pied du parc urbain, avec deux îlots végétalisés.
Lieu mixte : commerces, services, résidence étudiante, 98 appartements et 140 chambres étudiantes.
Parking :
En superstructure programme compact avec belles qualités architecturales jardins sur les toits cultivables.
Intégration dans le paysage urbain une nouvelle skyline pour les bords de Deûle connexion avec les espaces verts environnants.
Calendrier prévisionnel :
Novembre 2024 : PC définitif
Mars 2025 : Lancement AO travaux
Décembre 2025 : Lancement des travaux
Mai 2028 : Livraison des premiers lots
Toutes nos offres de bureaux sur https://www.bnppre.fr/bureau/nord-59/










