




2 Boulevard de Belfort
59000 Lille
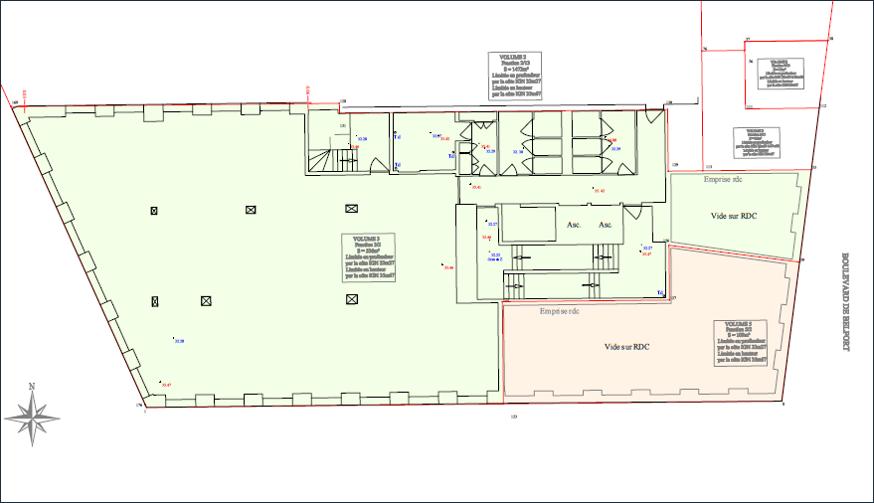
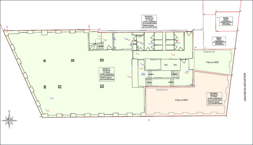
2 018 m²
Divisible dès 111 m²
à partir de 170 €
HT/HC/m²/an
Disponibilité : Immédiate

Annabelle KOZIELSKI
Description
IMMEUBLE TRIPOLIS A LOUER AU COEUR DU QUARTIER D'EURALILLE
Nous vous proposons ces surfaces de bureaux disponibles immédiatement à la location.
L’Immeuble TRIPOLIS est situé dans le prolongement du quartier d’EURALILLE II, dans le nouveau quartier de la Porte de Valenciennes.
Concernant la localisation, ce nouveau secteur de 22 hectares est aménagé avec une double ambition : poursuivre la dynamique du quartier d'affaires Euralille 1 et créer un lieu de vie habité.
Le développement de ce secteur offre aux utilisateurs, en complément des nombreux services, une accessibilité de premier ordre via les axes routiers et les transports.
Prestations :
CTA double flux
Chauffage par plafond rayonnant avec eau chaude
Châssis avec ouvrants de confort
Sol souple
Nourrices courant fort en faux-plafond
Accessibilité :
Gare « Lille Flandres » à 4 min en métro (3 stations)
TGV « Lille Europe » à 6 min en métro (4 stations)
Station « Porte de Valenciennes » en pied d'immeuble (300 mètres / 2 min à pied)
Accès routiers et autoroutiers rapides (VRU, A1, A22, A23, A25, A27)
Arrêt de bus « Porte De Valenciennes » en pied d'immeuble (Ligne 52)
Station V'Lille « Porte de Valenciennes » en pied d'immeuble
Aéroport « Lille-Lesquin » à 13 min en voiture
Vous recherchez des unités de bureaux, des espaces de travail collaboratifs ou des locaux professionnels à louer ou à vendre dans la métropole lilloise/ Lille ? Nos solutions de location et de vente de plateaux modernes et fonctionnels dans le Nord-Pas-de-Calais/ Nord répondent à vos exigences. Découvrez nos offres et trouvez rapidement le site d'activité idéal pour votre équipe à Lille.
Services & prestations
Equipements
-
Climatisation : Double flux
-
Faux plafond
-
Sol bureaux : Souple
-
Source chauffage : Rayonnants avec eau chaude
Type / Etat du bâtiment
-
Etat de l'immeuble : Neuf
-
Etat des locaux : Neuf
-
Immeuble indépendant
Informations complémentaires
-
Châssis avec ouvrants de confort, Courant fort










