




97 Rue Saint Hubert
59800 Lille
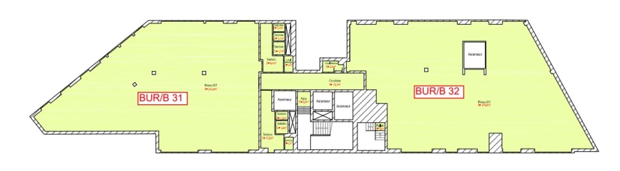
276 m²
250 €
HT/HC/m²/an
Disponibilité : Immédiate

Benjamin GOUSSET
Description
Espaces de bureaux disponibles à la location en face d'Euralille.
Avec une emprise de près de 12 000 m², abritant bureaux, commerces et restaurants, ainsi que l'hôtel Mama Shelter. Le SWAM a donné le coup
d'envoi du grand projet urbain Euralille 3000. Swam, c’est l'un des deniers programmes neufs livré à Euralille. Un lieu unique au cœur de la ville où vont se rassembler les Lillois d’un jour et de toujours, pour une expérience inédite autour du shopping, de la gastronomie, du business et du tourisme.
Face au Centre Commercial Euralille, au sein de l'immeuble SWAM, nous vous proposons ces surfaces de bureaux disponibles à la location.
L'opération obtiendra la certification BREEAM "BREEAM INTERNATIONAL NEW CONSTRUCTION 2013" au niveau VERY GOOD.
L'objectif de performance énergétique retenu est le suivant : respect de la RT 2012 - 20 % (exigence BREEAM).
Immeuble neuf récemment livré (travaux finis en 2020).
Site des Anciennes Casernes Souham, idéalement situé, en bordure du Parc Matisse, et à proximité immédiate des 2 gares TGV.
Accessibilité :
Gares « Lille Europe » et « Lille Flandres » en pied d'immeuble
Stations de tramway et de métro « Lille Europe » et « Lille Flandres » en pied d'immeuble
Accès routiers à proximité immédiate (VRU, A1, A22, A23, A25, A27)
Arrêt de bus « Gare Lille Flandres » (place des Buisses) en pied d'immeuble (Lignes : L90, L91, L91E, 9, 14, 50, 51, 86, 88)
Station V'Lille « Euralille » en pied d'immeuble
Aéroport « Lille-Lesquin » à 15 minutes en voiture
Prestations :
Lots Bureaux Bâtiments A & B : Possibilité de conserver les aménagements des locataires sortants.
Lots Bureaux Promenade : actuellement brut de béton (aménagement des cellules en bureaux : sols/murs/plafonds/sanitaires/CVC).
Renouvellement d'air neuf par ventilation simple
Chauffage et raffraichissement par détente directe type débit réfrigérent variable (VRV) à récupération d'énergie
Faux-plancher technique
Accès PMR & monte-charges
Halls d'accueil & ascenseurs (bâtiments A & B)
Accès par interphone et lecteur de badge (halls bâtiments A & B)
Places électriques bornes rapides (11 kW)
Parkings :
12 places de parkings intérieures
Places électriques bornes rapides (11 kW)
Toutes nos offres sur https://www.bnppre.fr/bureau/nord-59/
Services & prestations
Equipements
-
Ascenseurs
-
Faux plancher
Prestations de service
-
Sécurité : Contrôle d'accès Accès par interphone et lecteur de badge
Normes, Certifications et Labels
-
Catégorie ERP : 5
Type / Etat du bâtiment
-
Etat de l'immeuble : Etat d'usage
-
Etat des locaux : Neuf
Informations complémentaires
-
Renouvellement d'air neuf par ventilation simple
-
Chauffage et raffraichissement par détente directe type débit réfrigérent variable (VRV) à récupération d'énergie










