




40 Rue Horace
59650 Villeneuve-d'Ascq
730 m²
160 €
HT/HC/m²/an
Disponibilité : Immédiate

Etienne DARTOIS
Description
Espaces de bureaux à louer au Parc du Grand Carré - La Haute Borne à Villeneuve d'Ascq
le parc Scientifique Européen de la Haute Borne est devenu le deuxième parc tertiaire le plus important de la métropole après Euralille. Il est reconnu comme un pôle d'excellence, axé sur la recherche scientifique et les entreprises innovantes.
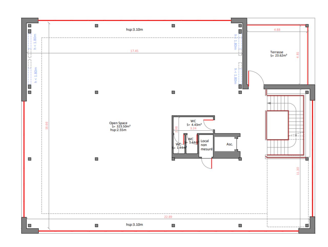
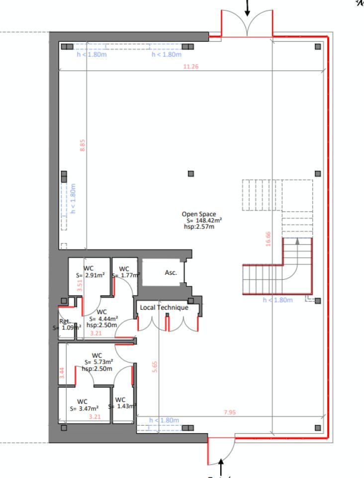
Ce magnifique immeuble indépendant, d'une surface de 730 m² est situé sur le site du Grand Carré. Il s'étend sur 3 niveaux et a été conçu de manière à offrir un maximum de confort et de fonctionnalité.
Nous vous proposons à la location un superbe immeuble d'une surface de 730 m².
L'apport d'un éclairage naturel par la mise en oeuvre de surface vitrée importante permet de proposer aux utilisateurs un confort de travail optimal.
Le bâtiment bénéficie d'excellentes performances énergétiques qui contribue à réduire l'empreinte carbone et à favoriser une consommation d'énergie plus efficace.
Accessibilité :
- Aéroport de Lille-Lesquin à 15 min en voiture
- Accès rapide VRU et axes routiers A1, A2, A23, A25 et A2
- Arrêt de bus "Haute Borne" à 4 min à pied
- Métro " Cité Scientifique Professeur Gabillard" à 1 900m
Prestations :
- Cuisine
- 2 terrasses
- Parkings
Disponibilité : Immédiate
Toutes nos offres de bureaux sur https://www.bnppre.fr/bureau/nord-59/
Services & prestations
Type / Etat du bâtiment
-
Etat des locaux : Très bon état










