




Location Bureau 3 740 m²
69740 Genas
3 740 m²
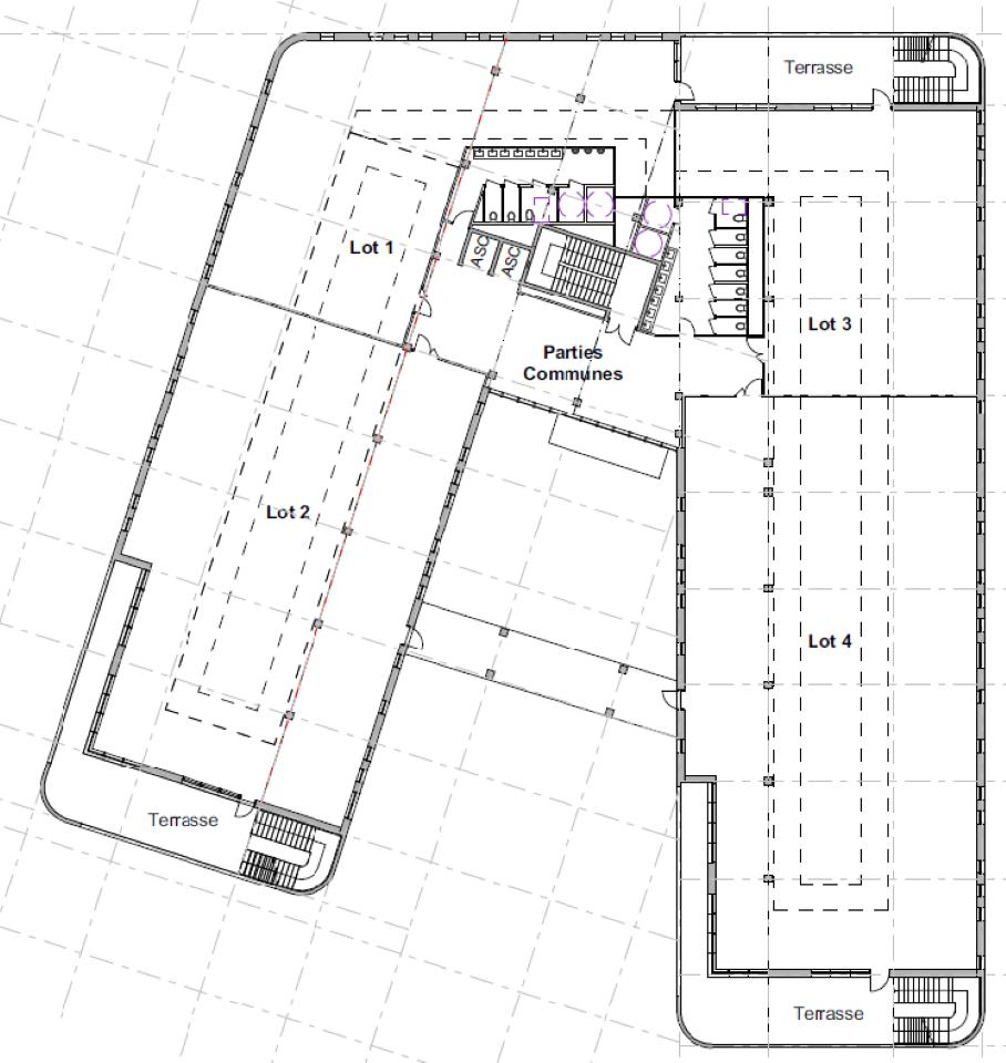
Divisible dès 220 m²
à partir de 135 €
HT/HC/m²/an
Disponibilité : Immédiate

Stephan POULAT
Description
EVEREST PARK III
GENAS
À proximité de la Rocade, au coeur du Parc Everest, labellisé HQE, immeuble à construire. Très belles prestations au profit du confort des utilisateurs. Grands plateaux lumineux. Espaces extérieurs.
A côté du futur pôle de services (restaurant, crêche, business center ...). À vendre ou à louer.
Services & prestations
Aménagements
-
Aménagement des bureaux : Espaces Ouverts
-
Sanitaires : 2
Equipements
-
Charge au sol Rdc : 3,00 tonne(s)/m²
-
Climatisation : Réversible
-
Eclairage Bureaux : Luminaires encastrés
-
Eclairage naturel : Skydomes
-
Faux plafond : Dal. fibres minéral.
-
Plinthes techniques périphériques
-
Porte d'accès plain-pied : 1
-
Sol bureaux : Sols PVC – Sanitaires: faïence
-
Sols du bâtiment : Sol quartzé
-
Source chauffage : Gaz Aérotherme pour activité et 1 split système par lot pour bureaux
-
Type de chauffage : Individuel
Hauteurs
-
Hauteur libre : 6,50 mètre(s)
Prestations de service
-
Parking : Parking extérieur 250 €/HT/l’unité/an
-
Restauration : 220 Place(s) assise(s)
-
Sécurité : Barrière
Extérieurs
-
Terrasses - jardins
Normes, Certifications et Labels
-
Label cible : BREEAM VERY GOOD
Structure du bâtiment
-
Charpente : Métallique
-
Couverture : Bac acier isolé
-
Murs : Bardage double peau
Type / Etat du bâtiment
-
Etat de l'immeuble : Neuf
-
Etat des locaux : Neuf
Informations complémentaires
-
Charge admissible : Activité: 3.000 Kg/m2, Hauteur libre 2,60 m, Isolation thermique
-
1 porte sectionnelles par cellule (4 m x 4,50 m), Charge admissible : Bureaux et mezza: 350 Kg/m2, Immeuble Code du travail – 1 personne / 12m²
-
Fibre amenée jusqu’au site permettant à l’utilisateur de se raccorder., Parking intérieur 450 €/HT/l’unité/an ( +100€ pour une place avec borne de recharge), Possibilité bureaux cloisonnés câblés : 145€ HT/m²/an










