




Location Bureau 1 055 m²
69800 Saint-Priest
1 055 m²
Divisible dès 211 m²
à partir de 145 €
HT/HC/m²/an
Disponibilité : Immédiate

Jeanne GREE
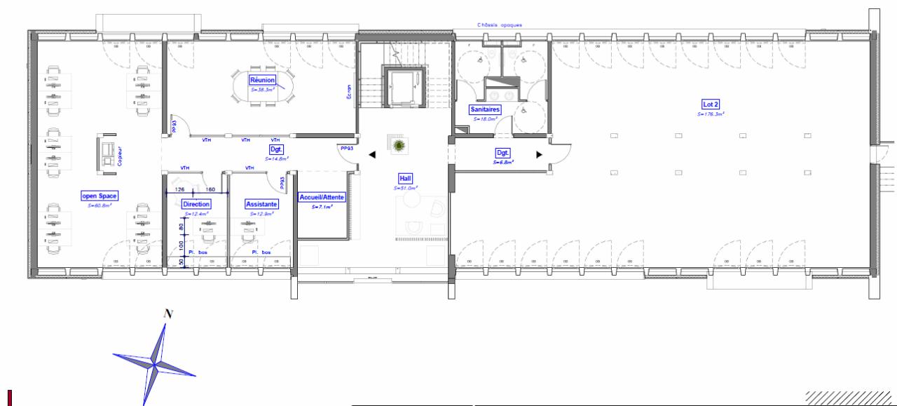
Description
RUE AMBROISE PARE
SAINT PRIEST
Nous vous proposon des plateaux de bureaux à aménager dans un immeuble de bureaux entièrement réhabilité. A proximité des axes autoroutiers et des commodités.
Cet ensemble bénéficie d'une très bonne visibilité.
Services & prestations
Aménagements
-
Accueil : Au Rdc création d'un hall d'accueil et d'un espace de convivialité avec cuisine.
-
Accès Pers. Mobilité Réduite
-
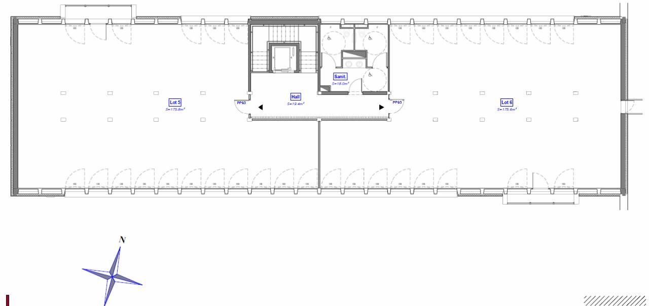
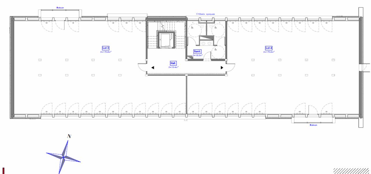
Sanitaires : Sanitaires à chaque étage
Equipements
-
Ascenseurs
-
Climatisation : Réversible & chauffage
-
Fenêtres : Double vitrage & stores manuels intérieurs
-
Sol bureaux : Revêtement souple
Prestations de service
-
Parking : Oui, Oui, Oui
-
Sécurité : Site clos et sécurisé par alarme et vidéosurveillance
Extérieurs
-
Terrasses - jardins : Extérieurs et espaces verts revalorisés & toiture terrasse refaite
Informations complémentaires
-
Espaces mutualisés
-
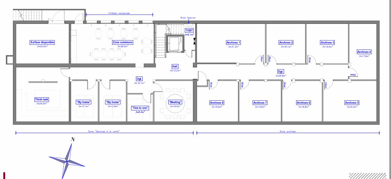
Sous-sol aménagé - espace de stockage privatif










