




Location Bureau 462 m²
69740 Genas
462 m²
Divisible dès 176 m²
à partir de 135 €
HT/HC/m²/an
Disponibilité : Immédiate

Stephan POULAT
Description
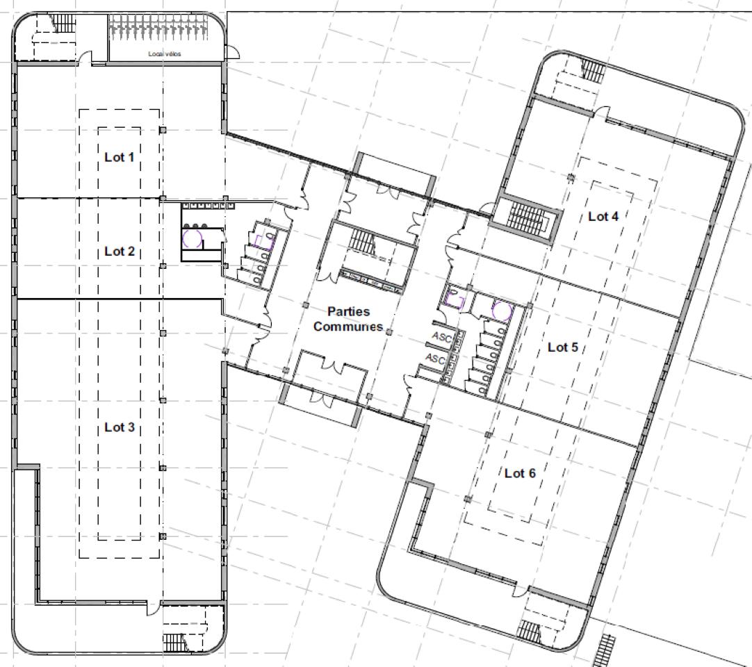
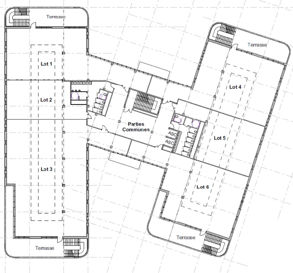
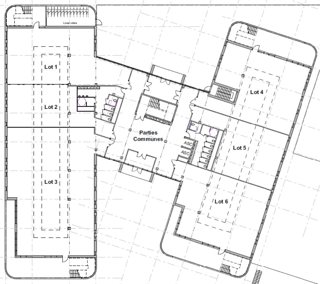
EVEREST PARK III - GENAS
À proximité de la Rocade, au coeur du Parc Everest, labellisé HQE, immeuble à construire. Très belles prestations au profit du confort des utilisateurs. Grands plateaux lumineux. Espaces extérieurs. A côté du futur pôle de services (restaurant, crêche, business center ...). À vendre ou à louer.
Situé sur la commune de Genas, aux portes est de l'agglomération lyonnaise, Everland vous dévoile son offre de bureaux au coeur de l'EverEst Parc.
Installé face à l'espace paysagé central, le projet propose un cadre de travail agréable entre exigence architecturale et environnement verdoyant.
De nombreuses entreprises tertaires de renom, sont déjà implantées ou en cours d'installation sur ce territoire de l'est lyonnais : Bonduelle, Solvay, Kaeser ...
Everland vous invite aujourd'hui à découvrir des bureaux dernière génération, tournés vers la nature et l'extérieur, doté d'une accessibilité évidente, entre axes autoroutiers et aéroport, desservi par de nombreuses lignes de bus.
Services & prestations
Aménagements
-
Aménagement des bureaux : Espaces Ouverts
-
Sanitaires : 2
Equipements
-
Charge au sol Rdc : 3,00 tonne(s)/m²
-
Climatisation : Réversible
-
Eclairage Bureaux : Luminaires encastrés
-
Eclairage naturel : Skydomes
-
Faux plafond : Dal. fibres minéral.
-
Plinthes techniques périphériques
-
Porte d'accès plain-pied : 1
-
Sol bureaux : Sols PVC – Sanitaires: faïence
-
Sols du bâtiment : Sol quartzé
-
Source chauffage : Gaz Aérotherme pour activité et 1 split système par lot pour bureaux
-
Type de chauffage : Individuel
Hauteurs
-
Hauteur libre : 6,50 mètre(s)
Prestations de service
-
Parking : Parking extérieur 250 €/HT/l’unité/an
-
Restauration : 220 Place(s) assise(s)
-
Sécurité : Barrière
Extérieurs
-
Terrasses - jardins
Normes, Certifications et Labels
-
Label cible : BREEAM VERY GOOD
Structure du bâtiment
-
Charpente : Métallique
-
Couverture : Bac acier isolé
-
Murs : Bardage double peau
Type / Etat du bâtiment
-
Etat de l'immeuble : Neuf
-
Etat des locaux : Neuf
Informations complémentaires
-
Charge admissible : Activité: 3.000 Kg/m2, Hauteur libre 2,60 m, Isolation thermique
-
1 porte sectionnelles par cellule (4 m x 4,50 m), Charge admissible : Bureaux et mezza: 350 Kg/m2, Immeuble Code du travail – 1 personne / 12m²
-
Fibre amenée jusqu’au site permettant à l’utilisateur de se raccorder., Parking intérieur 450 €/HT/l’unité/an ( +100€ pour une place avec borne de recharge), Possibilité bureaux cloisonnés câblés : 145€ HT/m²/an










