




Location Bureau 3 921 m²
69006 Lyon
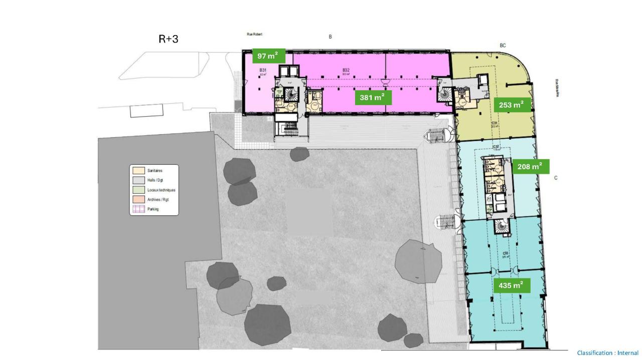
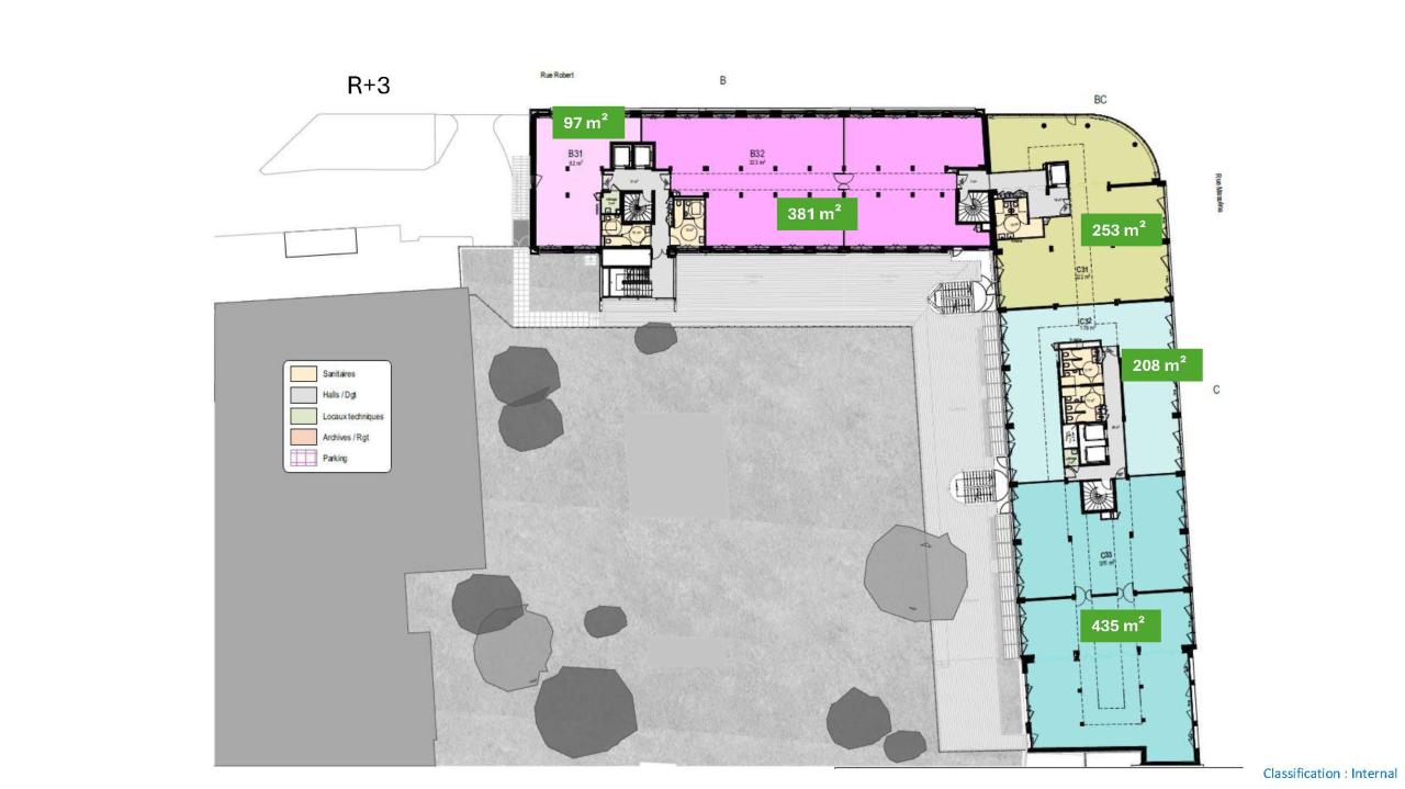
3 921 m²
Divisible dès 97 m²
à partir de 290 €
HT/HC/m²/an
Disponibilité : Immédiate

Ludovic NE
Description
ILOT LAFAYETTE
LYON 06
Dans l’immeuble « ILOT LAFAYETTE », venez découvrir plusieurs surfaces adaptées à tous : 3 500 m² divisibles à partir 72 m², de nombreux parkings.
Tous ces plateaux proposent des lots neufs, des lots cloisonnés et prêt à l’emploi.
Un secteur haut de gamme dans le 6ème arrondissement, une qualité de travail pour vos collaborateurs.
Services & prestations
Aménagements
-
Accueil : Espace d'attente
-
Accès Pers. Mobilité Réduite : Ascenseur
-
Aménagement des bureaux : Cloisonnés & Open space
-
Effectif théorique
-
Sanitaires : Parties communes
Equipements
-
Ascenseurs : 2
-
Climatisation : Réversible
-
Câblage informatique
-
Douche
-
Eclairage Bureaux : Luminaires encastrés
-
Faux plafond
-
Faux plancher : Technique
-
Sol bureaux : Dls.thermoplastiques & moquette
-
Source chauffage : PAC
-
Type de chauffage : Collectif
Hauteurs
-
Hauteur sous-plafond : 2,50 m
Prestations de service
-
Parking
-
Sécurité : Contrôle d'accès , vidéo surveillance & PC sécurité
Extérieurs
-
Terrasses - jardins
Normes, Certifications et Labels
-
Catégorie ERP : 5 de type W (sous réserve de la validation d'un bureau de contrôle)
-
Certification : BREEAM, HQE
Informations complémentaires
-
Archives : 140 € HT/m²/an, Courant fort










