




12 Rue Louis Dansard
69007 Lyon
130 m²
226 €
HT/HC/m²/an
Disponibilité : 03/08/2026

Odine KLEIN
Description
Rue Louis Dansard
Lyon 07
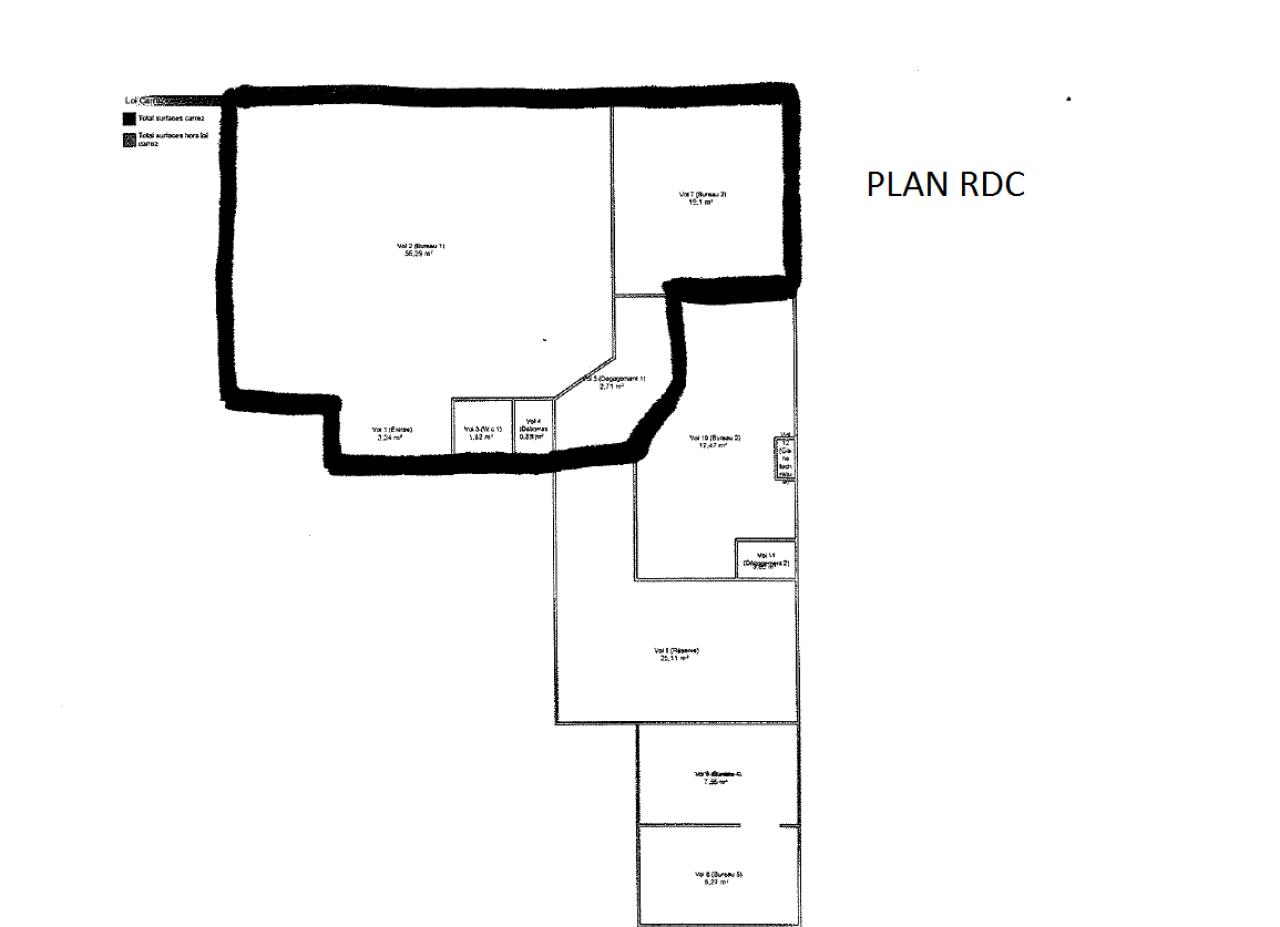
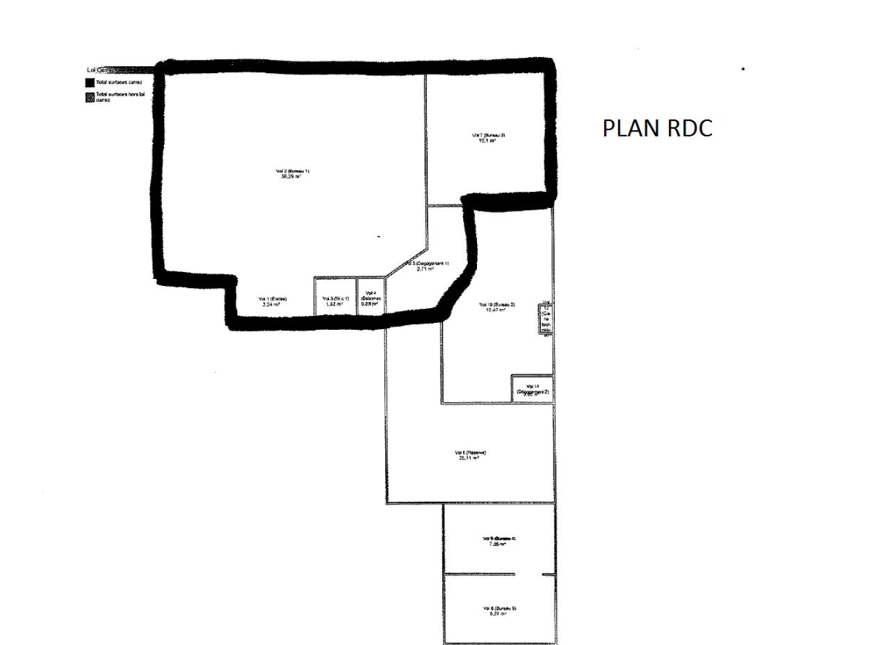
Nous proposons à la location des bureaux indépendants situés en rez-de-chaussée au 12 rue Louis Dansard à Lyon, dans un environnement urbain dynamique et bien desservi.
Ces locaux offrent un cadre de travail agréable grâce à une belle luminosité naturelle et une configuration déjà cloisonnée, permettant une installation rapide et fonctionnelle pour une activité tertiaire. L'organisation des espaces permet de concilier bureaux individuels et zones de travail collaboratif.
Les bureaux disposent d'une entrée indépendante, apportant confort et autonomie aux occupants.
Accessibilité et environnement
L'adresse bénéficie d'une excellente accessibilité, à proximité immédiate des transports en commun (métro, bus) facilitant les déplacements quotidiens des collaborateurs et des visiteurs. Le secteur profite également de la présence de nombreux commerces, restaurants et services, offrant un environnement de travail pratique et vivant.
À noter : les locaux sont situés en rez-de-chaussée mais ne disposent pas d'un accès PMR.
Les atouts des locaux
- Bureaux indépendants
- Rez-de-chaussée
- Espaces lumineux
- Cloisonnement existant
- Installation rapide possible
- Quartier dynamique
- Transports en commun à proximité
- Commerces et services immédiats
Ces bureaux représentent une opportunité idéale pour une entreprise souhaitant s'implanter dans des locaux fonctionnels, lumineux et immédiatement opérationnels à Lyon.
Pour toute information complémentaire ou pour organiser une visite, nous restons à votre disposition.
Services & prestations
Aménagements
-
Aménagement des bureaux : Cloisonnés/Ouverts
-
Effectif théorique
-
Sanitaires : Privatif(s)
Equipements
-
Climatisation : Réversible
-
Câblage informatique
-
Eclairage Bureaux : Spots
-
Faux plafond
-
Onduleur
-
Plinthes techniques périphériques
-
Sol bureaux : Parquet
-
Source chauffage : Electrique
-
Type de chauffage : Individuel
Prestations de service
-
Sécurité : Contrôle d'accès
Normes, Certifications et Labels
-
Catégorie ERP : 5
Type / Etat du bâtiment
-
Etat de l'immeuble : Seconde main
-
Immeuble copropriété










