




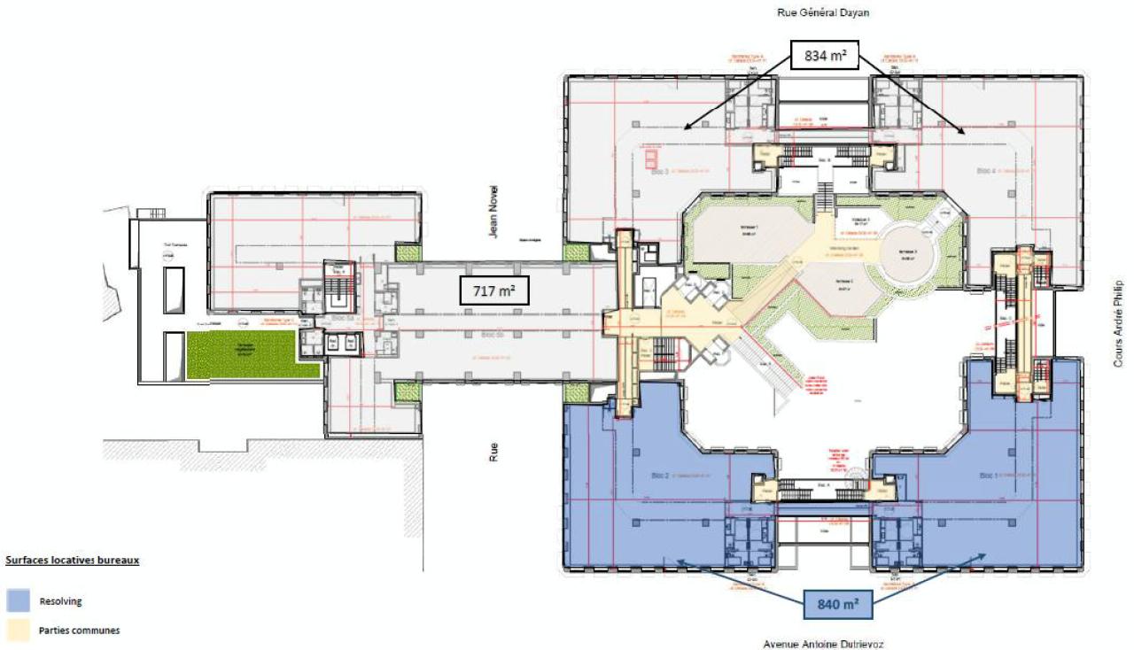
Location Bureau 1 553 m²
69100 Villeurbanne
1 553 m²
Divisible dès 260 m²
à partir de 205 €
HT/HC/m²/an
Disponibilité : Immédiate

Jeanne GREE
Description
PARHELION - VILLEURBANNE
Proche Part Dieu, à proximité du parc de la tête d’or et sur la limite du 6ème arrondissement de Lyon, plateaux de bureaux disponibles dans un immeuble restructuré dernière génération. Construit en 1984 par le célèbre architecte Claude Parent, l’immeuble a été totalement réhabilité avec des prestations de services haut de gamme (Atrium majestueux aménagés avec espace de coworking, rooftop de 360m², kiosque de restauration, conciergerie, salle de sport, espace évènementiel, local vélo et vestiaires douches).
L’immeuble dispose également d’un business center et de place de stationnement en sous-sol. Il est certifié HQE très bon et Breeam Very Good.
L’environnement dispose de très bonne dessertes multimodales (métro, tramway, axes routiers) et également d’une offre immédiate de restauration, commerces et loisirs.
Les plateaux sont prêts à l’emploi avec des aménagements qualitatifs déjà cloisonnés.
Services & prestations
Aménagements
-
Accueil : Hôtesses
-
Accès Pers. Mobilité Réduite
-
Aménagement des bureaux : Cloisonnés & câblés
-
Sanitaires : Parties communes & en partie privative
Equipements
-
Ascenseurs
-
Climatisation : Air rafraîchi , réversible
-
Câblage informatique
-
Douche : & vestiaires
-
Eclairage Bureaux : Luminaires encastrés full LED
-
Faux plafond
-
Faux plancher : Plancher caisson
-
Monte-charge
-
Onduleur
-
Plinthes techniques périphériques
-
Sol bureaux : Dls.thermoplastiques & moquette, Moquette gamme desert 50x50cm
-
Source chauffage : PAC
-
Type de chauffage : Collectif
Hauteurs
-
Hauteur sous-plafond : 2,65 mètre(s)
Prestations de service
-
Conciergerie
-
Parking : 70 Places complémentaires disponibles dans le bâtiment en face, Oui
-
Sécurité : Contrôle d'accès & vidéo surveillance
Extérieurs
-
Terrasses - jardins : Roof top de 360 m²
-
Trame de façade : 2,50 mètre(s)
Normes, Certifications et Labels
-
Certification : HQE
Type / Etat du bâtiment
-
Etat de l'immeuble : Restructuré avec PC
Informations complémentaires
-
Espace évènementiel, Kiosque restauration, Verrière de 1 200 m²
-
Salle de fitness










