




24-36 Rue du Tonkin
69100 Villeurbanne
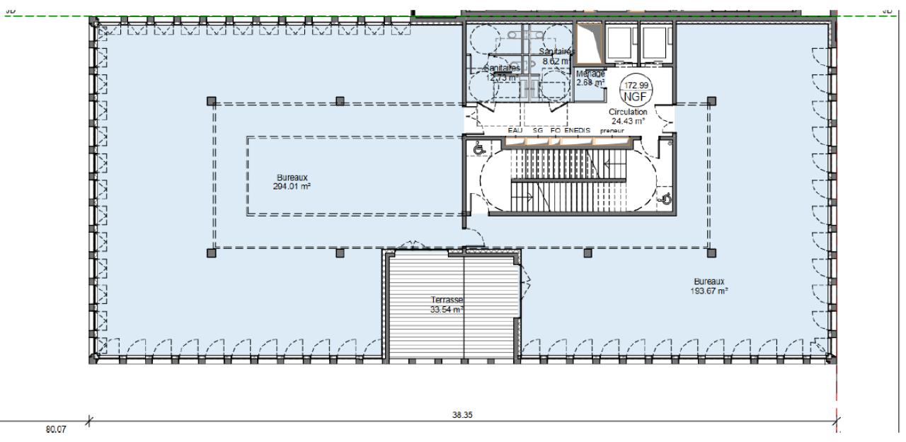
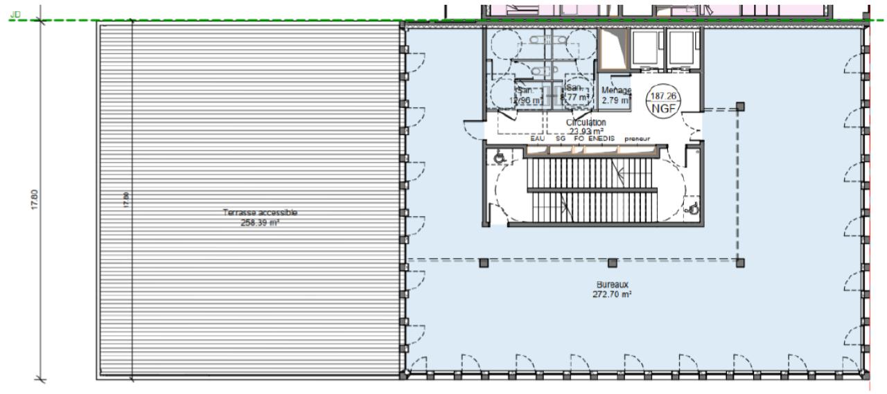
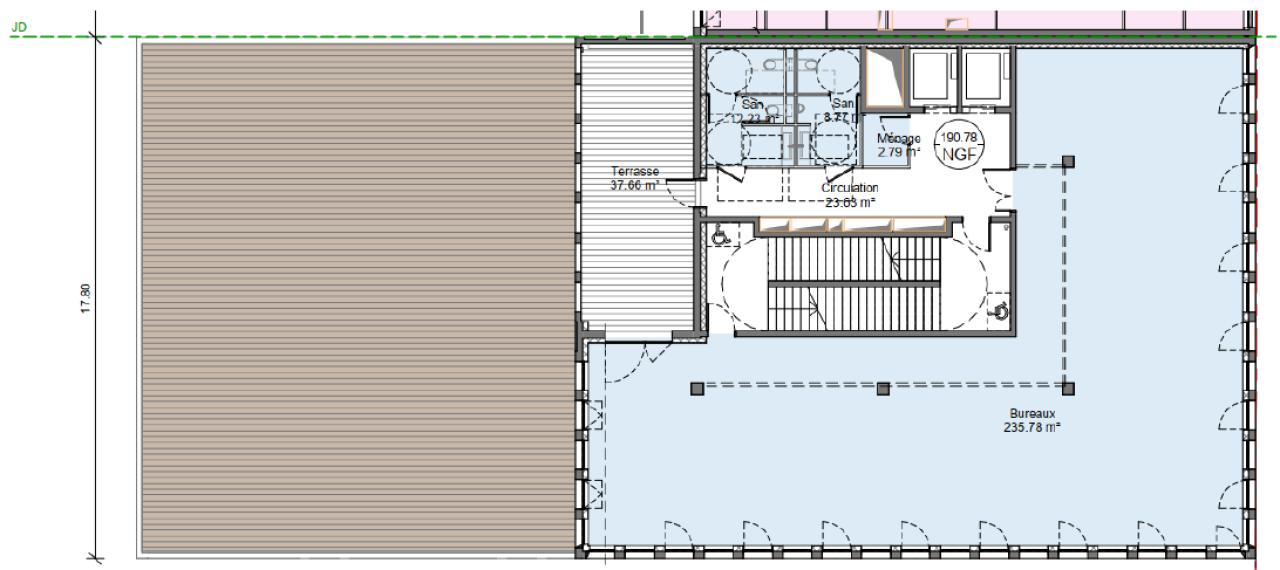
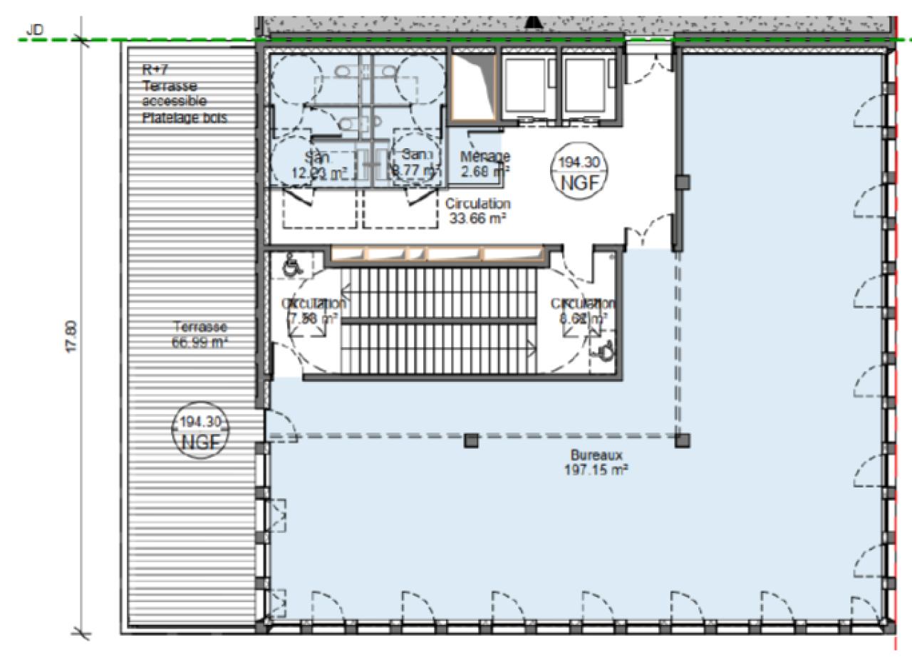
3 983 m²
Divisible dès 627 m²
à partir de 240 €
HT/HC/m²/an
Disponibilité : 36 mois après accord

Stephan POULAT
Description
MELTING - VILLEURBANNE
Au cœur du quartier du Tonkin, nous vous proposons un immeuble neuf de bureau à construire. L’immeuble est desservi par le Tramway T 1 et offre un accès direct au Périphérique via le Bd Stalingrad. L'immeuble, disponible à la location, sera au cœur d'un parc arboré de 2 300 m². Melting bénéficiera de prestations de qualité : climatisation, brise soleil orientables, faux plancher technique, 2,70 mètres de hauteur sous plafond. Melting offre la possibilité d'être communiquant avec l'immeuble voisin Meaning pour faire un ensemble de 15 000 m² de bureaux.
Le quartier du Tonkin continue de se renouveler avec des grands projets immobiliers : construction d’un nouvel immeuble de bureaux en lieu et place de l’ancien siège d’Adecco, requalification de l’ancienne clinique du Tonkin, transformation de l’ancienne Cité des Antiquaires …
Le quartier du Tonkin est desservi par le métro (Lignes A et B) et le tramway ( lignes T1 et T4 ) grâce à la station Charpennes, à quelques minutes à pied.










