




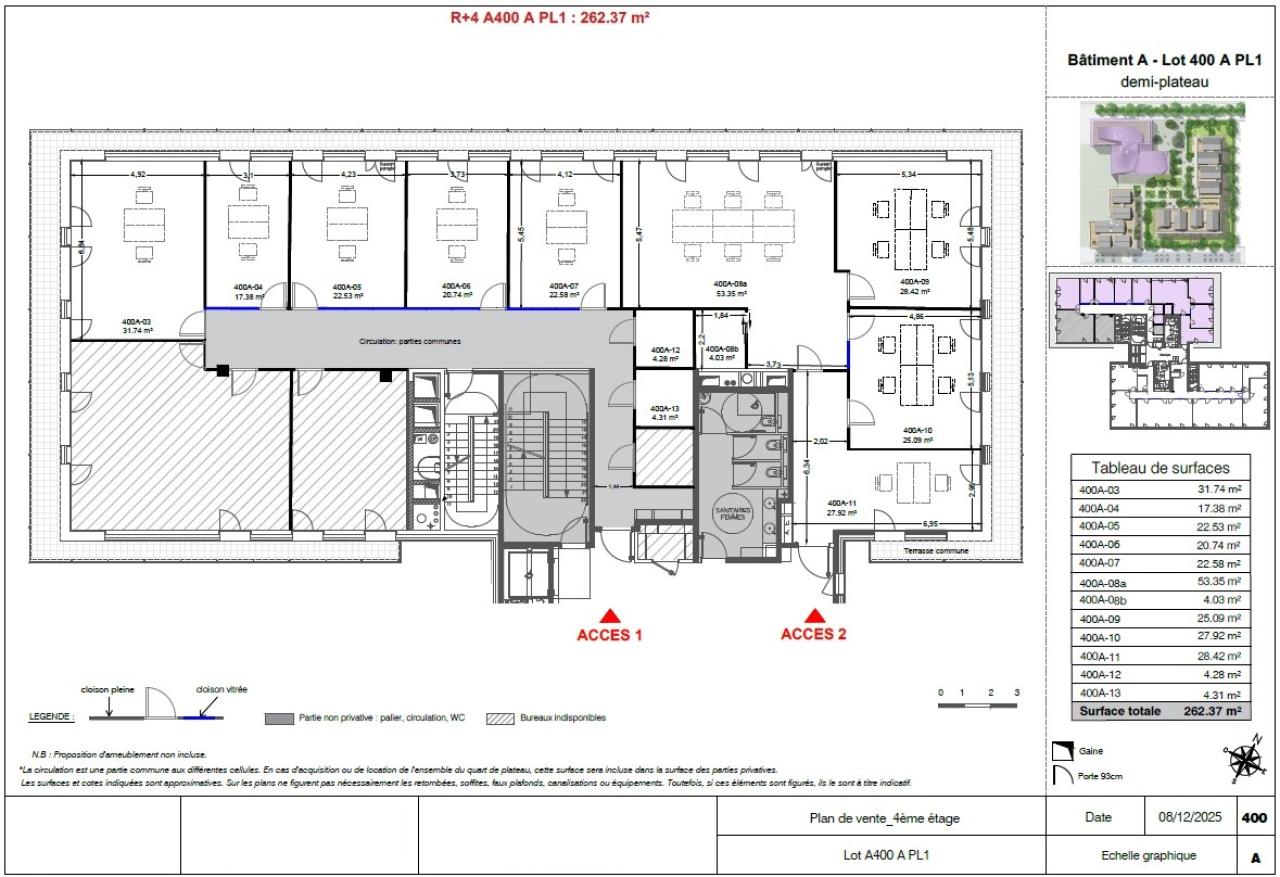
Location Bureau 657 m²
77144 Montévrain
657 m²
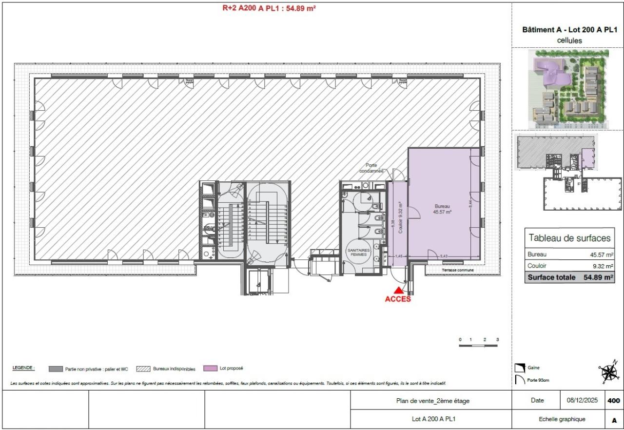
Divisible dès 55 m²
à partir de 300 €
HT/HC/m²/an
Disponibilité : Immédiate

Baptiste QUILGARS
Description
MONTEVRAIN (77)
A Louer
BNP PARIBAS REAL ESTATE vous propose plusieurs plateaux de Bureaux disponibles au sein d'un immeuble de Bureaux situé à Montévrain.
L'immeuble de Bureaux est situé à proximité immédiate de l'Autoroute A4 et à 500 mètres du RER A.
Services & prestations
Aménagements
-
Accueil : Hôtesses
-
Hall d'accueil : Collectif
-
Sanitaires
Equipements
-
Climatisation
-
Faux plafond : Dal. fibres minéral.
-
Fenêtres
-
Plinthes techniques périphériques
-
Sol bureaux : Moquette Dalles 60/60
-
Type de chauffage : Individuel
Extérieurs
-
Terrasses - jardins : Terrasses sur rue
Type / Etat du bâtiment
-
Etat des locaux : Neuf










