




20 Rue Brisout de Barneville
76100 Rouen
1 350 m²
Divisible dès 450 m²
à partir de 175 €
HT/HC/m²/an
Disponibilité : 01/09/2026

Maxime LETHUILLIER
Description
A Louer - Immeuble de bureaux indépendant avec stationnement
Rouen Rive gauche
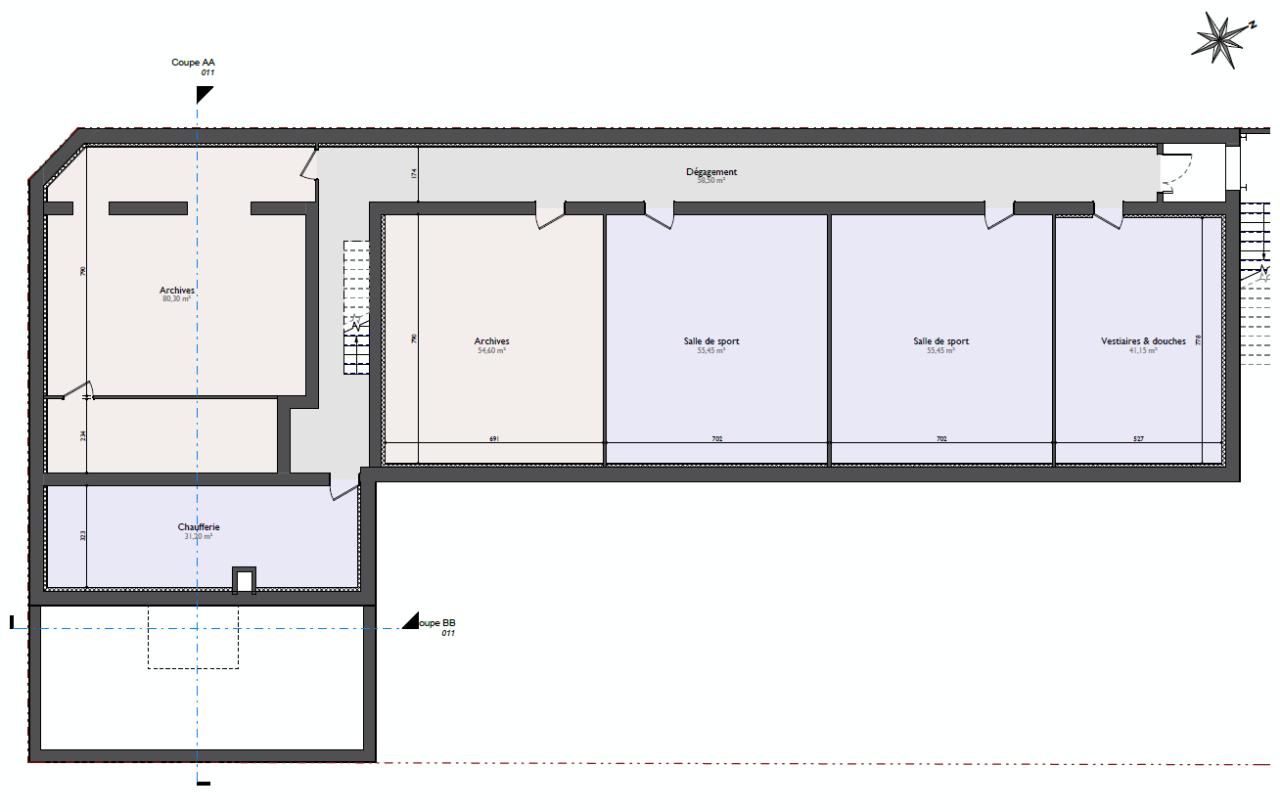
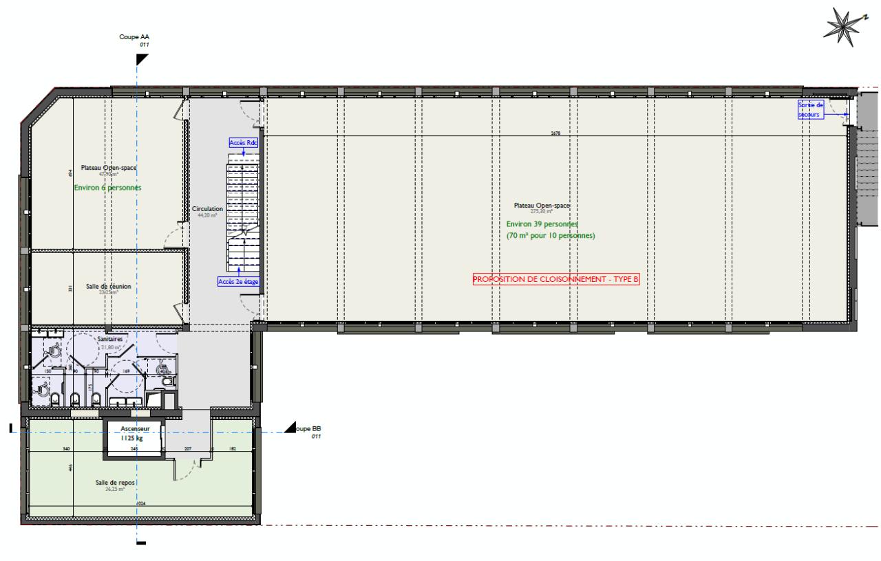
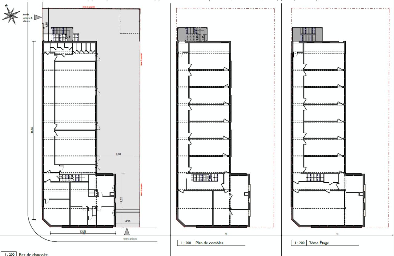
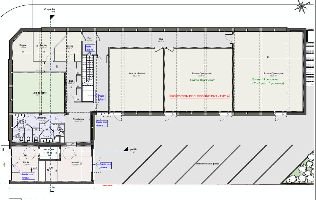
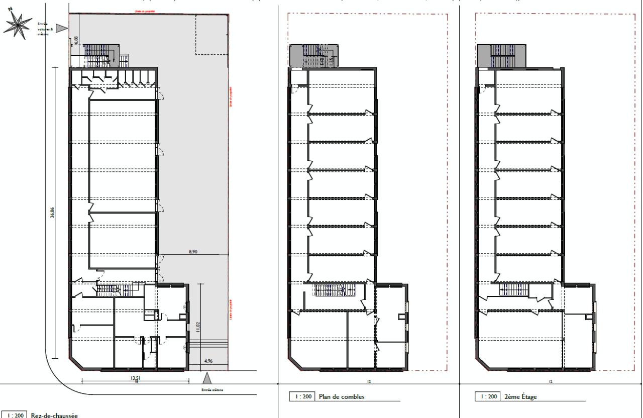
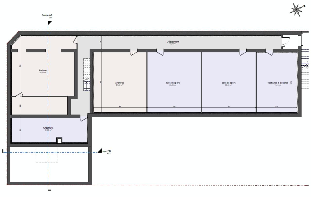
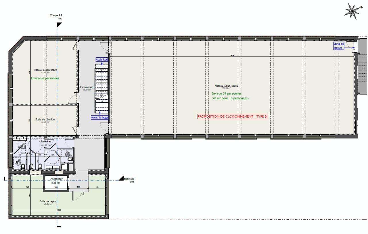
BNP Paribas Real Estate vous propose à la location un immeuble indépendant de 1700 m² dont 1350 m² de bureaux.
Places de stationnement et accessibilité transports en commun (T4 et T5)
Au pied de toutes les commodités, cet immeuble de bureaux indépendant en centre ville de Rouen offre plusieurs surfaces de bureaux neuves (réhabilitation en cours) divisible à partir de 450 m².
La réhabilitation comprend un curage complet :
- curage et travaux
- vitres et volets intégrés
- Isolation
- Eclairage LED encastré
- Sol / peinture
- Clim / CTA
Immeuble PMR avec installation d'un ascenseur, Objectif faible consommation énergétique.
Livraison septembre 2026.
Nous consulter pour toute demande complémentaire ou dossier complet.
Vous souhaitez trouver des espaces de bureaux, un plateau ou un local professionnel dans la métropole Rouennaise / Rouen ? Nous vous proposons une large gamme d'offres de location et de vente dans le secteur Normand, adaptées aux besoins de votre entreprise. Consultez nos surfaces disponibles et choisissez l'unité de bureaux qui dynamisera votre activité en Normandie.










