




Avenue Jean Rondeaux
76100 Rouen
5 037 m²
202 €
HT/HC/m²/an
Disponibilité : 24 mois après accord

Maxime LETHUILLIER
Description
À LOUER - 5 000 m² de bureaux
Rouen Rive Gauche
À Louer - Bureaux de 5 000 m² - secteur Rive-Gauche de Rouen
BNP Paribas Real Estate Rouen vous propose à la location des bureaux neufs situé sur un emplacement stratégique de la rive-gauche. Cet immeuble constitue un des premiers fronts bâtis depuis le pont Guillaume le Conquérant.
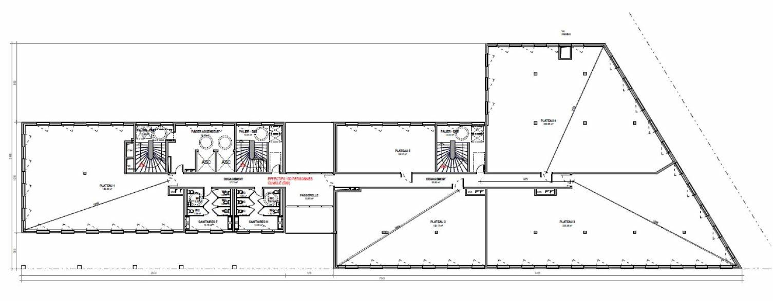
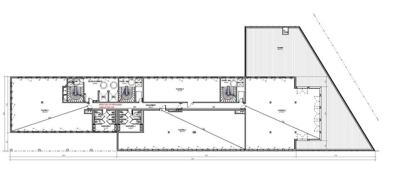
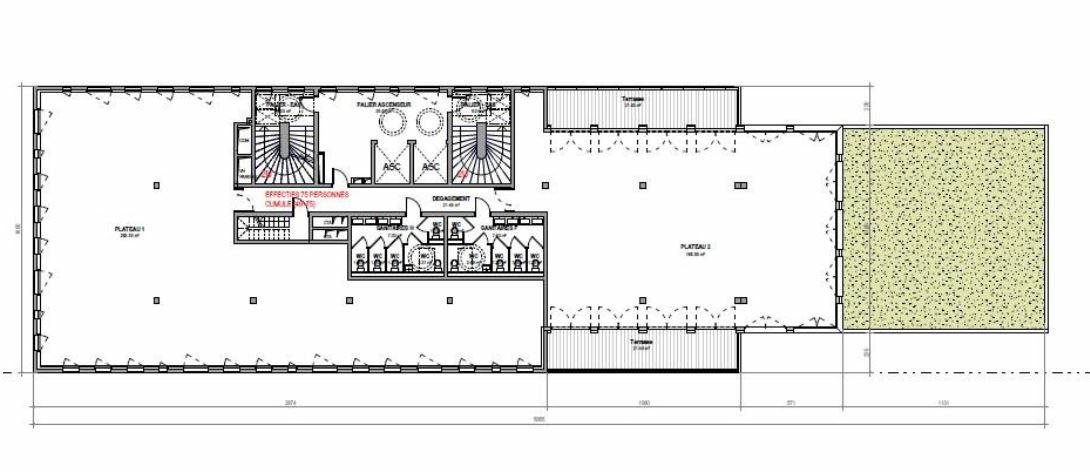
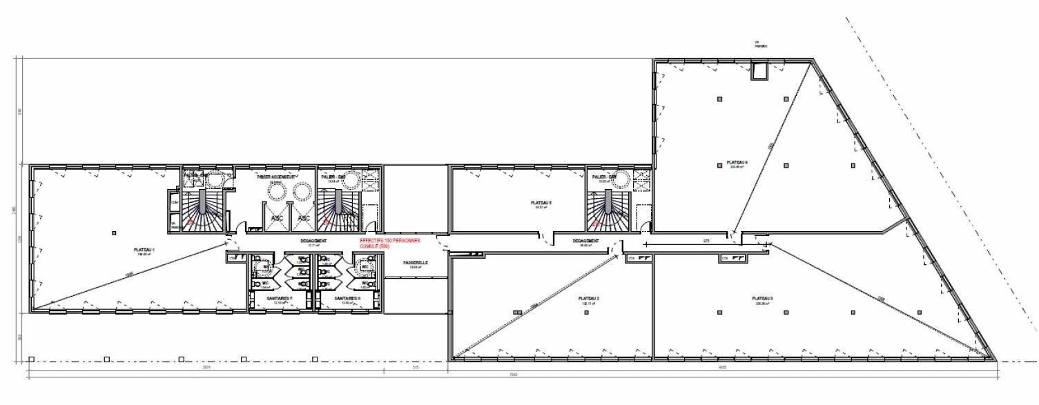
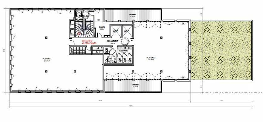
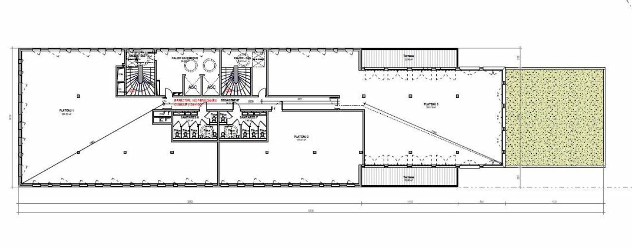
Au total 5 000 m² répartis sur 6 étages, tramés et modulables, avec terrasses privatives et généreuses à partir du R+2 et bénéficiant de 85 places de parkings équipables en bornes IRVE. Le bâtiment est ERP type R et W permettant l'accueil de centres de formations et de bureaux. Ce programme s'inscrit dans une démarche bas carbone économe en énergie. Livraison prévisionnelle : 20 à 24 mois après accord.
Ces locaux sont livrés paysagés : revêtement de sol, faux plafond réalisé avec dalles LED encastrées, système de chauffage relié au réseau de chaleur urbain et rafraichissement d'air par free cooling. Sanitaires H&F (et PMR) séparés à chaque étage sur le palier. Bureaux équipés de stores.
Local vélos et vélos cargos au RDC.
Effectif total de l'immeuble : 599 personnes (étages : 1, 2 et 3 en ERP de type R, étages 4,5 et 6 en ERP de type W - administratif)
Vous souhaitez trouver des espaces de bureaux, un plateau ou un local professionnel dans la métropole Rouennaise ? Nous vous proposons une large gamme d'offres de location et de vente dans le secteur Normand, adaptées aux besoins de votre entreprise. Consultez nos surfaces disponibles et choisissez l'unité de bureaux qui dynamisera votre activité en Normandie.
Toutes nos offres https://www.bnppre.fr/bureau/normandie/
Services & prestations
Equipements
-
Climatisation : Rafraîchissement free cooling + module adiabatique










