




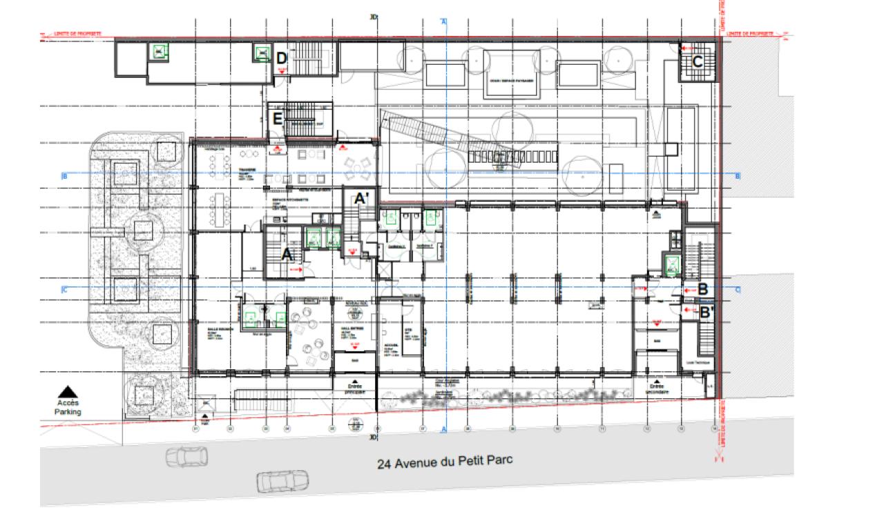
24 Avenue du Petit Parc
94300 Vincennes
5 859 m²
Loyer sur demande
Disponibilité : 24 mois après accord

Nicolas FONTANEL
Description
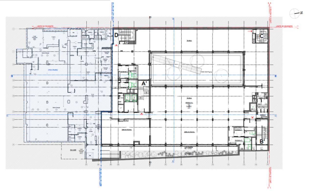
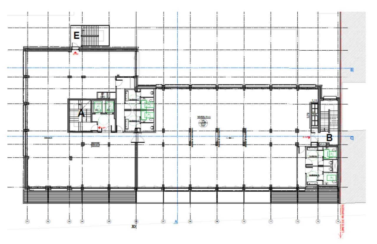
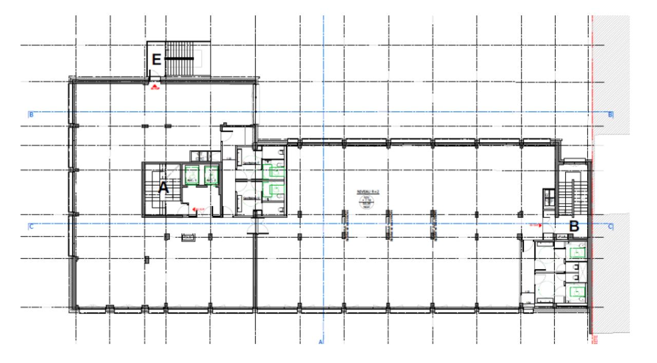
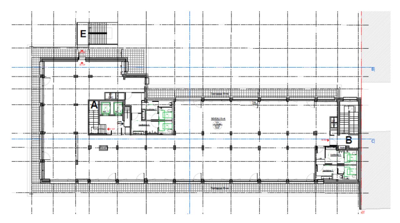
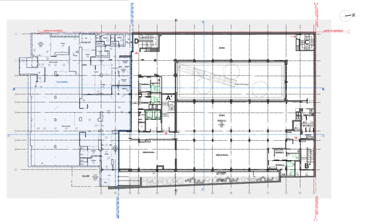
Un immeuble restructuré, à taille humaine et indépendant dans u cadre privilégié à deux pas du Bois de Vincennes.
Immeuble indépendant de 5 554 m² connecté à la ligne de métro 1 qui propose les standards du neuf, ouvert sur un patio et un jardin et des vues sur le Château de Vincennes.
Un projet adaptable au cahier des charges d'un utilisateur qui bénéficiera des labels et normes environnementales exigés. Des plateaux de bureaux flexibles, efficients et lumineux.
Des espaces dédiés et aménageables pour une offre servicielles.
Services & prestations
Prestations de service
-
Restauration
Type / Etat du bâtiment
-
Etat des locaux : Restructuré avec PC










