




Location Entrepôt Classe B 8 927 m²
33610 Canéjan
8 927 m²
82 €
HT/HC/m²/an
Disponibilité : Immédiate

Raoul DE LOISY
Description
A LOUER ENTREPOT LOGISTIQUE & BUREAUX 8927 m² à BORDEAUX CANEJAN (33)
Entrepôt logistique à louer à Canéjan (33)
BNP PARIBAS REAL ESTATE vous propose un entrepôt de 8927 m² à la location. Idéalement bien situé proche de l'A63 et de la rocade bordelaise.
Bâtiment indépendant. Bureaux, locaux sociaux. Aires de manoeuvre. Accès PL à quais. Pkg VL
Bénéficiant d'une excellente desserte depuis l'A63, ce bâtiment indépendant sur 20 000 m² de terrain est idéalement situé pour la logistique du dernier km.
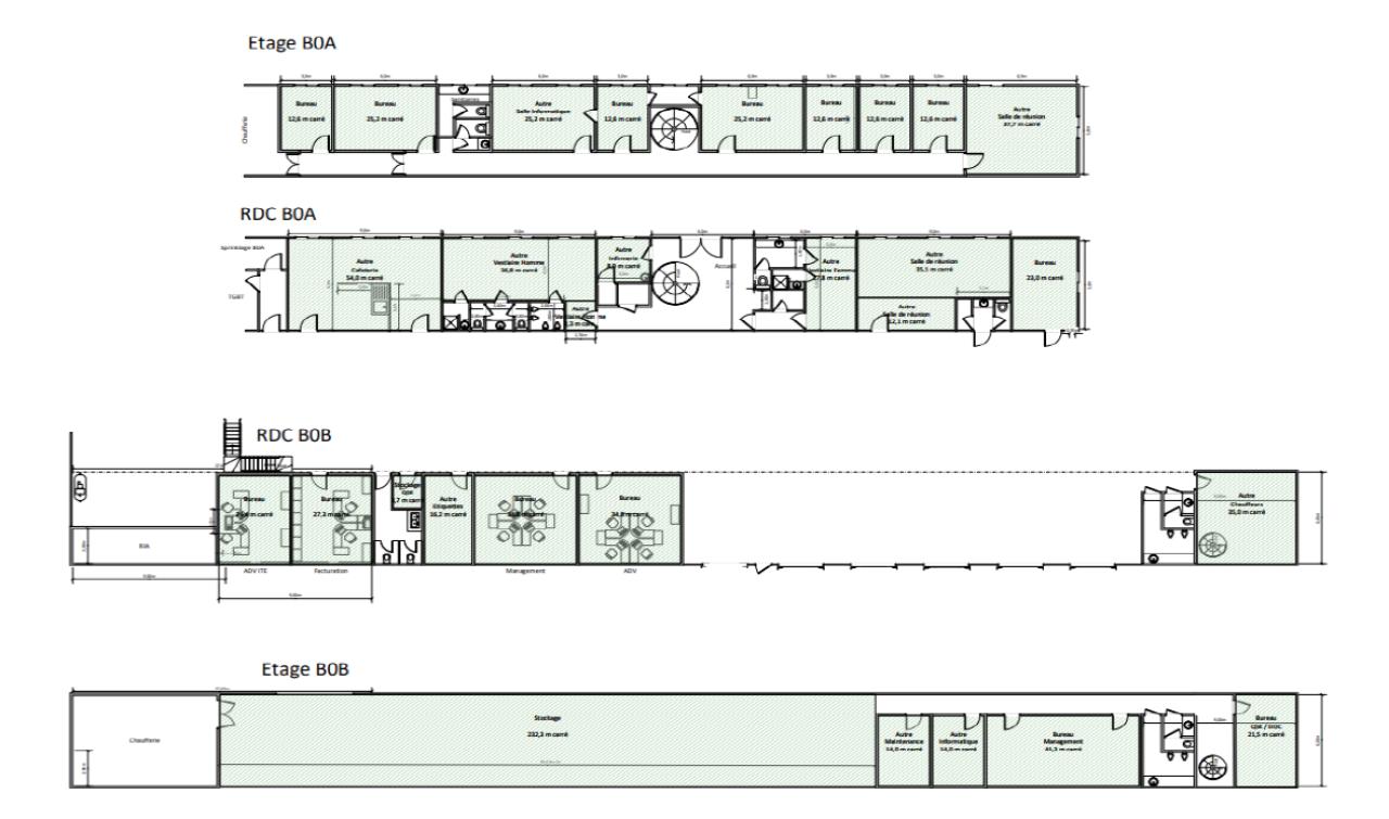
Il est constitué de 2 lots contigus et communicants :
LOT B OA de 4420 m² env composé de :
- entrepôt de 3743,85 m² env
- locaux techniques & locaux sociaux de 6736,30 m² env en R+1
LOT B OB de 4507 m² env composé de :
- entrepôt de 4092,75 m²env
- locaux techniques & locaux sociaux de 414,30 m² env en R+1
- aires de manoeuvre
- accès PL à quais
- parkings VL
- dalle béton
- charpente métallique
- bardage double-peau
- toiture bac acier isolé
- sprinklage
- bureaux cloisonnés
- accueil
- salle de pause
- vestiaires
N'hésitez pas à nous contacter au 06 12 71 47 85 pour tout complément d'information
Services & prestations
Hauteurs
-
Hauteur sous poutre : 7,00 mètre(s) point bas
Type / Etat du bâtiment
-
Etat de l'immeuble : Seconde main
-
Immeuble indépendant
Structure du bâtiment
-
Charpente : Métallique
-
Couverture : Bac acier isolé
-
Murs : Bardage double peau
Equipements
-
Climatisation : Oui, Réversible convecteur et chaudière gaz à condensation
-
Câblage informatique
-
Faux plafond
-
Fenêtres
-
Porte d'accès à quai : 8
-
Réseau Incendie Armé
-
Sols du bâtiment : Béton
-
Sprinklers
Prestations de service
-
Parking
Aménagements
-
Accueil
-
Bureaux cloisonnés
-
Complexe Salle de réunion : Salle de réunion
-
Hall d'accueil
-
Locaux sociaux
-
Mezzanine
-
Salle informatique
-
Sanitaires
Extérieurs
-
Aire de manoeuvre
-
Aire de stockage extérieure
Accès véhicules
-
Accessibilité type véhicules
Informations complémentaires
-
Chauffage, Locaux sociaux










