




Rue du Pont-du-Péage
67118 Geispolsheim
2 591 m²
Divisible dès 80 m²
à partir de 96 €
HT/HC/m²/an
Disponibilité : Immédiate

Josquin PETASSOU
Description
LOCAUX D'ACTIVITE NEUFS - BAS-RHIN (67)
GEISPOLSHEIM - PONT-DU-PEAGE - Réf OLACT2420594
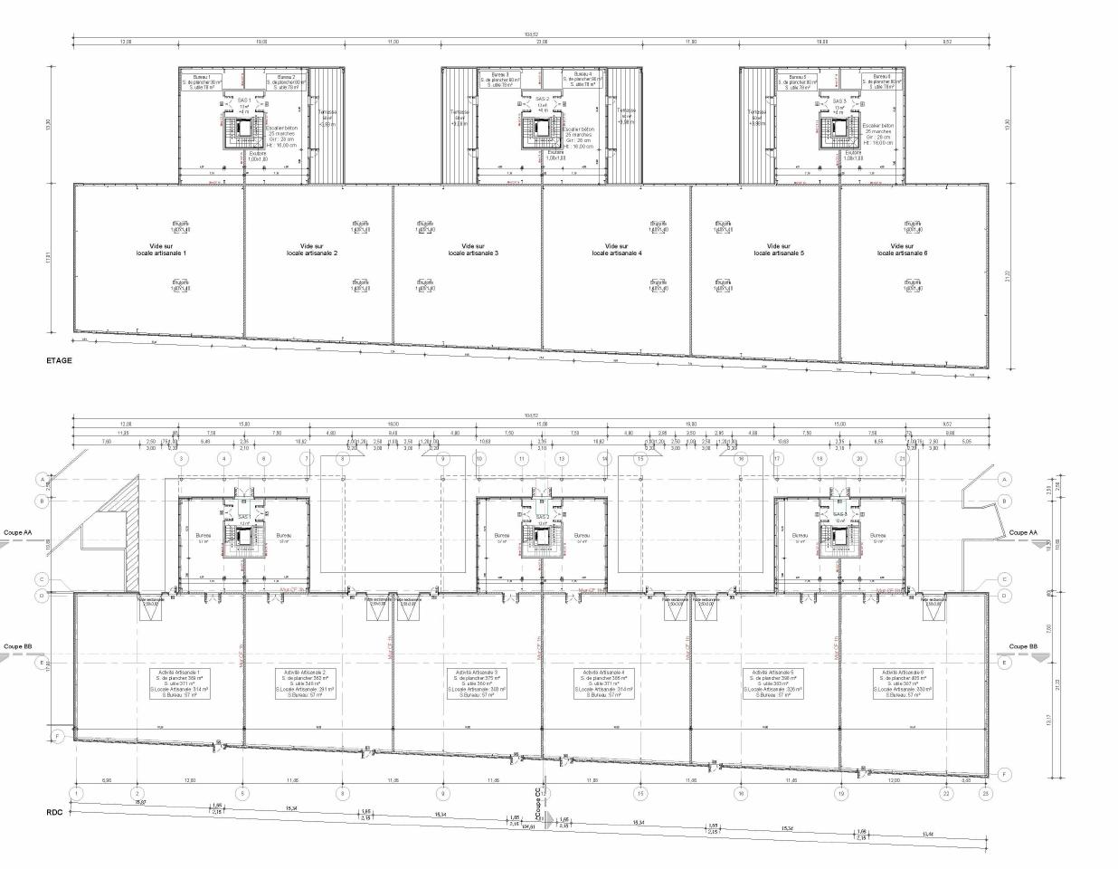
LOCAUX D'ACTIVITE NEUFS - 6 lots d’environ 400 m² chacun sont proposés à la LOCATION au sein d’un nouvel ensemble Immobilier à Geispolsheim, le long de la voie rapide M35/RN 83.
Ce site bénéficie d’une visibilité exceptionnelle et son architecture est résolument design, norme RT2012, avec des prestations de qualité et une belle luminosité.
Les locaux sont livrés bruts, fluides en attente. Les bureaux seront aménagés en fonction des besoins du Preneur.
EMPLACEMENT RARE ! LOCAUX D'ACTIVITE NEUFS AVEC SHOWROOM ET BUREAUX - 3 000 m² environ, divisibles à partir de 400 m² sont proposés à la LOCATION au sein d’un nouvel ensemble Immobilier à GEISPOLSHEIM.
ACCESSIBLE par l’AUTOROUTE A35 via la voie rapide M35/RN 83.
Ce site propose des HALL de STOCKAGE avec porte SECTIONNELLE ainsi qu'un accès piéton.
SES ATOUTS : LUMINEUX, VISIBLES, ACCESSIBLES.
Il existe cinq zones industrielles, commerciales et artisanales qui accueillent des entreprises offrant de nombreux emplois à GEISPOLSHEIM, commune située à 12km au sud de Strasbourg et fait partie de son EUROMETROPOLE : Zones Porte Sud, de l’Ill, Forlen, du Fort et la Vigie.
Les locaux sont situés à proximité immédiate du l'Hypermarché LECLERC GEISPOLSHEIM et du pôle commercial LA VIGIE, ce dernier compte aujourd’hui une dizaine d'enseignes commerciales tel que Armand Thiery, Mise au Green, Naumy, Fabrique de Styles, Boulanger, Poltronesofa, Maxi Zoo, Bureau Vallée et un centre de FITNESS Basic-Fit.
Le secteur propose également une offre de restauration très étoffée.
Contactez-nous pour visiter votre lot !
Services & prestations
Hauteurs
-
Hauteur libre : 7,50 mètre(s)
Equipements
-
Ascenseurs : Desservant les bureaux à l'étage
-
Charge au sol Rdc : 3,00 tonne(s)/m²
-
Eclairage naturel : Grandes surfaces vitrées
-
Faux plafond : Dalles LED
-
Plinthes techniques périphériques
-
Porte d'accès plain-pied : Sectionnelle et piétonne
-
Sol bureaux : Moquette
-
Sols du bâtiment : Dalle industrielle traitée
Type / Etat du bâtiment
-
Etat des locaux : Neuf
Structure du bâtiment
-
Couverture : Bac acier isolé
-
Murs : Bardage double peau
Prestations de service
-
Parking : 44 Places commun + places privatives en façade des lots, dont 4 PMR, Abri de 13 m²
Informations complémentaires
-
CVC - Climatisation/chauffage PAC
-
Murs peints, Skydomes et trappe de désenfumage
-
Terrasse privative 50 m² pour certains lots de bureaux à l'étage










