



Location Local d'activité 2 043 m²
13270 Fos-sur-Mer
2 043 m²
93 €
HT/HC/m²/an
Disponibilité : 12/12/2025

Jean-Jacques BIAU
Description
FOS-SUR-MER – BÂTIMENT D’ACTIVITÉ MIXTE À LOUER OU À VENDRE - 2080 m² mixte sur un terrain indépendant de 9 796 m²
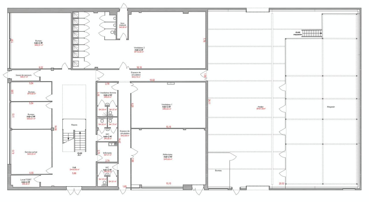
BNPPRE vous propose à la location un ensemble immobilier de 2080 m² mixte à dominante bureaux sur un terrain indépendant et clôturé de 9796 m². Il est composé d'une partie activité en RDC et une surface de bureaux en R+1 ainsi que de grands locaux sociaux.
BNP Paribas Real Estate vous propose à la location ou à la vente un ensemble immobilier mixte d'une surface totale d'environ 2 080 m², implanté sur un terrain indépendant et clôturé de 9 796 m².
Ce bâtiment rénové, à dominante bureaux, bénéficie d'une partie activité en rez-de-chaussée, d'un espace bureaux en R+1 et de grands locaux sociaux.
L'ensemble offre une excellente visibilité, une grande aire de manoeuvre et un vaste espace de stockage extérieur.
L'essentiel à retenir
Localisation : Fos-sur-Mer (13)
Disponibilité : À louer ou à vendre
Surface totale : 2 080 m²
Terrain : 9 796 m² indépendant et clôturé
Accessibilité
Accès routiers rapides vers les grands axes régionaux
Zone d'activités de Fos-sur-Mer, à proximité du port industriel et logistique
Environnement d'activités diversifiées (industrie, énergie, logistique, services)
Atouts majeurs
Bâtiment indépendant sur vaste terrain
Très bonne accessibilité et visibilité
Espaces de bureaux confortables et climatisés
Importante aire extérieure aménageable
Services & prestations
Equipements
-
Climatisation : Réversible
-
Eclairage Bureaux : Luminaires encastrés
-
Faux plafond : Dal. fibres minéral.
-
Fenêtres
-
Plinthes techniques périphériques
-
Porte d'accès plain-pied : 1
-
Sol bureaux : Moquette
Type / Etat du bâtiment
-
Etat de l'immeuble : Rénové
Structure du bâtiment
-
Charpente : Métallique
-
Couverture : Bac acier isolé
-
Murs : Bardage double peau
Prestations de service
-
Restauration
Aménagements
-
Aménagement des bureaux
-
Bureaux cloisonnés
-
Hall d'accueil
Extérieurs
-
Aire de manoeuvre
-
Aire de stockage extérieure : 7000 m²










