



Vente Local d'activité 2 043 m²
13270 Fos-sur-Mer
2 043 m²
2 398 482 €
HT/HD
Disponibilité : 12/12/2025

Jean-Jacques BIAU
Description
FOS-SUR-MER A LOUER OU A VENDRE
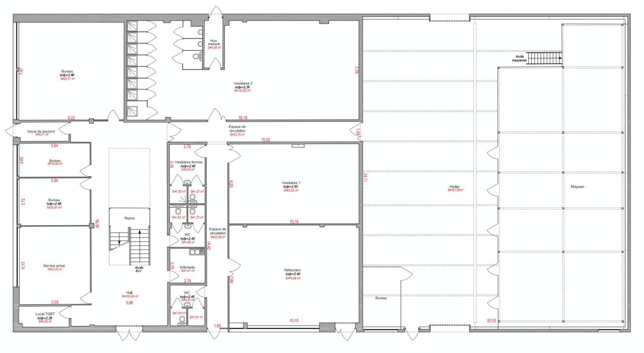
2080 m² mixte sur un terrain indépendant de 9 796 m²
BNPPRE vous propose à la location un ensemble immobilier de 2080 m² mixte à dominante bureaux sur un terrain indépendant et clôturé de 9796 m². Il est composé d'une partie activité en RDC et une surface de bureaux en R+1 ainsi que de grands locaux sociaux.
BNP Paribas Real Estate vous propose un ensemble immobilier mixte de 2 080 m² situé sur un terrain indépendant et clôturé de 9 796 m², idéalement pensé pour conjuguer bureaux et activité dans un environnement sécurisé.
L'essentiel à retenir
Surface totale : 2 080 m²
Usage : Mixte bureaux et activité
Disponibilité : Immédiate
Terrain : 9 796 m², indépendant et clôturé
Descriptifs et services
Partie activité en RDC
Surface de bureaux en R+1
Grands locaux sociaux pour le confort des collaborateurs
Environnement sécurisé et facilement accessible
Un ensemble immobilier polyvalent, offrant bureaux et locaux d'activité sur un site indépendant, idéal pour les entreprises recherchant flexibilité, visibilité et sécurité.
Services & prestations
Equipements
-
Climatisation : Réversible
-
Eclairage Bureaux : Luminaires encastrés
-
Faux plafond : Dal. fibres minéral.
-
Fenêtres
-
Plinthes techniques périphériques
-
Porte d'accès plain-pied : 1
-
Sol bureaux : Moquette
Type / Etat du bâtiment
-
Etat de l'immeuble : Rénové
Structure du bâtiment
-
Charpente : Métallique
-
Couverture : Bac acier isolé
-
Murs : Bardage double peau
Prestations de service
-
Restauration
Aménagements
-
Aménagement des bureaux
-
Bureaux cloisonnés
-
Hall d'accueil
Extérieurs
-
Aire de manoeuvre
-
Aire de stockage extérieure : 7000 m²










